Kiadó Lakás
Hirdetéskód: 9284731

Született Fészekrakó Ingatlaniroda

Felújításhoz személyi kölcsönt keres? Kalkuláljon itt! →
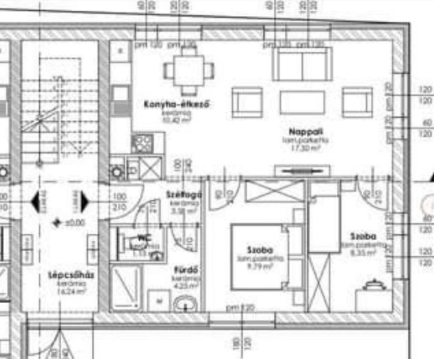
55.00 m2
ALAPTERÜLET
1
SZOBASZÁM
Tégla
ÉPÍTÉS
Hőszivattyú
FŰTÉS
  • Belső szintek 1
  • Kilátás Utcai
  • Fűtés Hőszivattyú
  • Építőanyag Tégla
  • Klíma igen
  • Szigetelt igen
  • Bútorozott nem
Energetikai besorolás: Nincs meghatározva
A+++
A++
A+
A
B
C
D
E
F
G
H
I

Az MBH Bank személyi kölcsön ajánlata

Fizetett hirdetés
1 millió Ft
6 évre
20 585 Ft/hó
THM: 14.5%
Részletek →
2 millió Ft
6 évre
41 169 Ft/hó
THM: 14.5%
Részletek →
3 millió Ft
6 évre
61 754 Ft/hó
THM: 14.5%
Részletek →

A tájékoztatás nem teljes körű és nem minősül ajánlattételnek.

Az ingatlan leírása

Hangulatos nappali+2szobás pár éves lakás, saját autóbeállóval kiadó Szombathelyen a belváros szélén a Kisz lakótelepen. Márciusban költözhető! Földszinti, hőszivattyú fűtéses, klímával felszerelt. Beépített szekrények, konyhabútor a gépekkel, hűtőszekrény található az ingatlanban. Közös használatú kert tartozik a lakáshoz. 3 havi kaució szükséges, minimum1 évre kiadó. Kisállat, dohányzás nem megengedett.

Térkép

A hirdető elérhetősége

Mészáros Dóra e.v.

Mészáros Dóra
+36 30 929