Kiadó Lakás
Hirdetéskód: 9298047
GDN Ingatlanhálózat - SZIGET
Felújításhoz személyi kölcsönt keres? Kalkuláljon itt! →64.00 m2
ALAPTERÜLET1
SZOBASZÁMnincs megadva
ÉPÍTÉSTávfűtés egyedi méréssel
FŰTÉS- CSOK igénybe vehető nem
- Tetőtér beépíthető nem
- Fűtés Távfűtés egyedi méréssel
- Klíma nem
- Szigetelt nem
A+++
A++
A+
A
B
C
D
E
F
G
H
I
Az ingatlan leírása
IDE BŐRÖNDDEL KÖLTÖZHET!!!
SZIGETSZENTMIKLÓSON, BELVÁROSI, KLIMATIZÁLT, ÖSSZKOMFORTOS ÚJ LAKÁS TERASSZAL, BELSŐ UDVARI PARKOLÁSSAL, IGÉNYES BÉRLŐNEK KIADÓ!
Szigetszentmiklóson, remek közlekedési lehetőségek mellett, az új Tököli utcai lakóparkban, modern, belső udvaros, a külvilágtól elektromos kapuval zárt társasházban, 64m2 lakóterületű, összkomfortos, egyedi méréssel rendelkező házközponti fűtéses, földszinti, lakberendező által berendezett lakás, 6m2 erkéllyel kiadó.
A társasház 2024-ben épült, téglából, magas-tető szerkezettel.
Az ingatlan külső nyílászárói műanyag szerkezetűek, hőszigetelt üvegezéssel. A beltéri ajtók faszerkezetűek.
Fűtése, meleg víz ellátása egyedi mérővel ellátott házközponti.
A lakás, hivatalosan, közjegyzői szerződéssel, leinformálható, önmagára és környezetére igényes pár számára, hosszú távra bérelhető.
Kaució: 2 hónap.
Közös költség: 29.515.-Ft, a szemét díjat, a lépcsőház világítást, az elektromos kapu üzemeltetését, a takarítást, a kert rendben tartását, az épület biztosítását tartalmazza.
Helyiségek:
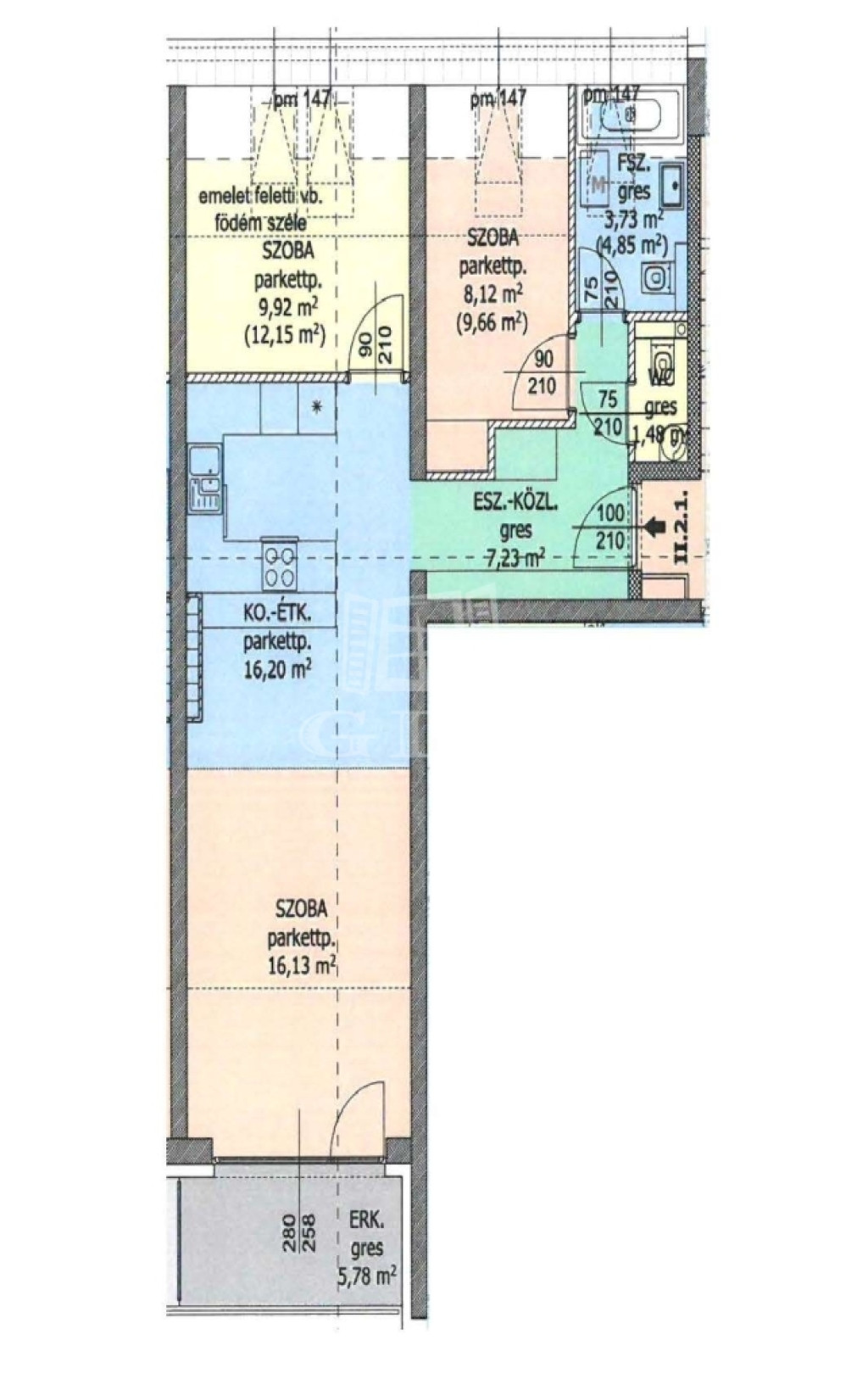
nappali-étkező-konyha 32,33m2, előszoba 7,23m3, szoba 12,15m2, szoba 8,12m2, fürdőszoba 3,73m2, toalett 1,48m2, erkély 5,78m2;
A lakáshoz a társasház területén belül, 1db felszíni parkoló, 1 db 2m2 tároló tartozik.
A környék békés, nyugodt, a szomszédok barátságosak, közlekedése remek.
Az ingatlan közelében, bevásárlási lehetőségek és hivatalok közül szinte minden pár perc távolságban megtalálható, a közért, pékség, hentes, zöldséges, étterem, gyógyszertár, iskola, óvoda, posta, bank, uszoda, autó-szerviz, stb.
AZ INGATLAN AZONNAL BIRTOKBA VEHETŐ!!!
TOVÁBBI RÉSZLETEKÉRT, VÁROM MEGTISZTELŐ HÍVÁSÁT!
A részletes adatvédelmi tájékoztató folyamatosan elérhető a oldalon. ...TOVÁBBI, TÖBBEZRES INGATLAN KÍNÁLAT: - GDN azonosító: 393570
SZIGETSZENTMIKLÓSON, BELVÁROSI, KLIMATIZÁLT, ÖSSZKOMFORTOS ÚJ LAKÁS TERASSZAL, BELSŐ UDVARI PARKOLÁSSAL, IGÉNYES BÉRLŐNEK KIADÓ!
Szigetszentmiklóson, remek közlekedési lehetőségek mellett, az új Tököli utcai lakóparkban, modern, belső udvaros, a külvilágtól elektromos kapuval zárt társasházban, 64m2 lakóterületű, összkomfortos, egyedi méréssel rendelkező házközponti fűtéses, földszinti, lakberendező által berendezett lakás, 6m2 erkéllyel kiadó.
A társasház 2024-ben épült, téglából, magas-tető szerkezettel.
Az ingatlan külső nyílászárói műanyag szerkezetűek, hőszigetelt üvegezéssel. A beltéri ajtók faszerkezetűek.
Fűtése, meleg víz ellátása egyedi mérővel ellátott házközponti.
A lakás, hivatalosan, közjegyzői szerződéssel, leinformálható, önmagára és környezetére igényes pár számára, hosszú távra bérelhető.
Kaució: 2 hónap.
Közös költség: 29.515.-Ft, a szemét díjat, a lépcsőház világítást, az elektromos kapu üzemeltetését, a takarítást, a kert rendben tartását, az épület biztosítását tartalmazza.
Helyiségek:
nappali-étkező-konyha 32,33m2, előszoba 7,23m3, szoba 12,15m2, szoba 8,12m2, fürdőszoba 3,73m2, toalett 1,48m2, erkély 5,78m2;
A lakáshoz a társasház területén belül, 1db felszíni parkoló, 1 db 2m2 tároló tartozik.
A környék békés, nyugodt, a szomszédok barátságosak, közlekedése remek.
Az ingatlan közelében, bevásárlási lehetőségek és hivatalok közül szinte minden pár perc távolságban megtalálható, a közért, pékség, hentes, zöldséges, étterem, gyógyszertár, iskola, óvoda, posta, bank, uszoda, autó-szerviz, stb.
AZ INGATLAN AZONNAL BIRTOKBA VEHETŐ!!!
TOVÁBBI RÉSZLETEKÉRT, VÁROM MEGTISZTELŐ HÍVÁSÁT!
A részletes adatvédelmi tájékoztató folyamatosan elérhető a oldalon. ...TOVÁBBI, TÖBBEZRES INGATLAN KÍNÁLAT: - GDN azonosító: 393570