Kiadó Lakás
Hirdetéskód: 9249524
ArtHome Ingatlan
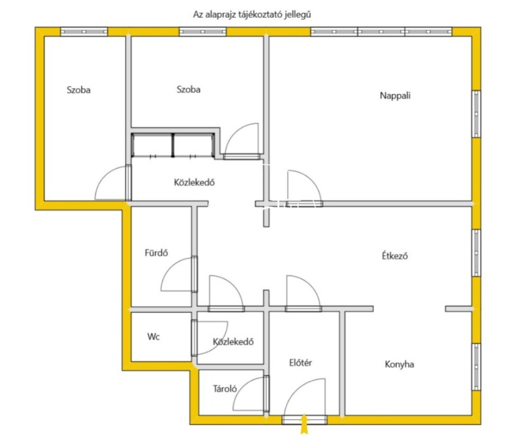
70.00 m2
ALAPTERÜLET2
SZOBASZÁMTégla
ÉPÍTÉSGáz (cirkó)
FŰTÉS- CSOK igénybe vehető nem
- Belső szintek 3
- Tetőtér beépíthető nem
- Kilátás Utcai
- Tájolás Délnyugat
- Ingatlan komfort Összkomfortos
- Parkolási lehetőség Udvari beálló
- Építés éve 1995
- Fűtés Gáz (cirkó)
- Építőanyag Tégla
- Klíma nem
- Szigetelt nem
A+++
A++
A+
A
B
C
D
E
F
G
H
I
Az ingatlan leírása
Kiadóvá vált Szegeden, a Kossuth Lajos sugárúton egy nappali + másfél szobás, világos és praktikus elrendezésű bútorozatlan lakás.
A lakás egyedi cirkófűtéssel rendelkezik, így a rezsi jól szabályozható és kedvező.
A lakáshoz saját udvari autóbeálló tartozik, amely nagy érték a környéken.
A bérleménybe egy kistestű kisállat hozható, így ideális lehet kisállat-tartók számára is.
A környék jól megközelíthető, tömegközlekedéssel és autóval egyaránt, a közelben boltok, gyógyszertár, éttermek és egyéb szolgáltatások találhatók.
Beköltözés szükséges 2 havi kaució és az 1. havi bérleti díj és közös költség megfizetése, illetve közjegyzői kiköltözési nyilatkozat megléte.
A lakás egyedi cirkófűtéssel rendelkezik, így a rezsi jól szabályozható és kedvező.
A lakáshoz saját udvari autóbeálló tartozik, amely nagy érték a környéken.
A bérleménybe egy kistestű kisállat hozható, így ideális lehet kisállat-tartók számára is.
A környék jól megközelíthető, tömegközlekedéssel és autóval egyaránt, a közelben boltok, gyógyszertár, éttermek és egyéb szolgáltatások találhatók.
Beköltözés szükséges 2 havi kaució és az 1. havi bérleti díj és közös költség megfizetése, illetve közjegyzői kiköltözési nyilatkozat megléte.