Kiadó Lakás
Hirdetéskód: 9229426

GDN Ingatlanhálózat - STOP Ingatlan

Felújításhoz személyi kölcsönt keres? Kalkuláljon itt! →
67.00 m2
ALAPTERÜLET
2
SZOBASZÁM
nincs megadva
ÉPÍTÉS
Távfűtés egyedi méréssel
FŰTÉS
  • CSOK igénybe vehető nem
  • Tetőtér beépíthető nem
  • Fűtés Távfűtés egyedi méréssel
  • Klíma nem
  • Szigetelt nem
Energetikai besorolás: Nincs meghatározva
A+++
A++
A+
A
B
C
D
E
F
G
H
I

Az MBH Bank személyi kölcsön ajánlata

Fizetett hirdetés
1 millió Ft
6 évre
20 585 Ft/hó
THM: 14.5%
Részletek →
2 millió Ft
6 évre
41 169 Ft/hó
THM: 14.5%
Részletek →
3 millió Ft
6 évre
61 754 Ft/hó
THM: 14.5%
Részletek →

A tájékoztatás nem teljes körű és nem minősül ajánlattételnek.

Az ingatlan leírása

Otthonok és Megoldások!

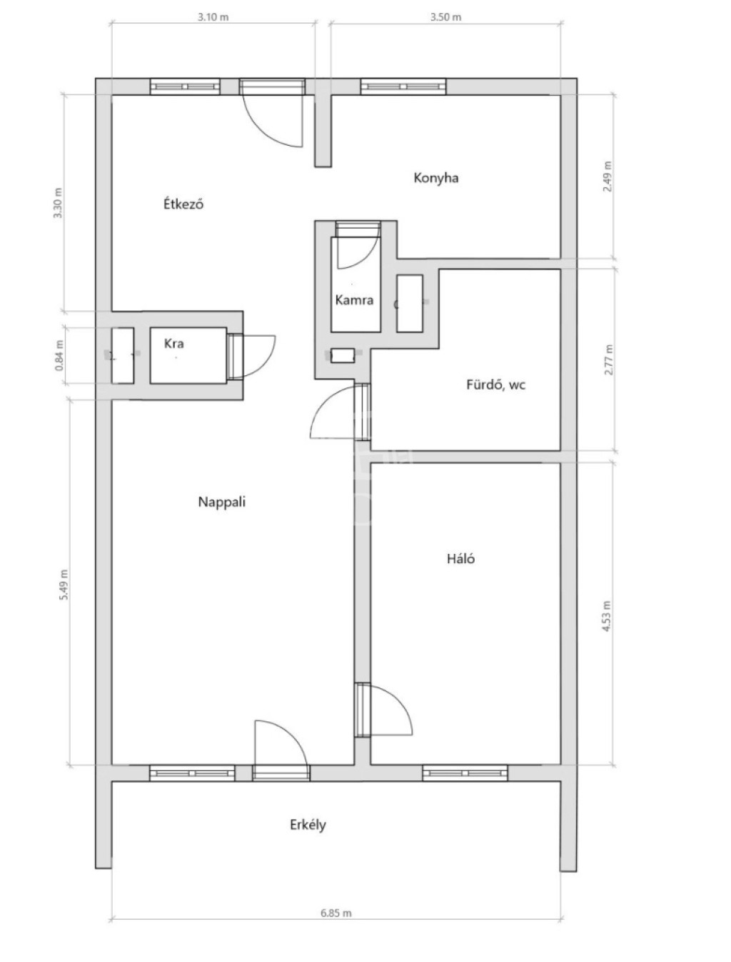
Kecskemét belvárosában, egy főtérre néző igényes lakás hosszú távra kiadó. A Kossuth tér 6-7. sz. épület I. emeletén elhelyezkedő 2 szobás lakás, konyhával, étkezővel, fürdővel és kamrával rendelkezik, melynek alapterülete 67 nm. A lakáshoz tartozik egy 7 nm nagyságú erkély is, amelyről egyedi panoráma nyílik a város főterére. Az ingatlan a közelmúltban teljes felújításra került. Műanyag hőszigetelt nyílászárók, gépesített konyha, klíma stb.

A bérbe adó LAKÁS JELLEMZŐI:
- azonnal költözhető,
- teljesen bútorozott,
- beépített konyha gépesített,
- klimatizált,
- műanyag nyílászárók, redőnnyel, szúnyoghálóval,
- fürdőszoba káddal és zuhanykabinnal,
- távhő, egyedi méréssel
- tv-és internet bekötés,
- alacsony rezsiköltség, egyéni mérőkkel. ...TOVÁBBI, TÖBBEZRES INGATLAN KÍNÁLAT: - GDN azonosító: 390558

Térkép

Ingatlan adásvétel ügyvédi díja
150 000 Ft
a hirdetésben szereplő ár alapján
  • A vételár 0,45%-a
  • Szerződéscsomag teljeskörű képviselettel
  • Ingyenes tulajdoni lap ellenőrzés
  • Az ÁFA-t már tartalmazza
Érdekel az ajánlat →
A tájékoztatás nem teljes körű és nem minősül ajánlattételnek. Minimum díj: 150 000 Ft, maximum díj: 600 000 Ft. A díj kizárólag lakóingatlan adásvételére vonatkozik.

A hirdető elérhetősége

GDN Ingatlanhálózat - STOP Ingatlan

Zombori Mátyás
+36 30 616