Kiadó Lakás
Hirdetéskód: 9224442
Városi Ingatlaniroda
43.00 m2
ALAPTERÜLET2
SZOBASZÁMnincs megadva
ÉPÍTÉSTávfűtés egyedi méréssel
FŰTÉS- CSOK igénybe vehető nem
- Belső szintek 4
- Tetőtér beépíthető nem
- Építés éve 2022
- Fűtés Távfűtés egyedi méréssel
- Klíma nem
- Szigetelt nem
A+++
A++
A+
A
B
C
D
E
F
G
H
I
Az ingatlan leírása
Győr Belvárosában, az Árkád szomszédságában ajánlom figyelmébe ezt az újszerű kiadó lakást.
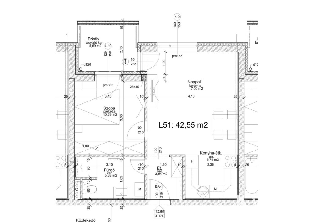
Az ingatlan egy liftes társasház negyedik emeletnén található, alapterülete: 42,55m2, egy nappaliból nyíló 5,69 m2-es erkéllyel.
Elosztása szerint: nappali-konyha-étkező, 1 hálószoba, zuhanyzós fürdőszoba-wc, előszoba helyiségekből áll.
A padlófűtéses, klímás lakás 3 rétegű nyílászárókkal, redőnnyel felszerelt.
Bútorozatlan, gyorsan költözhető.
A lakásban a dohányzás és kisállat tartása NEM engedélyezett!
A bérleti díj havonta: 190.000,-Ft+rezsi (kb. 30.000,-Ft/hó)
2 havi kaució+1 havi bérleti díj megfizetése mellett, közjegyzői nyilatkozattal bérelhető. (A közjegyzői díj: 51.000,-Ft)
Igény esetén a mélygarázsban parkolóhely is kérhető, melynek havi bérleti díja: 25.000,-Ft/hó.
Az ingatlan egy liftes társasház negyedik emeletnén található, alapterülete: 42,55m2, egy nappaliból nyíló 5,69 m2-es erkéllyel.
Elosztása szerint: nappali-konyha-étkező, 1 hálószoba, zuhanyzós fürdőszoba-wc, előszoba helyiségekből áll.
A padlófűtéses, klímás lakás 3 rétegű nyílászárókkal, redőnnyel felszerelt.
Bútorozatlan, gyorsan költözhető.
A lakásban a dohányzás és kisállat tartása NEM engedélyezett!
A bérleti díj havonta: 190.000,-Ft+rezsi (kb. 30.000,-Ft/hó)
2 havi kaució+1 havi bérleti díj megfizetése mellett, közjegyzői nyilatkozattal bérelhető. (A közjegyzői díj: 51.000,-Ft)
Igény esetén a mélygarázsban parkolóhely is kérhető, melynek havi bérleti díja: 25.000,-Ft/hó.