Kiadó Lakás
Hirdetéskód: 9307357
Füredi Kapu (DunaHouse)
Felújításhoz személyi kölcsönt keres? Kalkuláljon itt! →59.00 m2
ALAPTERÜLET2
SZOBASZÁMnincs megadva
ÉPÍTÉSTávfűtés egyedi méréssel
FŰTÉS- CSOK igénybe vehető nem
- Tetőtér beépíthető nem
- Építés éve 2021
- Fűtés Távfűtés egyedi méréssel
- Klíma nem
- Szigetelt nem
A+++
A++
A+
A
B
C
D
E
F
G
H
I
Az ingatlan leírása
Egy igazi gyöngyszem várja új bérlőjét Debrecen szívében!
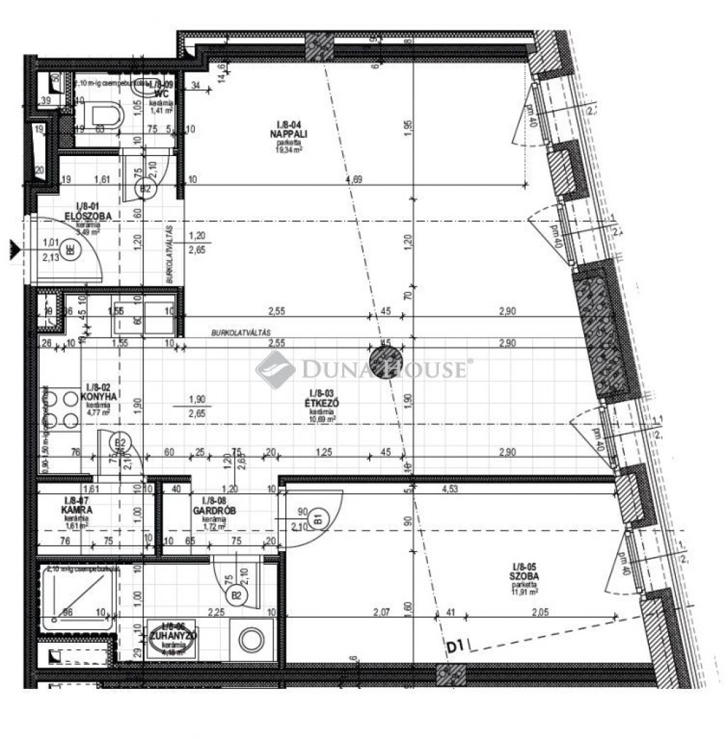
A SZÉCHENYI RESIDENCE elegáns atmoszférájában elhelyezkedő nappali+ 1 hálószobás lakásunk minden igényt kielégít, legyen szó kényelemről, praktikumról vagy exkluzivitásról. A 59 négyzetméteres lakás prémium kivitelezéssel és anyaghasználattal épült, amely azonnal érezhető a belépéskor. A kiváló elosztásnak köszönhetően minden négyzetmétert optimálisan használhat, így a tér tágasnak és rendezettnek hat.A kényelmet tovább fokozza a külön fürdő és WC, valamint a praktikus kamra, ami ideális tárolóhelyet biztosít mindennapi használati tárgyainknak. A lakás teljes mértékben bútorozottan kerül átadásra, így Önnek csak beköltöznie kell, és élvezni az otthon melegét.A modern műanyag nyílászárók és az elektronikus alumínium redőnyök nemcsak esztétikusak, de kiváló hő- és hangszigetelést biztosítanak, így a lakás mindig kellemes hőmérsékletű és csendes környezetet nyújt. A gyönyörű dekorfalak tovább emelik a lakás színvonalát és stílusát, egyedi hangulatot kölcsönözve az otthonnak.
A lakás légkondicionált, és gazdaságos egyedi mérésű távfűtéssel rendelkezik, így akár a legkeményebb téli napokon is kellemes melegben élvezheti otthona nyugalmát.
A kaució összege kéthavi bérleti díj.Ne habozzon, vegye fel velünk a kapcsolatot még ma!
Az energetikai tanúsítvány készítése folyamatban van, amint rendelkezésre áll, úgy azzal a hirdetés frissítésre kerül.
A SZÉCHENYI RESIDENCE elegáns atmoszférájában elhelyezkedő nappali+ 1 hálószobás lakásunk minden igényt kielégít, legyen szó kényelemről, praktikumról vagy exkluzivitásról. A 59 négyzetméteres lakás prémium kivitelezéssel és anyaghasználattal épült, amely azonnal érezhető a belépéskor. A kiváló elosztásnak köszönhetően minden négyzetmétert optimálisan használhat, így a tér tágasnak és rendezettnek hat.A kényelmet tovább fokozza a külön fürdő és WC, valamint a praktikus kamra, ami ideális tárolóhelyet biztosít mindennapi használati tárgyainknak. A lakás teljes mértékben bútorozottan kerül átadásra, így Önnek csak beköltöznie kell, és élvezni az otthon melegét.A modern műanyag nyílászárók és az elektronikus alumínium redőnyök nemcsak esztétikusak, de kiváló hő- és hangszigetelést biztosítanak, így a lakás mindig kellemes hőmérsékletű és csendes környezetet nyújt. A gyönyörű dekorfalak tovább emelik a lakás színvonalát és stílusát, egyedi hangulatot kölcsönözve az otthonnak.
A lakás légkondicionált, és gazdaságos egyedi mérésű távfűtéssel rendelkezik, így akár a legkeményebb téli napokon is kellemes melegben élvezheti otthona nyugalmát.
A kaució összege kéthavi bérleti díj.Ne habozzon, vegye fel velünk a kapcsolatot még ma!
Az energetikai tanúsítvány készítése folyamatban van, amint rendelkezésre áll, úgy azzal a hirdetés frissítésre kerül.