Kiadó Lakás
Hirdetéskód: 9243102
OTP Ingatlanpont Csongrád
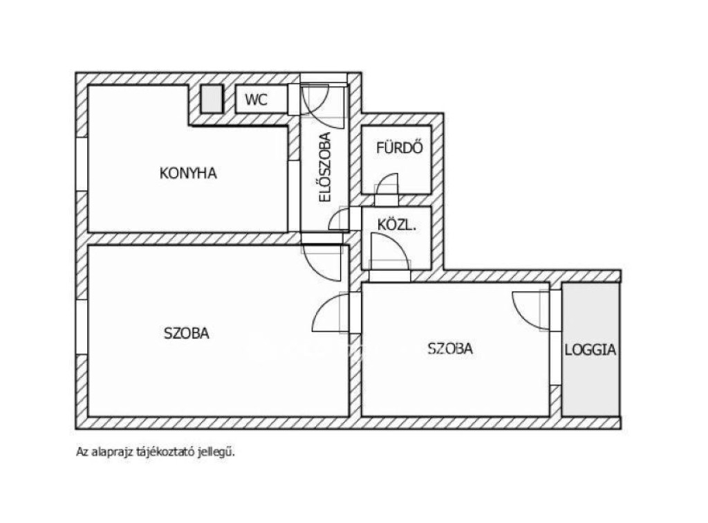
56.00 m2
ALAPTERÜLET2
SZOBASZÁMnincs megadva
ÉPÍTÉSnincs megadva
FŰTÉS- CSOK igénybe vehető nem
- Tetőtér beépíthető nem
- Építés éve 1980
- Klíma nem
- Szigetelt nem
A+++
A++
A+
A
B
C
D
E
F
G
H
I
Az ingatlan leírása
---Kiadó lakás az OTP Ingatlanpont kínálatában--- Csongrád központjában 56m2-es, erkélyes részben bútorozott és gépesített téglalakás kiadó. Az 1. emeleti lakás két szobás, tágas konyhával rendelkezik, jó elosztású, napfényes. Fűtése gázkonvektoros, és egy új hűtő-fűtő klíma is rendelkezésre áll. A nyílászárók újak. A melegvizet villanybojler szolgáltatja. A tusolós fürdőszoba mosógéppel felszerelt. A képeken látható bútorok, hűtő, tűzhely a felszerelés részét képezik. A közös költség 6000Ft, ehhez jön még a szemétszállítás díja, ami egyénileg fizetendő. Az áram, víz, gáz fogyasztás egyedileg mérhető, mérőórák alapján fizetendő. A lakás frissen van festve. A minimális bérlési idő 1 év, beköltözéskor 2 havi kaució megfizetése szükséges. Kisállat tartása a lakásban nem megengedett, dohányzás az erkélyen lehetséges. Megbízható, leinformálható bérlők jelentkezését várjuk (max. 2 fő). Amennyiben felkeltette érdeklődését, keressen bizalommal!
Az OTP Ingatlanpont teljes körű ügyintézéssel áll az eladók és vevők rendelkezésére. A kínálatunkból választott ingatlan finanszírozásához kedvezményes hitelkonstrukciót biztosítunk. Az OTP Banknál elérhető Babaváró, falusi CSOK, CSOK Plusz hitel és egyéb kölcsönök intézését díjmentesen vállaljuk. Az adásvételi szerződés megkötéséhez igény szerint ügyvédet biztosítunk. Irodáink Szentes, Petőfi utca 12. a buszmegálló felől, és Csongrád, Fő utca 54. szám alatt várjuk a személyes érdeklődőket. Válasszuk ki együtt az Önnek legmegfelelőbb ajánlatot banki sorban állás nélkül!
Az OTP Ingatlanpont teljes körű ügyintézéssel áll az eladók és vevők rendelkezésére. A kínálatunkból választott ingatlan finanszírozásához kedvezményes hitelkonstrukciót biztosítunk. Az OTP Banknál elérhető Babaváró, falusi CSOK, CSOK Plusz hitel és egyéb kölcsönök intézését díjmentesen vállaljuk. Az adásvételi szerződés megkötéséhez igény szerint ügyvédet biztosítunk. Irodáink Szentes, Petőfi utca 12. a buszmegálló felől, és Csongrád, Fő utca 54. szám alatt várjuk a személyes érdeklődőket. Válasszuk ki együtt az Önnek legmegfelelőbb ajánlatot banki sorban állás nélkül!