Kiadó Lakás
Hirdetéskód: 9323263

OTP Ingatlanpont - Budapest IX. ker., Üllői út 21.

Felújításhoz személyi kölcsönt keres? Kalkuláljon itt! →
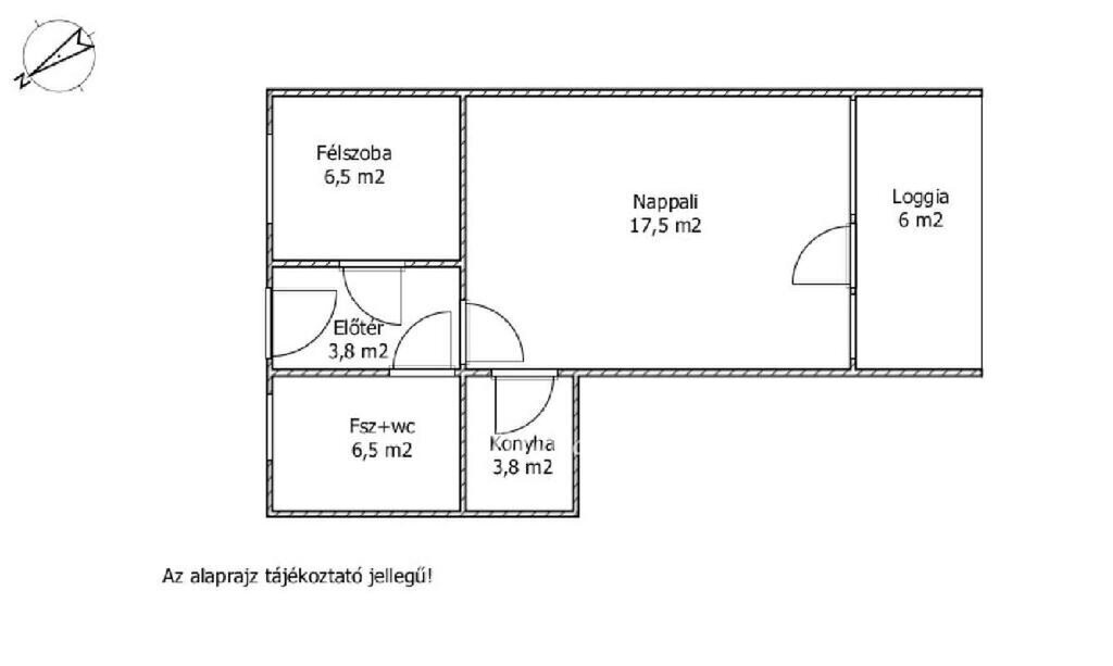
39.00 m2
ALAPTERÜLET
1
SZOBASZÁM
nincs megadva
ÉPÍTÉS
Házközponti fűtés egyedi méréssel
FŰTÉS
  • CSOK igénybe vehető nem
  • Tetőtér beépíthető nem
  • Építés éve 2005
  • Fűtés Házközponti fűtés egyedi méréssel
  • Klíma nem
  • Szigetelt nem
Energetikai besorolás: Nincs meghatározva
A+++
A++
A+
A
B
C
D
E
F
G
H
I

Az MBH Bank személyi kölcsön ajánlata

Fizetett hirdetés
1 millió Ft
6 évre
20 585 Ft/hó
THM: 14.5%
Részletek →
2 millió Ft
6 évre
41 169 Ft/hó
THM: 14.5%
Részletek →
3 millió Ft
6 évre
61 754 Ft/hó
THM: 14.5%
Részletek →

A tájékoztatás nem teljes körű és nem minősül ajánlattételnek.

Az ingatlan leírása

Figyelem! Az OTP Ingatlanpont kínálatában! Nyugalomra vágyik egy mozgalmas nap, a város zaja és nyüzsgése után? Kiadó XIII. kerület Göncz Árpád Városközpont közelében egy 2005-ben épült téglaépületben, kiváló közlekedésű, másfélszobás, I. emeleti, azonnal költözhető, bútorozatlan lakás. A konyhában konyhabútor, villanytűzhely és hűtőszekrény található. Az M3 metróvonal közelében (Forgách utcai megálló és Göncz Á. Városközpont között) helyezkedik el 5 perces sétára, csendes utcában, kiváló közlekedéssel. Tágas, világos nappali, nagy loggia, nyugodt atmoszférájú hálószoba, kis praktikus konyha, felújított zuhanyzós fürdőszoba, tágas előszoba várja új bérlőjét! Tökéletes választássá és hangulatos otthonává válhat fiatal, ill. újrakezdő gyermektelen párnak, egyedülálló személynek, esetleg egyetemistának! A lakásban a dohányzás nem megengedett! Gyermek, kisállat nem lehetséges. A ház, a lakók ill. a lépcsőház rendezett. Közjegyzői kiköltözési nyilatkozat, 1 havi bérleti díj és 2 havi kaució megfizetése szükséges. Ha hirdetésünk felkeltette érdeklődését, kérem hívjon bizalommal a hét bármely napján! Az OTP Ingatlanpont teljes körű ügyintézéssel áll mind az eladók, a kiadók, vevők és a bérlők rendelkezésére! A bérleti szerződés megkötéséhez igény szerint megbízható ügyvédi és közjegyzői közreműködést biztosítunk.

Térkép

Ingatlan adásvétel ügyvédi díja
150 000 Ft
a hirdetésben szereplő ár alapján
  • A vételár 0,45%-a
  • Szerződéscsomag teljeskörű képviselettel
  • Ingyenes tulajdoni lap ellenőrzés
  • Az ÁFA-t már tartalmazza
Érdekel az ajánlat →
A tájékoztatás nem teljes körű és nem minősül ajánlattételnek. Minimum díj: 150 000 Ft, maximum díj: 600 000 Ft. A díj kizárólag lakóingatlan adásvételére vonatkozik.

A hirdető elérhetősége

OTP Ingatlanpont - Budapest IX. ker., Üllői út 21.

Juhász Emese
+36 70 369