Kiadó Lakás
Hirdetéskód: 9298105

Alberlet.hu Ingatlan Kft.

Felújításhoz személyi kölcsönt keres? Kalkuláljon itt! →
100.00 m2
ALAPTERÜLET
3
SZOBASZÁM
nincs megadva
ÉPÍTÉS
Házközponti fűtés egyedi méréssel
FŰTÉS
  • CSOK igénybe vehető nem
  • Belső szintek 9
  • Tetőtér beépíthető nem
  • Fűtés Házközponti fűtés egyedi méréssel
  • Klíma nem
  • Szigetelt nem
Energetikai besorolás: Nincs meghatározva
A+++
A++
A+
A
B
C
D
E
F
G
H
I

Az MBH Bank személyi kölcsön ajánlata

Fizetett hirdetés
1 millió Ft
6 évre
20 585 Ft/hó
THM: 14.5%
Részletek →
2 millió Ft
6 évre
41 169 Ft/hó
THM: 14.5%
Részletek →
3 millió Ft
6 évre
61 754 Ft/hó
THM: 14.5%
Részletek →

A tájékoztatás nem teljes körű és nem minősül ajánlattételnek.

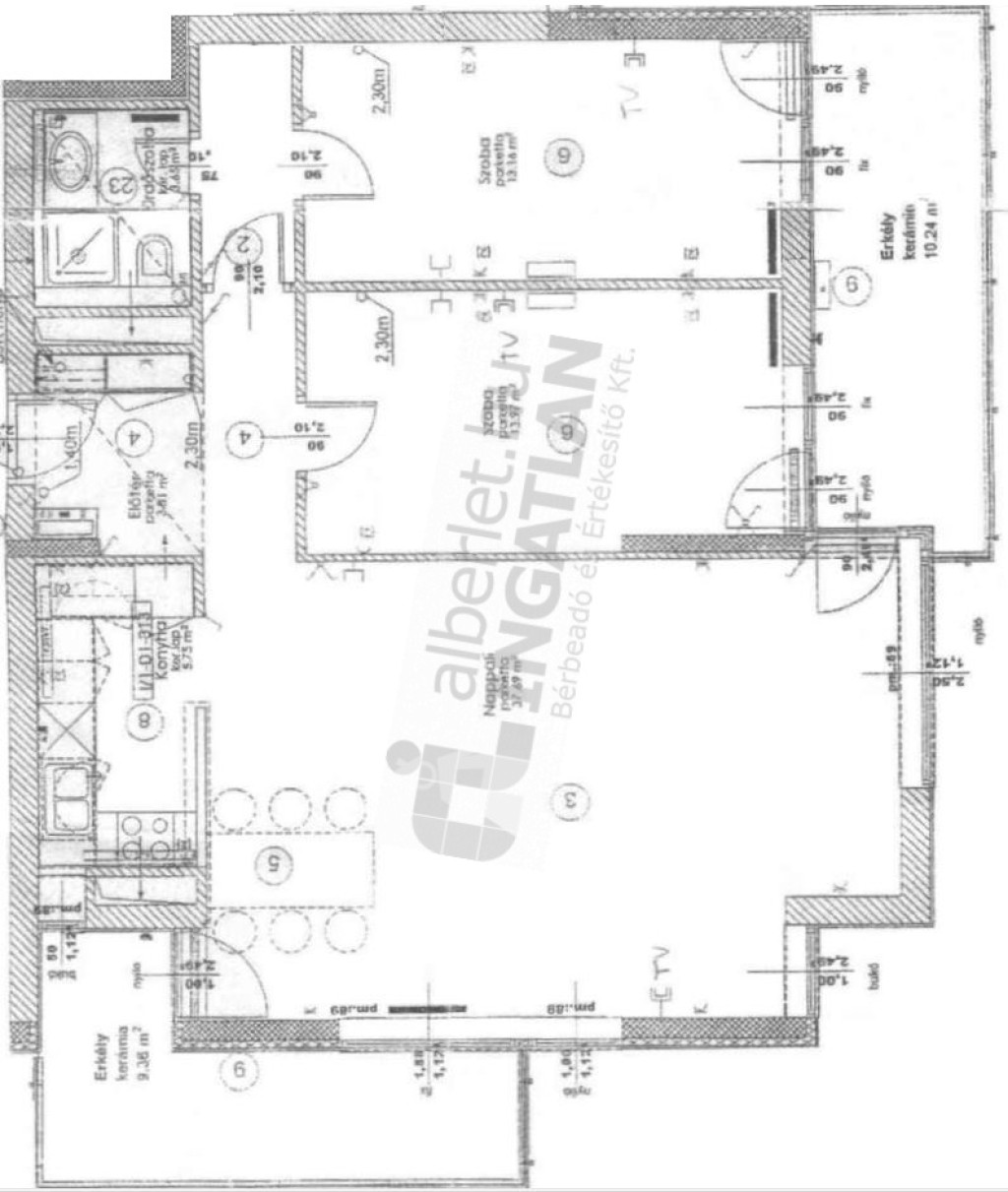
Az ingatlan leírása

13. kerületben, a Népfürdő utcában kiadó egy 95 nm-es, 3 szobás, különlegesen berendezett, teljes dunai panorámás lakás. Az őrzött lakóparkban uszoda, fitneszterem, jacuzzi és szaunák biztosítják a lakók kényelmét. Bérleti díj: 2.000 EUR/hó, rezsi: 73.000 Ft, mely az összes szolgáltatást is tartalmazza.

Térkép

Ingatlan adásvétel ügyvédi díja
150 000 Ft
a hirdetésben szereplő ár alapján
  • A vételár 0,45%-a
  • Szerződéscsomag teljeskörű képviselettel
  • Ingyenes tulajdoni lap ellenőrzés
  • Az ÁFA-t már tartalmazza
Érdekel az ajánlat →
A tájékoztatás nem teljes körű és nem minősül ajánlattételnek. Minimum díj: 150 000 Ft, maximum díj: 600 000 Ft. A díj kizárólag lakóingatlan adásvételére vonatkozik.

A hirdető elérhetősége

Alberlet.hu Ingatlan Kft.

Tóth Boglárka
+36 70 799