Kiadó Lakás
Hirdetéskód: 9282088

Alberlet.hu Ingatlan Kft.

Felújításhoz személyi kölcsönt keres? Kalkuláljon itt! →
67.00 m2
ALAPTERÜLET
2
SZOBASZÁM
nincs megadva
ÉPÍTÉS
Gáz (cirkó)
FŰTÉS
  • CSOK igénybe vehető nem
  • Belső szintek 5
  • Tetőtér beépíthető nem
  • Fűtés Gáz (cirkó)
  • Klíma nem
  • Szigetelt nem

Energetikai besorolás: B

A+++
A++
A+
A
B
C
D
E
F
G
H
I

Az MBH Bank személyi kölcsön ajánlata

Fizetett hirdetés
1 millió Ft
6 évre
20 585 Ft/hó
THM: 14.5%
Részletek →
2 millió Ft
6 évre
41 169 Ft/hó
THM: 14.5%
Részletek →
3 millió Ft
6 évre
61 754 Ft/hó
THM: 14.5%
Részletek →

A tájékoztatás nem teljes körű és nem minősül ajánlattételnek.

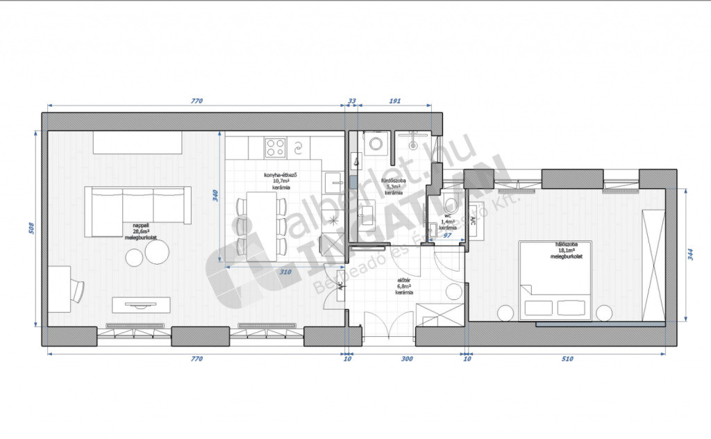
Az ingatlan leírása

Hegedűs Gyula utcában, Westend és Szent István park közöt félúton kiadó egy csendes, harmadik emeleti, bútorozott lakás.

Nappali-konyha, egy hálószoba, külön fürdő-WC, teljes körűen felújított ingatlan.

Klíma, mosogatógép, mosó-szárítógép, stb.

Újlipótváros szívében, mégis csendes, belső udvarra néző, 3. emeleti, liftes házban található, 67 m²-es, 1 hálószobás, nappali–konyhás, teljes körűen felújított, bútorozott lakás hosszú távra kiadó. A lakás azonnal költözhető, környéke szolgáltatásokban és tömegközlekedésben kiemelkedően jól ellátott.


Közös költség 23.000 Ft., víz, villany, gáz fogyasztás alapján fizetendő.


Három havi kaució, azonnal költözhető!

Térkép

Ingatlan adásvétel ügyvédi díja
150 000 Ft
a hirdetésben szereplő ár alapján
  • A vételár 0,45%-a
  • Szerződéscsomag teljeskörű képviselettel
  • Ingyenes tulajdoni lap ellenőrzés
  • Az ÁFA-t már tartalmazza
Érdekel az ajánlat →
A tájékoztatás nem teljes körű és nem minősül ajánlattételnek. Minimum díj: 150 000 Ft, maximum díj: 600 000 Ft. A díj kizárólag lakóingatlan adásvételére vonatkozik.

A hirdető elérhetősége

Alberlet.hu Ingatlan Kft.

Miró András
+36 70 984