Kiadó Lakás
Hirdetéskód: 9255580
Fővállalkozó Balla és Balla Kft
Felújításhoz személyi kölcsönt keres? Kalkuláljon itt! →51.00 m2
ALAPTERÜLET2
SZOBASZÁMnincs megadva
ÉPÍTÉSTávfűtés egyedi méréssel
FŰTÉS- CSOK igénybe vehető nem
- Tetőtér beépíthető nem
- Fűtés Távfűtés egyedi méréssel
- Klíma nem
- Szigetelt nem
A+++
A++
A+
A
B
C
D
E
F
G
H
I
Az ingatlan leírása
Erkélyes, világos lakás a Bikás park közelében – azonnal költözhető!
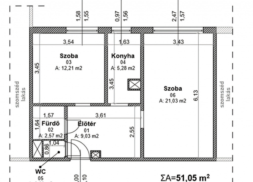
Budapest XI. kerületében, az Etele úton, a Bikás park szomszédságában kiadó egy 51 nm-es,VII.emeleti, 2 külön nyíló szobás, világos és csendes panellakás. Az ingatlan erkélyes, panelprogramos, rendezett házban található. Megközelítése kiváló.
A környék minden szempontból ideális: Bikás park, Kelenföldi pályaudvar, Allee Bevásárlóközpont és a M4 metró könnyedén elérhető.
A lakás berendezve, a képeken látható bútorokkal, valamint teljesen gépesítve kiadó. Kisállat megbeszélés szerint hozható. Parkolás az utcán fizetős övezetben, bejelentkezési lehetőséggel.
Havi bérleti díj: 240 000Ft + rezsi
A közös költség 22 000 Ft.
A beköltözéshez 2 havi kaució + közjegyzői nyilatkozat szükséges.
Ha egy jól elhelyezkedő, azonnal költözhető, élhető lakást keres a XI. kerületben, ezt érdemes megnézni!
Budapest XI. kerületében, az Etele úton, a Bikás park szomszédságában kiadó egy 51 nm-es,VII.emeleti, 2 külön nyíló szobás, világos és csendes panellakás. Az ingatlan erkélyes, panelprogramos, rendezett házban található. Megközelítése kiváló.
A környék minden szempontból ideális: Bikás park, Kelenföldi pályaudvar, Allee Bevásárlóközpont és a M4 metró könnyedén elérhető.
A lakás berendezve, a képeken látható bútorokkal, valamint teljesen gépesítve kiadó. Kisállat megbeszélés szerint hozható. Parkolás az utcán fizetős övezetben, bejelentkezési lehetőséggel.
Havi bérleti díj: 240 000Ft + rezsi
A közös költség 22 000 Ft.
A beköltözéshez 2 havi kaució + közjegyzői nyilatkozat szükséges.
Ha egy jól elhelyezkedő, azonnal költözhető, élhető lakást keres a XI. kerületben, ezt érdemes megnézni!