Kiadó Lakás
Hirdetéskód: 9236935
Premium Apartments
166.00 m2
ALAPTERÜLET5
SZOBASZÁMTégla
ÉPÍTÉSGáz (cirkó)
FŰTÉS- CSOK igénybe vehető nem
- Belső szintek 3
- Tetőtér beépíthető nem
- Kilátás Utcai
- Ingatlan komfort Komfortos
- Parkolási lehetőség Utcán, közterületen
- Fűtés Gáz (cirkó)
- Építőanyag Tégla
- Erkély, terasz Erkély
- Klíma igen
- Szigetelt nem
A+++
A++
A+
A
B
C
D
E
F
G
H
I
Az ingatlan leírása
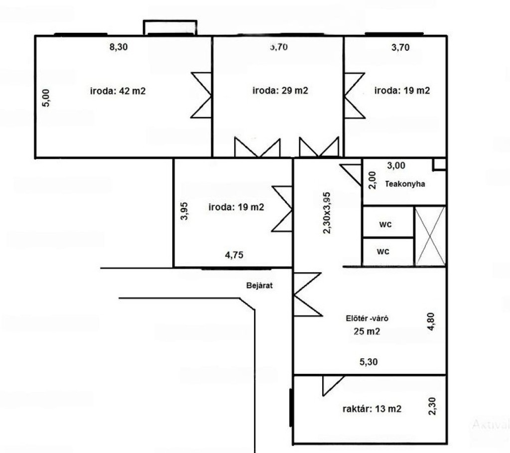
A XI. kerületben a Bartók Béla úton - a Móricz Zsigmond körtérnél - hosszú távra kiadó egy eredetileg IRODÁNAK KIALAKÍTOTT, NAGY TEREKKEL rendelkező, körtérre néző, 1. emeleti, kifejezetten VILÁGOS lakás.
A lakásban az eredeti funkciója miatt fürdőszoba nem lett kiépítve, 2 WC-vel, teakonyhával rendelkezik, emellett 5 szoba - 2 KLÍMÁVAL felszerelt, 3 utcai nézetű, 2 udvar - található benne, illetve egy kisebb erkély is tartozik hozzá.
A lakás RIASZTÓVAL felszerelt.
A rezsi egyedi mérés alapján fizetendő.
Megtekintéssel kapcsolatban keressenek bizalommal!
A lakásban az eredeti funkciója miatt fürdőszoba nem lett kiépítve, 2 WC-vel, teakonyhával rendelkezik, emellett 5 szoba - 2 KLÍMÁVAL felszerelt, 3 utcai nézetű, 2 udvar - található benne, illetve egy kisebb erkély is tartozik hozzá.
A lakás RIASZTÓVAL felszerelt.
A rezsi egyedi mérés alapján fizetendő.
Megtekintéssel kapcsolatban keressenek bizalommal!