Kiadó Lakás
Hirdetéskód: 9282049

Alberlet.hu Ingatlan Kft.

Felújításhoz személyi kölcsönt keres? Kalkuláljon itt! →
41.00 m2
ALAPTERÜLET
1
SZOBASZÁM
nincs megadva
ÉPÍTÉS
Házközponti fűtés egyedi méréssel
FŰTÉS
  • CSOK igénybe vehető nem
  • Belső szintek 6
  • Tetőtér beépíthető nem
  • Fűtés Házközponti fűtés egyedi méréssel
  • Klíma nem
  • Szigetelt nem
Energetikai besorolás: Nincs meghatározva
A+++
A++
A+
A
B
C
D
E
F
G
H
I

Az MBH Bank személyi kölcsön ajánlata

Fizetett hirdetés
1 millió Ft
6 évre
20 585 Ft/hó
THM: 14.5%
Részletek →
2 millió Ft
6 évre
41 169 Ft/hó
THM: 14.5%
Részletek →
3 millió Ft
6 évre
61 754 Ft/hó
THM: 14.5%
Részletek →

A tájékoztatás nem teljes körű és nem minősül ajánlattételnek.

Az ingatlan leírása

KIADÓ CSENDES, ÚJSZERŰ LAKÁS A VIII. KERÜLET MEGÚJULÓ RÉSZÉN – BAROSS UTCA

A VIII. kerület DINAMIKUSAN MEGÚJULÓ RÉSZÉN, a BAROSS UTCA 114–116. SZÁM ALATT kiadó egy 2006-BAN ÉPÜLT, LIFTES, ÚJSZERŰ TÁRSASHÁZ 1. emeletén található, CSENDES, 41 M²-ES LAKÁS.

A lakás NEM UTCÁRA, HANEM VÉDETT, BELSŐ RÉSZRE NÉZ, így a forgalom zaja nem hallatszik be – nyugodt, élhető környezetet biztosít.

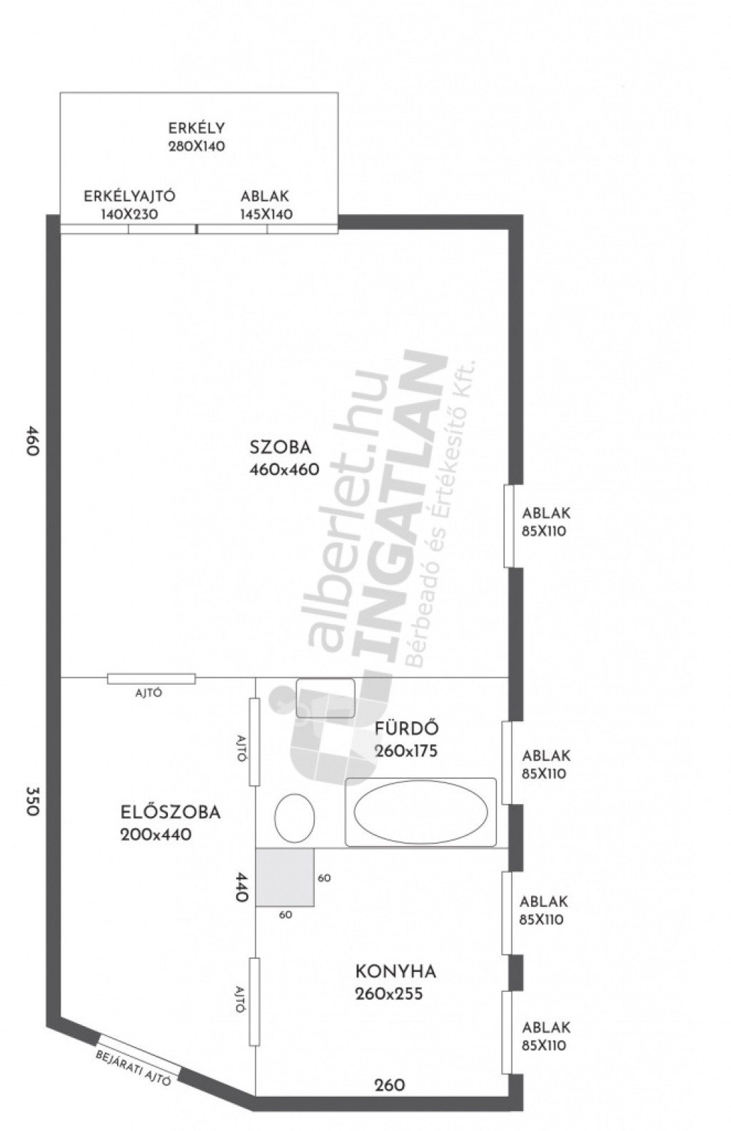
ELRENDEZÉS:

TÁGAS SZOBA – 21 M²

KÜLÖN NYÍLÓ KONYHA (!) – ritka és keresett megoldás

KÁDAS FÜRDŐSZOBA WC-VEL

NAGY MÉRETŰ ELŐSZOBA

ERKÉLY – 3 M²

ÁLLAPOT, FELSZERELTSÉG:

ÚJSZERŰ ÁLLAPOT

MŰANYAG NYÍLÁSZÁRÓK, REDŐNNYEL

BÚTOROZOTT ÉS GÉPESÍTETT

HÁZKÖZPONTI FŰTÉS EGYEDI MÉRÉSSEL

Térkép

Ingatlan adásvétel ügyvédi díja
150 000 Ft
a hirdetésben szereplő ár alapján
  • A vételár 0,45%-a
  • Szerződéscsomag teljeskörű képviselettel
  • Ingyenes tulajdoni lap ellenőrzés
  • Az ÁFA-t már tartalmazza
Érdekel az ajánlat →
A tájékoztatás nem teljes körű és nem minősül ajánlattételnek. Minimum díj: 150 000 Ft, maximum díj: 600 000 Ft. A díj kizárólag lakóingatlan adásvételére vonatkozik.

A hirdető elérhetősége

Alberlet.hu Ingatlan Kft.

Kriston Erika
+36 70 799