Kiadó Lakás
Hirdetéskód: 9177950

Duna House Csillaghegy

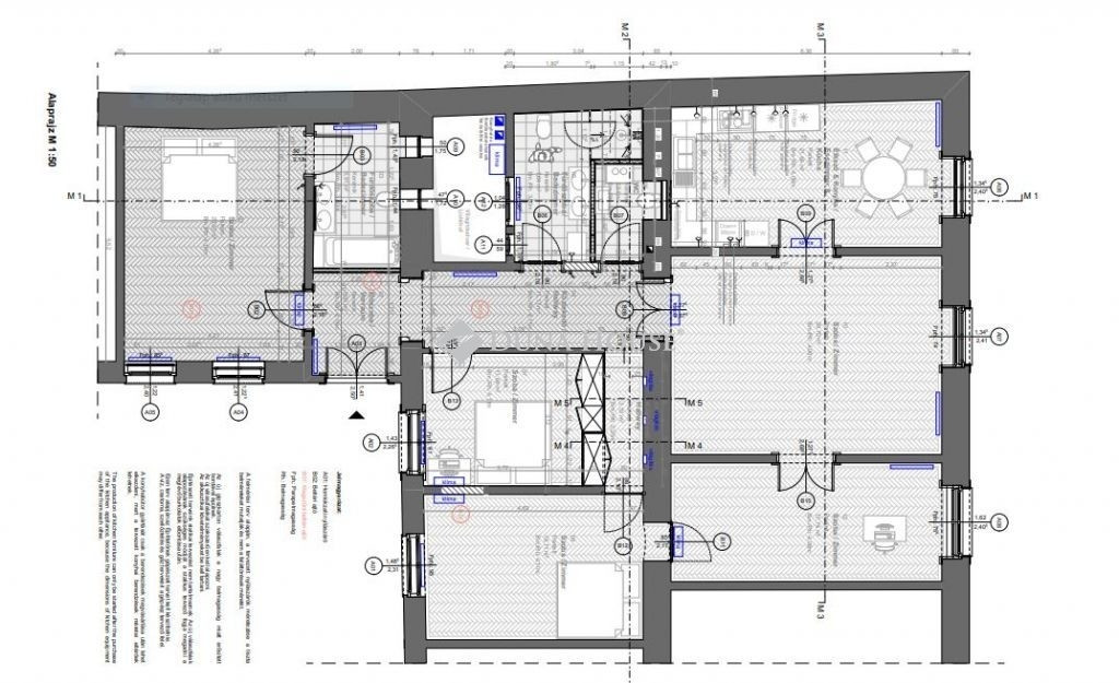
85 m2
ALAPTERÜLET
4
SZOBASZÁM
nincs megadva
ÉPÍTÉS
nincs megadva
FŰTÉS
  • CSOK igénybe vehető nem
  • Tetőtér beépíthető nem
  • Építés éve 1900
  • Klíma nem
  • Szigetelt nem
Energetikai besorolás: Nincs meghatározva
A+++
A++
A+
A
B
C
D
E
F
G
H
I

Az ingatlan leírása

Prémium lakást kínálunk igényes bérlő részére a Váci utca közelében, Gyönyörű enteriőrrel, azonnal költözhető állapotban! A közelben vásárlási lehetőségek, kávézók, iskolák és tökéletes közlekedés is növeli a konfort-érzetet!

Térkép

A hirdető elérhetősége

Duna House Csillaghegy

Gyökeri Ágnes
+36 20 418