Kiadó Lakás
Hirdetéskód: 9301549

GDN Ingatlanhálózat - REGION

Felújításhoz személyi kölcsönt keres? Kalkuláljon itt! →
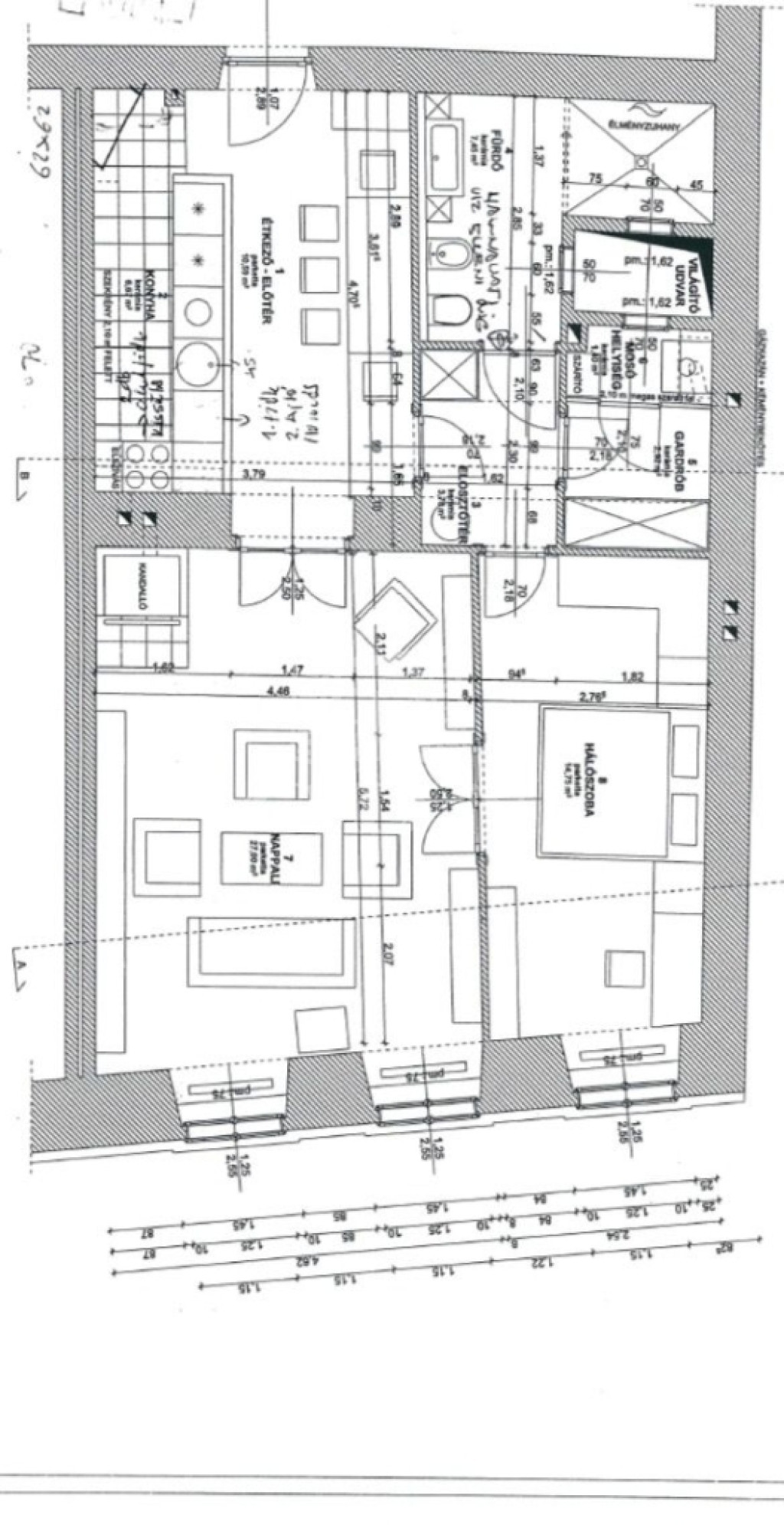
79.00 m2
ALAPTERÜLET
2
SZOBASZÁM
nincs megadva
ÉPÍTÉS
Gáz (cirkó)
FŰTÉS
  • CSOK igénybe vehető nem
  • Tetőtér beépíthető nem
  • Fűtés Gáz (cirkó)
  • Klíma nem
  • Szigetelt nem
Energetikai besorolás: Nincs meghatározva
A+++
A++
A+
A
B
C
D
E
F
G
H
I

Az MBH Bank személyi kölcsön ajánlata

Fizetett hirdetés
1 millió Ft
6 évre
20 585 Ft/hó
THM: 14.5%
Részletek →
2 millió Ft
6 évre
41 169 Ft/hó
THM: 14.5%
Részletek →
3 millió Ft
6 évre
61 754 Ft/hó
THM: 14.5%
Részletek →

A tájékoztatás nem teljes körű és nem minősül ajánlattételnek.

Az ingatlan leírása

Kiadó elegáns, világos lakás a Budai Vár szívében – irodának vagy rendelőnek is tökéletes!
A történelmi hangulatú Budai Vár központi részén kiadó egy 79 m²-es, első emeleti, utcai nézetű, jó állapotú lakás. A tágas, világos terek és a két szoba (egyben és külön is nyíló) rugalmas elrendezést biztosítanak, így irodának, ügyvédi irodának vagy magánrendelőnek is kiváló választás.
A reprezentatív környezet, a központi elhelyezkedés és a praktikus alaprajz ideális helyszínt biztosít mind munkára, mind elegáns ügyfélfogadásra.
Bérleti díj: 2500 EUR / hó
Érdeklődés esetén keressen bizalommal! ...TOVÁBBI, TÖBBEZRES INGATLAN KÍNÁLAT: - GDN azonosító: 393622

Térkép

Ingatlan adásvétel ügyvédi díja
150 000 Ft
a hirdetésben szereplő ár alapján
  • A vételár 0,45%-a
  • Szerződéscsomag teljeskörű képviselettel
  • Ingyenes tulajdoni lap ellenőrzés
  • Az ÁFA-t már tartalmazza
Érdekel az ajánlat →
A tájékoztatás nem teljes körű és nem minősül ajánlattételnek. Minimum díj: 150 000 Ft, maximum díj: 600 000 Ft. A díj kizárólag lakóingatlan adásvételére vonatkozik.

A hirdető elérhetősége

GDN Ingatlanhálózat - REGION

Makó Nelly
+36 70 367