Kiadó Kereskedelmi és ipari ingatlan
Hirdetéskód: 9186271

OTP Ingatlanpont - Takács Zsuzsanna

Felújításhoz személyi kölcsönt keres? Kalkuláljon itt! →
400.00 m2
ALAPTERÜLET
1
SZOBASZÁM
nincs megadva
ÉPÍTÉS
Egyéb fűtés
FŰTÉS
  • CSOK igénybe vehető nem
  • Tetőtér beépíthető nem
  • Építés éve 1960
  • Fűtés Egyéb fűtés
  • Klíma nem
  • Szigetelt nem
Energetikai besorolás: Nincs meghatározva
A+++
A++
A+
A
B
C
D
E
F
G
H
I

Az MBH Bank személyi kölcsön ajánlata

Fizetett hirdetés
1 millió Ft
6 évre
20 585 Ft/hó
THM: 14.5%
Részletek →
2 millió Ft
6 évre
41 169 Ft/hó
THM: 14.5%
Részletek →
3 millió Ft
6 évre
61 754 Ft/hó
THM: 14.5%
Részletek →

A tájékoztatás nem teljes körű és nem minősül ajánlattételnek.

Az ingatlan leírása

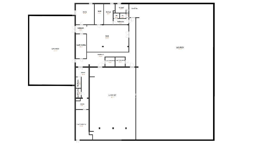
Szigetszentmiklós forgalmas útján kiadó 1027 nm-es földszinti + 140 nm-es emeleti, saját parkolókkal rendelkező épület együttes 400 nm-es üzlethelyisége. A parkolóban 6 csomagautomata is üzemel. Az ingatlan jelenleg üres, korábban élelmiszer üzlet működött benne. Igény esetén a tulajdonos nyitott további területek bérbeadására is. A bérleti díj : 12,5 EUR / m2 / hó + áfa -tól, tevékenységi kör és bérelt terület nagyságától változhat. Üzemeltetési díj: 0,95 EUR. 2017-ben az épületet teljes körűen felújították, kicserélték a víz,- villany vezetékeket, portálokat, álmennyezetet, burkolatokat, gyengeáramú rendszereket, korszerűsítették a hűtés-fűtés rendszert, a kamera,- és riasztó rendszert. Daikin VRV (Conveni Pack +Zeas) 2021-ben és 2023-ban energetikai fejlesztések történtek 83 KW-os napelemrendszer ABB inverter illetve 15,39 KW-os napelem rendszer bővítés (mérve 90.000 KW + áram termelés/év - szaldós elszámolással. További részletekért kérem keressen a megadott elérhetőségemen. A tulajdonos a bérlő választás jogát fenntartja, a szerződést közjegyzői okiratba foglaltatja, melynek a költsége a bérlőt terheli. 2 havi kaució és 1 havi bérleti díj megfizetése után azonnal költözhető. Minimum bérleti idő 5 év.
M312400

Térkép

Ingatlan adásvétel ügyvédi díja
150 000 Ft
a hirdetésben szereplő ár alapján
  • A vételár 0,45%-a
  • Szerződéscsomag teljeskörű képviselettel
  • Ingyenes tulajdoni lap ellenőrzés
  • Az ÁFA-t már tartalmazza
Érdekel az ajánlat →
A tájékoztatás nem teljes körű és nem minősül ajánlattételnek. Minimum díj: 150 000 Ft, maximum díj: 600 000 Ft. A díj kizárólag lakóingatlan adásvételére vonatkozik.

A hirdető elérhetősége

OTP Ingatlanpont - Takács Zsuzsanna

Takács Zsuzsanna
+36 30 495