Kiadó Kereskedelmi és ipari ingatlan
Hirdetéskód: 9175800

Duna House Csillaghegy

92.00 m2
ALAPTERÜLET
0
SZOBASZÁM
nincs megadva
ÉPÍTÉS
nincs megadva
FŰTÉS
  • CSOK igénybe vehető nem
  • Tetőtér beépíthető nem
  • Építés éve 2015
  • Klíma nem
  • Szigetelt nem
Energetikai besorolás: Nincs meghatározva
A+++
A++
A+
A
B
C
D
E
F
G
H
I

Az ingatlan leírása

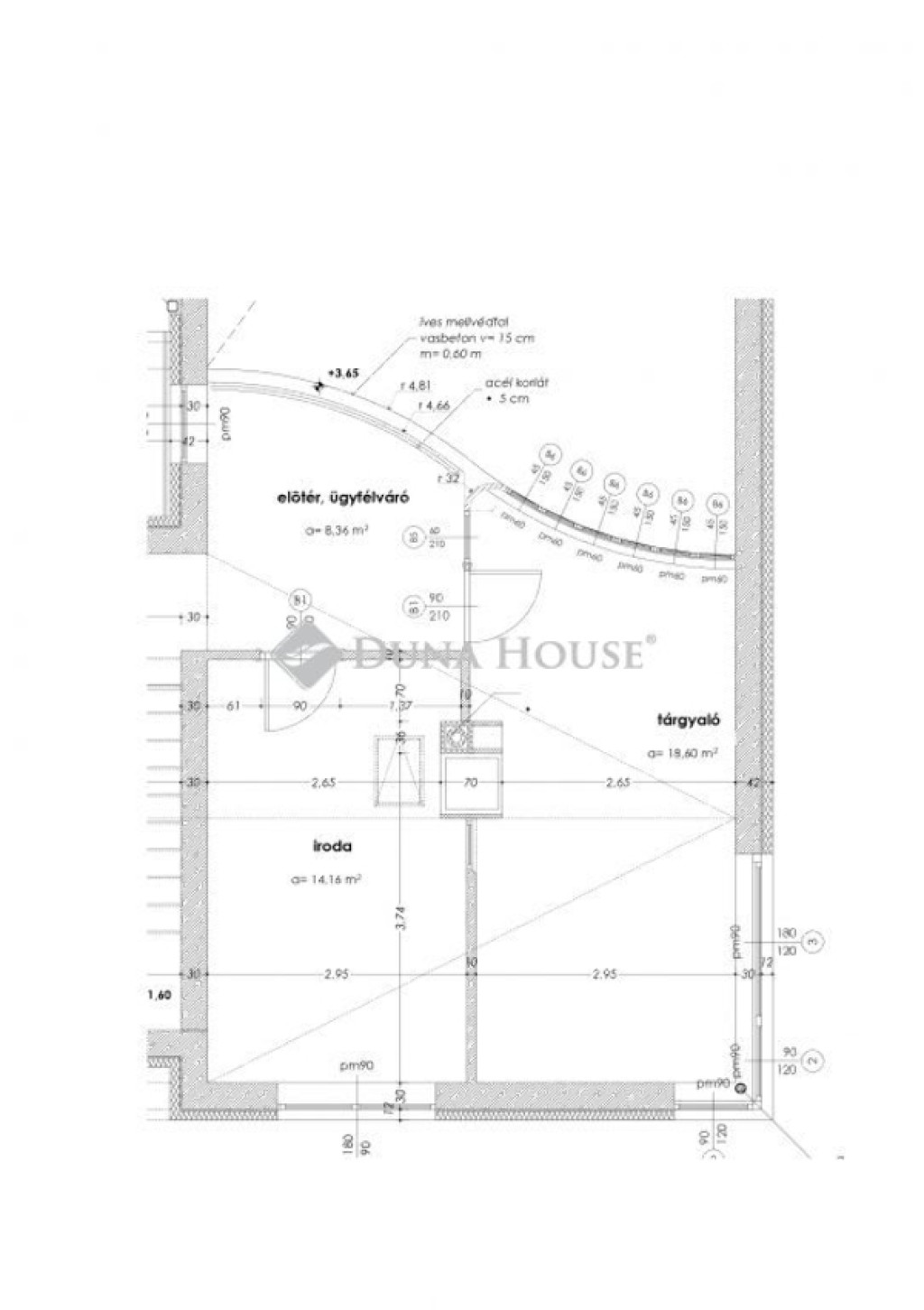
Elegáns iroda/üzlethelyiség/bemutatóterem kiadóSzentendre belvárosában, exkluzívan kialakított, forgalmas út mentén hosszú távra kiadó egy nettó 92 nm-es üzlethelyiség.Az elhelyezkedésből, minőségből fakadóan alkalmas lehet szinte bármilyen tevékenységre: irodának, bemutatóteremnek, üzletnek, jógastúdiónak, kávézónak, stb. Az üzlet földszinti, utcafronti, hirdetési lehetőséggel, 4 vendégparkolóval, ingyenes utcai parkolással. Jelenleg egy tér, kivéve a vizesblokkot, de megegyezéssel alakítható. Efelett található még 41 nm tárgyaló, mely szintén bérelhető a földszintivel együtt.Bérleti díj a földszinti üzlethelyiségre 625.000 Ft+áfa+rezsi, fenti 41 nm 320.000 Ft+áfa+rezsi

Térkép

A hirdető elérhetősége

Duna House Csillaghegy

Gyökeri Ágnes
+36 20 418