Kiadó Kereskedelmi és ipari ingatlan
Hirdetéskód: 9292457
GDN Ingatlanhálózat - Märcz Kft
Felújításhoz személyi kölcsönt keres? Kalkuláljon itt! →359.00 m2
ALAPTERÜLET0
SZOBASZÁMnincs megadva
ÉPÍTÉSnincs megadva
FŰTÉS- CSOK igénybe vehető nem
- Tetőtér beépíthető nem
- Klíma nem
- Szigetelt nem
A+++
A++
A+
A
B
C
D
E
F
G
H
I
Az ingatlan leírása
Bip-003221. Mártírok útján forgalmas főútvonal mellett telephely kiadó!
A telephely a vasútállomás mellet, a városközponthoz és az M7-es autópályához is közel, frekventált és forgalmas helyen található. Kiváló láthatósággal és reklámértékkel rendelkezik, az ingatlan előtt jelentős az átmenő autós forgalom. Autóval, tömegközlekedéssel (buszmegálló az épület előtt) és gyalogosan is könnyen megközelíthető. Széles elektromos úszókapuján keresztül mindkét irányból lehetséges a behajtás. Az udvar számos autónak képes parkolóhelyet biztosítani.
Telekterület: 1810m2
▪ utcafronti irodaépület (120m2 összalapterület két szinten):
⁃ elosztását tekintve a földszinten egy iroda/üzlethelyiségből, konyhából és két zuhanyzós mosdóból, a tetőtérben pedig 3db irodából és egy irattárból áll.
⁃ két bejáratos (utcafrontról és a belső udvar felől)
⁃ nagykirakatos
⁃ klimatizált
⁃ fűtése gázkazánnal, radiátoros hőleadással megoldott, melegvízről villanybojler gondoskodik
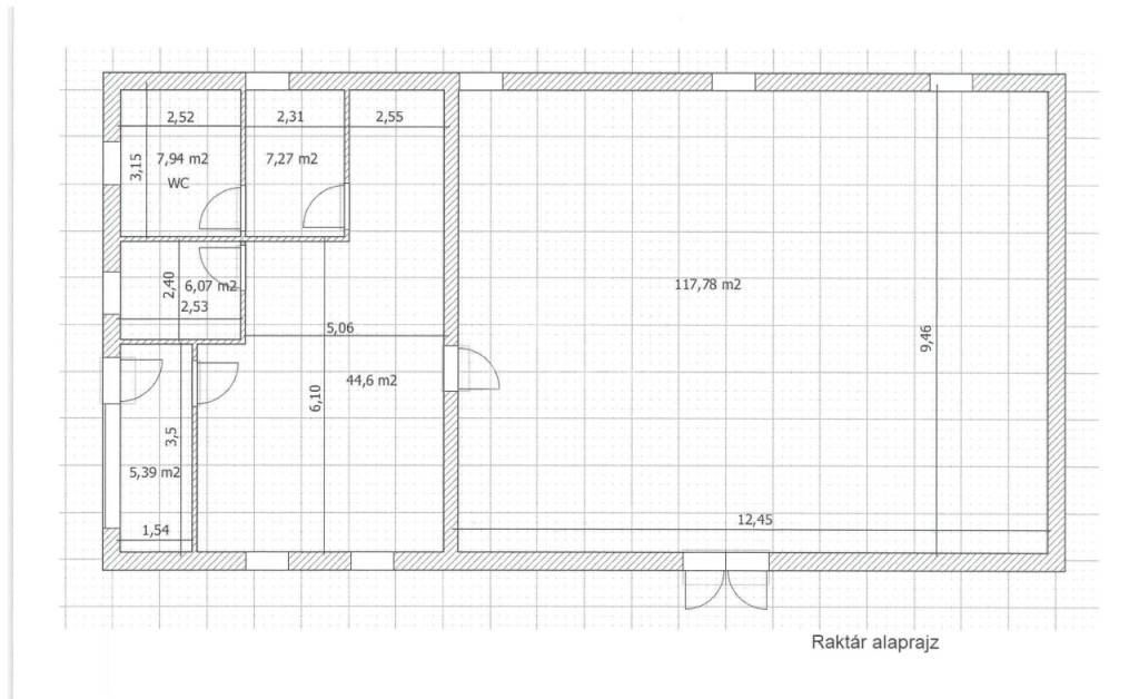
▪ raktár / műhely épület (189m2 összalapterület):
⁃ iroda, öltöző: 71m2 (fűtött)
⁃ hidegraktár: 118m2
⁃ melegvíz villanybojlerral
⁃ belmagasság: 3,2m
⁃ 1db kapu (2,9m x 3m)
A telephelynek jelenleg van már egy bérlője.
Bérleti díj: 420.000,- Ft +ÁFA/hó +rezsi +2 hónap kaució
Ha felkeltette érdeklődését, hívja irodánkat bizalommal, éljen ingyenes, személyre szabott hitelügyintézés szolgáltatásunkkal. Segítünk továbbá adásvételhez szükséges ügyvédi közreműködésben, energetikai tanúsítvány, valamint értékbecslés elkészítésében.
For English details please send us a message or an e-mail, thank you. ...TOVÁBBI, TÖBBEZRES INGATLAN KÍNÁLAT: - GDN azonosító: 393365
A telephely a vasútállomás mellet, a városközponthoz és az M7-es autópályához is közel, frekventált és forgalmas helyen található. Kiváló láthatósággal és reklámértékkel rendelkezik, az ingatlan előtt jelentős az átmenő autós forgalom. Autóval, tömegközlekedéssel (buszmegálló az épület előtt) és gyalogosan is könnyen megközelíthető. Széles elektromos úszókapuján keresztül mindkét irányból lehetséges a behajtás. Az udvar számos autónak képes parkolóhelyet biztosítani.
Telekterület: 1810m2
▪ utcafronti irodaépület (120m2 összalapterület két szinten):
⁃ elosztását tekintve a földszinten egy iroda/üzlethelyiségből, konyhából és két zuhanyzós mosdóból, a tetőtérben pedig 3db irodából és egy irattárból áll.
⁃ két bejáratos (utcafrontról és a belső udvar felől)
⁃ nagykirakatos
⁃ klimatizált
⁃ fűtése gázkazánnal, radiátoros hőleadással megoldott, melegvízről villanybojler gondoskodik
▪ raktár / műhely épület (189m2 összalapterület):
⁃ iroda, öltöző: 71m2 (fűtött)
⁃ hidegraktár: 118m2
⁃ melegvíz villanybojlerral
⁃ belmagasság: 3,2m
⁃ 1db kapu (2,9m x 3m)
A telephelynek jelenleg van már egy bérlője.
Bérleti díj: 420.000,- Ft +ÁFA/hó +rezsi +2 hónap kaució
Ha felkeltette érdeklődését, hívja irodánkat bizalommal, éljen ingyenes, személyre szabott hitelügyintézés szolgáltatásunkkal. Segítünk továbbá adásvételhez szükséges ügyvédi közreműködésben, energetikai tanúsítvány, valamint értékbecslés elkészítésében.
For English details please send us a message or an e-mail, thank you. ...TOVÁBBI, TÖBBEZRES INGATLAN KÍNÁLAT: - GDN azonosító: 393365