Kiadó Kereskedelmi és ipari ingatlan
Hirdetéskód: 9245800
GDN Ingatlanhálózat - Belvárosi Ingatlaniroda
Felújításhoz személyi kölcsönt keres? Kalkuláljon itt! →252.00 m2
ALAPTERÜLET6
SZOBASZÁMnincs megadva
ÉPÍTÉSnincs megadva
FŰTÉS- CSOK igénybe vehető nem
- Tetőtér beépíthető nem
- Klíma nem
- Szigetelt nem
A+++
A++
A+
A
B
C
D
E
F
G
H
I
Az ingatlan leírása
KIADÓ TELJES IRODASZINT SZEGED BELVÁROSÁBAN – A KÍGYÓ UTCÁBAN
Modern, reprezentatív iroda a város szívében.
Szeged belvárosának egyik legfrekventáltabb utcájában, a Kígyó utcában kínálunk kiadásra egy teljes irodaszintet egy liftes, teljeskörűen felújított irodaházban. Az ingatlan ideális választás olyan cégek számára, akik számára fontos a presztízs, a kiváló megközelíthetőség és a modern munkakörnyezet.
Az iroda az első emeleten helyezkedik el, az egész szint egyben bérelhető, így teljesen szeparált, önálló működést biztosít.
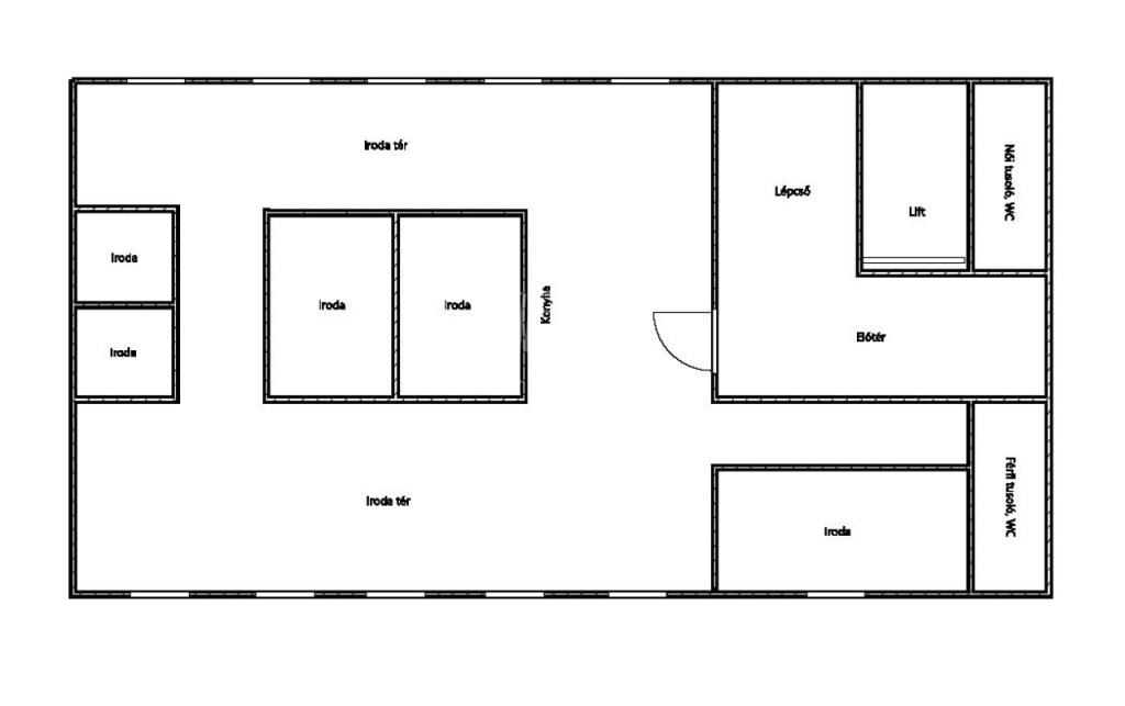
IRODA KIALAKÍTÁSA ÉS MÉRETEI
Teljes alapterület: 252 m²
Kialakítás: modern, egy légterű iroda
A központi térben:
- több, különböző méretű üvegfalú zárt iroda / tárgyaló
- egy nagyobb méretű vezetői iroda
Előtér
Gépesített konyha
Férfi és női WC + tusoló
Bútorozatlan – saját arculatra szabható
Az üvegfalas megoldások világos, inspiráló munkakörnyezetet teremtenek, miközben a zárt irodák megfelelő diszkréciót biztosítanak vezetői vagy tárgyaló funkciókra.
MŰSZAKI TARTALOM
- Fan-coil rendszerű hűtés–fűtés, egyedileg szabályozható
- Teljesen felújított épület
- Lift
- Utcáról nyíló, reprezentatív bejárat
- Korszerű gépészet, alacsony üzemeltetési kockázat
LOKÁCIÓ – BELVÁROS, KÍGYÓ UTCA
A Kígyó utca Szeged egyik legismertebb belvárosi utcája:
- kiváló tömegközlekedés
- éttermek, kávézók, bankok, szolgáltatások közvetlen közelben
- könnyű ügyfélfogadás, presztízsértékű cím
- ideális ügyvédi iroda, IT cég, tanácsadó vállalkozás, szolgáltató központ vagy regionális iroda számára
BÉRLETI FELTÉTELEK
Bérleti díj: 9,7 EUR / m² / hó
Üzemeltetési költség: 3 EUR / m² / hó
Rezsi: fogyasztás alapján
KINEK IDEÁLIS?
Olyan cégeknek, akik belvárosi jelenlétet keresnek
Ügyfélforgalmat bonyolító vállalkozásoknak
Regionális központnak vagy növekvő csapat számára
Akik egy modern, egyben bérelhető, reprezentatív irodát szeretnének Szeged szívében ...TOVÁBBI, TÖBBEZRES INGATLAN KÍNÁLAT: - GDN azonosító: 391523
Modern, reprezentatív iroda a város szívében.
Szeged belvárosának egyik legfrekventáltabb utcájában, a Kígyó utcában kínálunk kiadásra egy teljes irodaszintet egy liftes, teljeskörűen felújított irodaházban. Az ingatlan ideális választás olyan cégek számára, akik számára fontos a presztízs, a kiváló megközelíthetőség és a modern munkakörnyezet.
Az iroda az első emeleten helyezkedik el, az egész szint egyben bérelhető, így teljesen szeparált, önálló működést biztosít.
IRODA KIALAKÍTÁSA ÉS MÉRETEI
Teljes alapterület: 252 m²
Kialakítás: modern, egy légterű iroda
A központi térben:
- több, különböző méretű üvegfalú zárt iroda / tárgyaló
- egy nagyobb méretű vezetői iroda
Előtér
Gépesített konyha
Férfi és női WC + tusoló
Bútorozatlan – saját arculatra szabható
Az üvegfalas megoldások világos, inspiráló munkakörnyezetet teremtenek, miközben a zárt irodák megfelelő diszkréciót biztosítanak vezetői vagy tárgyaló funkciókra.
MŰSZAKI TARTALOM
- Fan-coil rendszerű hűtés–fűtés, egyedileg szabályozható
- Teljesen felújított épület
- Lift
- Utcáról nyíló, reprezentatív bejárat
- Korszerű gépészet, alacsony üzemeltetési kockázat
LOKÁCIÓ – BELVÁROS, KÍGYÓ UTCA
A Kígyó utca Szeged egyik legismertebb belvárosi utcája:
- kiváló tömegközlekedés
- éttermek, kávézók, bankok, szolgáltatások közvetlen közelben
- könnyű ügyfélfogadás, presztízsértékű cím
- ideális ügyvédi iroda, IT cég, tanácsadó vállalkozás, szolgáltató központ vagy regionális iroda számára
BÉRLETI FELTÉTELEK
Bérleti díj: 9,7 EUR / m² / hó
Üzemeltetési költség: 3 EUR / m² / hó
Rezsi: fogyasztás alapján
KINEK IDEÁLIS?
Olyan cégeknek, akik belvárosi jelenlétet keresnek
Ügyfélforgalmat bonyolító vállalkozásoknak
Regionális központnak vagy növekvő csapat számára
Akik egy modern, egyben bérelhető, reprezentatív irodát szeretnének Szeged szívében ...TOVÁBBI, TÖBBEZRES INGATLAN KÍNÁLAT: - GDN azonosító: 391523