Kiadó Kereskedelmi és ipari ingatlan
Hirdetéskód: 9265905

CasaNetWork Gödöllő Ingatlaniroda

Felújításhoz személyi kölcsönt keres? Kalkuláljon itt! →
51.00 m2
ALAPTERÜLET
1
SZOBASZÁM
nincs megadva
ÉPÍTÉS
Gáz (cirkó)
FŰTÉS
  • CSOK igénybe vehető nem
  • Tetőtér beépíthető nem
  • Építés éve 1980
  • Fűtés Gáz (cirkó)
  • Klíma nem
  • Szigetelt nem
Energetikai besorolás: Nincs meghatározva
A+++
A++
A+
A
B
C
D
E
F
G
H
I

Az MBH Bank személyi kölcsön ajánlata

Fizetett hirdetés
1 millió Ft
6 évre
20 585 Ft/hó
THM: 14.5%
Részletek →
2 millió Ft
6 évre
41 169 Ft/hó
THM: 14.5%
Részletek →
3 millió Ft
6 évre
61 754 Ft/hó
THM: 14.5%
Részletek →

A tájékoztatás nem teljes körű és nem minősül ajánlattételnek.

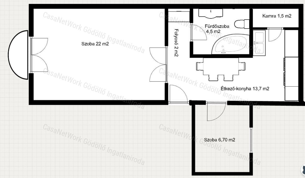
Az ingatlan leírása

Nagy forgalmú helyen a Dózsa Gy úton (Szilhát utca sarkán)  tásasasházi lakás IRODA / SZALON / RENDELŐ céljára KIADÓ,  hosszútávra.  Vállalkozás, cég számára is bérelhető. Egy világos nagy szoba erkéllyel,  és egy félszoba áll rendelkezésre. Tágas előszoba és vendégváró céljára használható az étkező. A konyha berendezett. Az ablakok jól szigetelő thermo üveggel és  redőnnyel felszereltek.Kondenzációs gázkazán biztosítja a fűtést,minden egyedi mérés alapján fizetendő. Alacsony a közös költsége 12,500 Ft/hó. 1 gépkocsi részére van felszínii beálló, ami sorompóval lezárt. 

Térkép

A hirdető elérhetősége

CasaNetWork Gödöllő Ingatlaniroda

Szilágyi Krisztina
+36 20 509