Kiadó Kereskedelmi és ipari ingatlan
Hirdetéskód: 9294019
OTP Ingatlanpont - Takács Zsuzsanna
Felújításhoz személyi kölcsönt keres? Kalkuláljon itt! →1460.00 m2
ALAPTERÜLET0
SZOBASZÁMnincs megadva
ÉPÍTÉSEgyéb fűtés
FŰTÉS- CSOK igénybe vehető nem
- Tetőtér beépíthető nem
- Építés éve 1990
- Fűtés Egyéb fűtés
- Klíma nem
- Szigetelt nem
A+++
A++
A+
A
B
C
D
E
F
G
H
I
Az ingatlan leírása
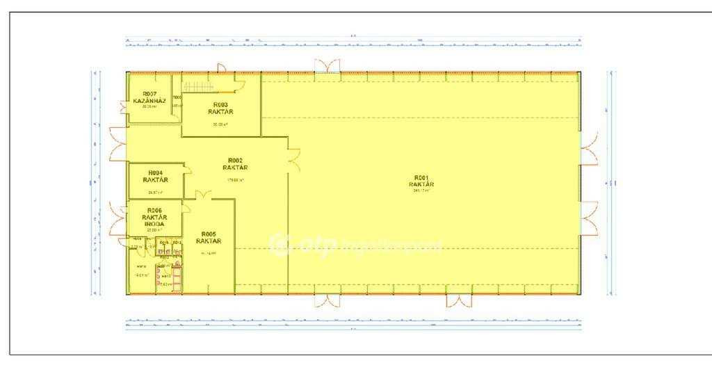
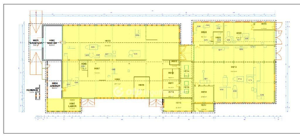
Göd ipari részén hatalmas telephelyen bérbeadásra kínálunk különböző méretű és állapotú gyártócsarnokokat, raktárakat, irodákat.
Ez egy jó állapotú, 1460 nm-es, 390cm belmagasságú csarnok, ipari árammal ellátott, targoncázható, fűthető, 3 db 410x315 cm-es ipari kapunk keresztül megközelíthető.
Vizesblokkja nincs, viszont egy kisebb iroda helyiséget kialakítottak benne,
Lehetőség van akár autószerelő műhely kialakítására, tárolásra, gyártásra. Az ingatlanok egy része targoncázható, teherautóval megközelíthető, fűthető, ipari kapuval ellátott, több bejárattal rendelkezik.
Kialakítástól és elhelyezkedéstől függően az itt megadott árak, alaprajzok esetlegesen változhatnak, eltérhetnek az itt megadottól (a konkrét igények alapján tud a tulajdonos megadni végleges árat és tudja kialakítani az elrendezést.)
Egyes esetekben közös területi szorzó is felszámolásra kerülhet.
A feltüntetett bérleti díjak nettók, NEM tartalmazzák az ÁFÁ-t, + 27 % ÁFA fizetendő!
Bérléshez szükséges 2 illetve kaució + 1 havi bérleti díj.
A tulajdonos a bérlő választás jogát fenntartja és a bérleti szerződést közjegyzői okiratba foglaltatja.
M323968
Ez egy jó állapotú, 1460 nm-es, 390cm belmagasságú csarnok, ipari árammal ellátott, targoncázható, fűthető, 3 db 410x315 cm-es ipari kapunk keresztül megközelíthető.
Vizesblokkja nincs, viszont egy kisebb iroda helyiséget kialakítottak benne,
Lehetőség van akár autószerelő műhely kialakítására, tárolásra, gyártásra. Az ingatlanok egy része targoncázható, teherautóval megközelíthető, fűthető, ipari kapuval ellátott, több bejárattal rendelkezik.
Kialakítástól és elhelyezkedéstől függően az itt megadott árak, alaprajzok esetlegesen változhatnak, eltérhetnek az itt megadottól (a konkrét igények alapján tud a tulajdonos megadni végleges árat és tudja kialakítani az elrendezést.)
Egyes esetekben közös területi szorzó is felszámolásra kerülhet.
A feltüntetett bérleti díjak nettók, NEM tartalmazzák az ÁFÁ-t, + 27 % ÁFA fizetendő!
Bérléshez szükséges 2 illetve kaució + 1 havi bérleti díj.
A tulajdonos a bérlő választás jogát fenntartja és a bérleti szerződést közjegyzői okiratba foglaltatja.
M323968