Kiadó Kereskedelmi és ipari ingatlan
Hirdetéskód: 9294025
OTP Ingatlanpont - Takács Zsuzsanna
Felújításhoz személyi kölcsönt keres? Kalkuláljon itt! →563.00 m2
ALAPTERÜLET0
SZOBASZÁMnincs megadva
ÉPÍTÉSElektromos
FŰTÉS- CSOK igénybe vehető nem
- Tetőtér beépíthető nem
- Építés éve 2020
- Fűtés Elektromos
- Klíma nem
- Szigetelt nem
A+++
A++
A+
A
B
C
D
E
F
G
H
I
Az ingatlan leírása
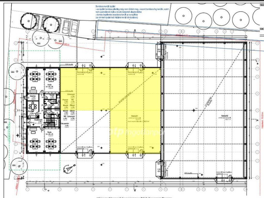
Göd ipari részén hatalmas telephelyen bérbeadásra kínálunk különböző méretű és állapotú gyártócsarnokokat, raktárakat, irodákat.
Ez egy új építésű üzemcsarnok, az emeleten lehetőség van iroda bérlésére is.
3 db 350x410-es ipar kapuval rendelkezik, belmagassága 480 cm, teherforgalommal megközelíthető.
A telephelyen rendelkezésre állnak még különböző méretű egyéb csarnokok is.
Lehetőség van akár autószerelő műhely kialakítására, tárolásra, gyártásra. Az ingatlanok egy része targoncázható, teherautóval megközelíthető, fűthető, ipari kapuval ellátott, több bejárattal rendelkezik.
Kialakítástól és elhelyezkedéstől függően az itt megadott árak, alaprajzok esetlegesen változhatnak, eltérhetnek az itt megadottól (a konkrét igények alapján tud a tulajdonos megadni végleges árat és tudja kialakítani az elrendezést.)
Egyes esetekben közös területi szorzó is felszámolásra kerülhet. A bérleti díj tartalmazza az üzemeltetési költséget is.
A feltüntetett bérleti díjak nettók, NEM tartalmazzák az ÁFÁ-t, + 27 % ÁFA fizetendő!
Bérléshez szükséges 2 illetve kaució + 1 havi bérleti díj.
A tulajdonos a bérlő választás jogát fenntartja és a bérleti szerződést közjegyzői okiratba foglaltatja.
M324110
Ez egy új építésű üzemcsarnok, az emeleten lehetőség van iroda bérlésére is.
3 db 350x410-es ipar kapuval rendelkezik, belmagassága 480 cm, teherforgalommal megközelíthető.
A telephelyen rendelkezésre állnak még különböző méretű egyéb csarnokok is.
Lehetőség van akár autószerelő műhely kialakítására, tárolásra, gyártásra. Az ingatlanok egy része targoncázható, teherautóval megközelíthető, fűthető, ipari kapuval ellátott, több bejárattal rendelkezik.
Kialakítástól és elhelyezkedéstől függően az itt megadott árak, alaprajzok esetlegesen változhatnak, eltérhetnek az itt megadottól (a konkrét igények alapján tud a tulajdonos megadni végleges árat és tudja kialakítani az elrendezést.)
Egyes esetekben közös területi szorzó is felszámolásra kerülhet. A bérleti díj tartalmazza az üzemeltetési költséget is.
A feltüntetett bérleti díjak nettók, NEM tartalmazzák az ÁFÁ-t, + 27 % ÁFA fizetendő!
Bérléshez szükséges 2 illetve kaució + 1 havi bérleti díj.
A tulajdonos a bérlő választás jogát fenntartja és a bérleti szerződést közjegyzői okiratba foglaltatja.
M324110