Kiadó Kereskedelmi és ipari ingatlan
Hirdetéskód: 9285698
GDN Ingatlanhálózat - Ingatlan Budafok
Felújításhoz személyi kölcsönt keres? Kalkuláljon itt! →285.00 m2
ALAPTERÜLET0
SZOBASZÁMnincs megadva
ÉPÍTÉSnincs megadva
FŰTÉS- CSOK igénybe vehető nem
- Tetőtér beépíthető nem
- Klíma nem
- Szigetelt nem
A+++
A++
A+
A
B
C
D
E
F
G
H
I
Az ingatlan leírása
Ipari ingatlan bérbeadó Diósd kiemelt gazdasági övezetében
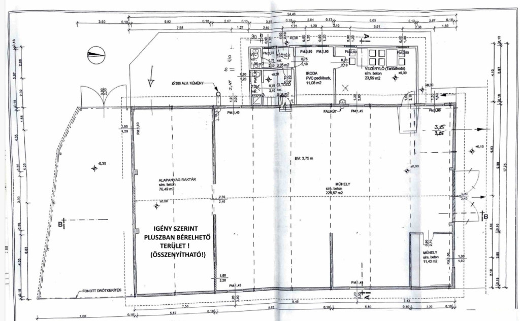
Budapest határán, Diósd egyik legfontosabb ipari‑gazdasági övezetében kínálunk bérbeadásra egy nettó hasznos 285 m², jó műszaki állapotú, önálló ipari/műhely ingatlant.
FIGYELEM: igény szerint az alaprajzon látható ALAPANYAG RAKTÁR ( 76,49 m² ) pluszban bérelhető a területhez, ebben az esetben az össz. alapterület: 361,49 m² lenne. Ez a terület jelenleg leválasztásra került, de kérésre egybenyitható / hasznosítható !
Az épület 2026. márciusától használatba vehető, és alkalmas gyártási, műhely-, logisztikai vagy szolgáltatóipari tevékenységre.
Az ingatlan nagy áramkapacitással (120 A), radiátoros gázfűtéssel, teherbíró ipari aljzattal, saját iroda- és szociális blokkal, valamint őrzött, betonozott udvarral rendelkezik.
A telephely kamionnal is könnyedén megközelíthető, a beállás és rakodás zavartalanul megoldható.
Az épület előtt több autó számára biztosított a parkolás, de igény szerint további szabad, külső terület is bérelhető hozzá.
Az épület napelemrendszerrel felszerelt, amely jelentősen csökkenti az üzemeltetési költségeket.
Főbb műszaki jellemzők:
Acélvázas, téglafalazatú ipari épület
- 120 A ipari áram, külön mérőórákkal
- Teherbíró, betonozott ipari padló
- Radiátoros gázfűtés
- LED-es ipari világítás
- 3,75 méter belmagasság
- Saját irodahelyiségek és szociális blokk (mosdó, öltöző, teakonyha)
- Zárt, őrzött, kamerázott udvar
- Napelemrendszer telepítve
- Kamionnal is könnyen megközelíthető és bejárható
- Különálló épület, teljes egészében saját használatú
Elhelyezkedés és megközelíthetőség: Diósd ipari övezetének központi részén található, kiváló közlekedési kapcsolatokkal.
- Budapest: 10–12 perc
- M0 / M1 / M7 autópályák: 2–4 perc
- Jó tömegközlekedés a környéken
- Biztonságos, fejlődő vállalati környezet
A lokáció ideális olyan vállalkozások számára, amelyeknek fontos a gyors autópálya‑kapcsolat, a könnyű áruszállítás és a főváros közelsége.
Felhasználási lehetőségek:
- Gyártó- és termelőüzem
- Autószerviz, CNC-, lakatos-, faipari vagy fémipari műhely
- Logisztikai raktár + iroda kombináció
- E‑kereskedelmi háttérbázis
- Kisvállalati telephely
- Szolgáltatóipari műhelyek
Bérleti díj: a szerződni kívánt bérleti díj: 8 EUR/m²/hó + rezsi + ÁFA (forintban fizetve). ...TOVÁBBI, TÖBBEZRES INGATLAN KÍNÁLAT: - GDN azonosító: 393124
Budapest határán, Diósd egyik legfontosabb ipari‑gazdasági övezetében kínálunk bérbeadásra egy nettó hasznos 285 m², jó műszaki állapotú, önálló ipari/műhely ingatlant.
FIGYELEM: igény szerint az alaprajzon látható ALAPANYAG RAKTÁR ( 76,49 m² ) pluszban bérelhető a területhez, ebben az esetben az össz. alapterület: 361,49 m² lenne. Ez a terület jelenleg leválasztásra került, de kérésre egybenyitható / hasznosítható !
Az épület 2026. márciusától használatba vehető, és alkalmas gyártási, műhely-, logisztikai vagy szolgáltatóipari tevékenységre.
Az ingatlan nagy áramkapacitással (120 A), radiátoros gázfűtéssel, teherbíró ipari aljzattal, saját iroda- és szociális blokkal, valamint őrzött, betonozott udvarral rendelkezik.
A telephely kamionnal is könnyedén megközelíthető, a beállás és rakodás zavartalanul megoldható.
Az épület előtt több autó számára biztosított a parkolás, de igény szerint további szabad, külső terület is bérelhető hozzá.
Az épület napelemrendszerrel felszerelt, amely jelentősen csökkenti az üzemeltetési költségeket.
Főbb műszaki jellemzők:
Acélvázas, téglafalazatú ipari épület
- 120 A ipari áram, külön mérőórákkal
- Teherbíró, betonozott ipari padló
- Radiátoros gázfűtés
- LED-es ipari világítás
- 3,75 méter belmagasság
- Saját irodahelyiségek és szociális blokk (mosdó, öltöző, teakonyha)
- Zárt, őrzött, kamerázott udvar
- Napelemrendszer telepítve
- Kamionnal is könnyen megközelíthető és bejárható
- Különálló épület, teljes egészében saját használatú
Elhelyezkedés és megközelíthetőség: Diósd ipari övezetének központi részén található, kiváló közlekedési kapcsolatokkal.
- Budapest: 10–12 perc
- M0 / M1 / M7 autópályák: 2–4 perc
- Jó tömegközlekedés a környéken
- Biztonságos, fejlődő vállalati környezet
A lokáció ideális olyan vállalkozások számára, amelyeknek fontos a gyors autópálya‑kapcsolat, a könnyű áruszállítás és a főváros közelsége.
Felhasználási lehetőségek:
- Gyártó- és termelőüzem
- Autószerviz, CNC-, lakatos-, faipari vagy fémipari műhely
- Logisztikai raktár + iroda kombináció
- E‑kereskedelmi háttérbázis
- Kisvállalati telephely
- Szolgáltatóipari műhelyek
Bérleti díj: a szerződni kívánt bérleti díj: 8 EUR/m²/hó + rezsi + ÁFA (forintban fizetve). ...TOVÁBBI, TÖBBEZRES INGATLAN KÍNÁLAT: - GDN azonosító: 393124