Kiadó Kereskedelmi és ipari ingatlan
Hirdetéskód: 9225892
OTP Ingatlanpont Csongrád
133 m2
ALAPTERÜLET3
SZOBASZÁMnincs megadva
ÉPÍTÉSnincs megadva
FŰTÉS- CSOK igénybe vehető nem
- Tetőtér beépíthető nem
- Építés éve 1900
- Klíma nem
- Szigetelt nem
A+++
A++
A+
A
B
C
D
E
F
G
H
I
Az ingatlan leírása
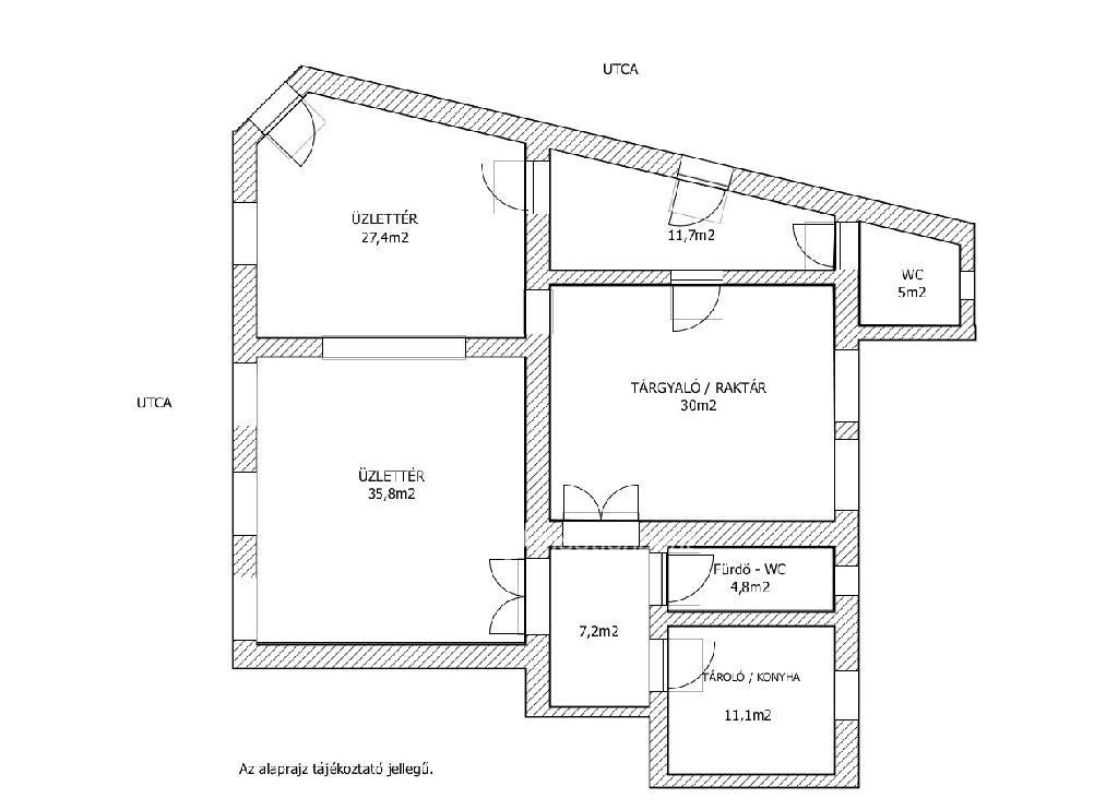
Kiadó Csongrád frekventált, könnyen megközelíthető helyén egy UTCAFRONTI, DUPLA BEJÁRATÚ, 133m2-es, üzlet- vagy irodahelyiség, mely pincehelyiséget is tartalmaz.
A belső tér 2025-ben felújításra került. A fűtést gazdaságos új kondenzációs gázkazán biztosítja, valamint 3 új klíma is beszerelésre került.
A minimális bérleti idő 1 év, de a hosszabb távú szerződések előnyt élveznek. A bérléshez 3 havi kaució szükséges. Elsősorban egyben kiadó, de igény szerint 2 részre tagolható a két külön utcai bejáratnak köszönhetően.
Bővebb információért hívjon bizalommal!
Az OTP Ingatlanpont teljes körű ügyintézéssel áll az eladók és vevők rendelkezésére. A kínálatunkból választott ingatlan finanszírozásához kedvezményes hitelkonstrukciót biztosítunk. Az OTP Banknál elérhető Babaváró, falusi CSOK, CSOK Plusz hitel és egyéb kölcsönök intézését díjmentesen vállaljuk. Az adásvételi szerződés megkötéséhez igény szerint ügyvédet biztosítunk. Irodáink Szentes, Petőfi utca 12. a buszmegálló felől, és Csongrád, Fő utca 54. szám alatt várjuk a személyes érdeklődőket. Válasszuk ki együtt az Önnek legmegfelelőbb ajánlatot banki sorban állás nélkül!
A belső tér 2025-ben felújításra került. A fűtést gazdaságos új kondenzációs gázkazán biztosítja, valamint 3 új klíma is beszerelésre került.
A minimális bérleti idő 1 év, de a hosszabb távú szerződések előnyt élveznek. A bérléshez 3 havi kaució szükséges. Elsősorban egyben kiadó, de igény szerint 2 részre tagolható a két külön utcai bejáratnak köszönhetően.
Bővebb információért hívjon bizalommal!
Az OTP Ingatlanpont teljes körű ügyintézéssel áll az eladók és vevők rendelkezésére. A kínálatunkból választott ingatlan finanszírozásához kedvezményes hitelkonstrukciót biztosítunk. Az OTP Banknál elérhető Babaváró, falusi CSOK, CSOK Plusz hitel és egyéb kölcsönök intézését díjmentesen vállaljuk. Az adásvételi szerződés megkötéséhez igény szerint ügyvédet biztosítunk. Irodáink Szentes, Petőfi utca 12. a buszmegálló felől, és Csongrád, Fő utca 54. szám alatt várjuk a személyes érdeklődőket. Válasszuk ki együtt az Önnek legmegfelelőbb ajánlatot banki sorban állás nélkül!