Kiadó Kereskedelmi és ipari ingatlan
Hirdetéskód: 8426074
Gold House Ingatlan- és Hitelcentrum
75.00 m2
ALAPTERÜLET3
SZOBASZÁMnincs megadva
ÉPÍTÉSEgyéb fűtés
FŰTÉS- CSOK igénybe vehető nem
- Belső szintek 4
- Tetőtér beépíthető nem
- Fűtés Egyéb fűtés
- Klíma nem
- Szigetelt nem
A+++
A++
A+
A
B
C
D
E
F
G
H
I
Az ingatlan leírása
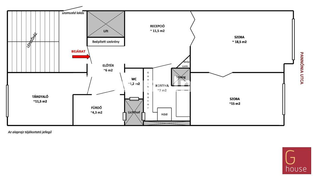
Stílusos, felújított iroda–lakás kiadó Újlipótváros szívében!
Újlipótváros egyik legkedveltebb utcájában, rendezett, liftes társasházban kínálunk bérbe egy felújított, II. emeleti, világos ingatlant, amely irodának és lakásnak egyaránt ideális.
Az ingatlan mind utcai, mind udvari nézetű, így a terek egyszerre világosak és csendesek. Két klíma gondoskodik a komfortos hőmérsékletről az év minden napján.
A házban jelenleg a teljes elektromos hálózat korszerűsítése zajlik, ami a jövőbeni bérlő számára modern, biztonságos működést garantál.
A belső terek ízlésesen felújítottak, jól tagoltak, könnyen alakíthatók több funkcióra is — irodai munkavégzésre, rendelőnek, tanácsadói tevékenységre vagy akár elegáns otthonnak is kiváló választás.
Bútorozatlanul kiadó, de igény esetén a berendezés megbeszélés tárgyát képezheti.
Rezsije mérőórák alapján fizetendő, átlátható, takarékos fenntartás mellett.
Közös költség: 25.000 Ft/hó
KAT 5-ös rendszer kiépítve, azonnal használható internetkapcsolattal.
Bérleti díj: 340.000 Ft/hó
Kaució: 3 hónap
Közjegyzői nyilatkozat szükséges
A környék infrastruktúrája kiváló – karnyújtásnyira található a Duna-part, a Pozsonyi út kávézói, éttermei, valamint a Westend City Center és több tömegközlekedési csomópont (M3, 75-ös, 76-os troli, 15-ös busz).
Ha egy igényes, könnyen megközelíthető, presztízsértékű helyen szeretne dolgozni vagy élni, ne habozzon – hívjon, amíg elérhető, örömmel megmutatom!
Újlipótváros egyik legkedveltebb utcájában, rendezett, liftes társasházban kínálunk bérbe egy felújított, II. emeleti, világos ingatlant, amely irodának és lakásnak egyaránt ideális.
Az ingatlan mind utcai, mind udvari nézetű, így a terek egyszerre világosak és csendesek. Két klíma gondoskodik a komfortos hőmérsékletről az év minden napján.
A házban jelenleg a teljes elektromos hálózat korszerűsítése zajlik, ami a jövőbeni bérlő számára modern, biztonságos működést garantál.
A belső terek ízlésesen felújítottak, jól tagoltak, könnyen alakíthatók több funkcióra is — irodai munkavégzésre, rendelőnek, tanácsadói tevékenységre vagy akár elegáns otthonnak is kiváló választás.
Bútorozatlanul kiadó, de igény esetén a berendezés megbeszélés tárgyát képezheti.
Rezsije mérőórák alapján fizetendő, átlátható, takarékos fenntartás mellett.
Közös költség: 25.000 Ft/hó
KAT 5-ös rendszer kiépítve, azonnal használható internetkapcsolattal.
Bérleti díj: 340.000 Ft/hó
Kaució: 3 hónap
Közjegyzői nyilatkozat szükséges
A környék infrastruktúrája kiváló – karnyújtásnyira található a Duna-part, a Pozsonyi út kávézói, éttermei, valamint a Westend City Center és több tömegközlekedési csomópont (M3, 75-ös, 76-os troli, 15-ös busz).
Ha egy igényes, könnyen megközelíthető, presztízsértékű helyen szeretne dolgozni vagy élni, ne habozzon – hívjon, amíg elérhető, örömmel megmutatom!