Kiadó Kereskedelmi és ipari ingatlan
Hirdetéskód: 9184528
Gold House Ingatlan- és Hitelcentrum
Felújításhoz személyi kölcsönt keres? Kalkuláljon itt! →109.00 m2
ALAPTERÜLET3
SZOBASZÁMnincs megadva
ÉPÍTÉSGáz (cirkó)
FŰTÉS- CSOK igénybe vehető nem
- Tetőtér beépíthető nem
- Fűtés Gáz (cirkó)
- Klíma nem
- Szigetelt nem
A+++
A++
A+
A
B
C
D
E
F
G
H
I
Az ingatlan leírása
Kiadó iroda a Belváros szívében!
Budapest V. kerületének egyik legkeresettebb részén, frekventált, mégis csendes utcában, kiadó egy igényesen karbantartott, tágas és világos irodahelyiség egy lifttel rendelkező, rendezett polgári társasház 3. emeletén.
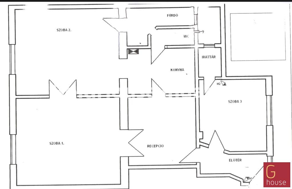
Az iroda három külön nyíló, világos szobából áll, amelyek igény szerint használhatók tárgyalóként, vezetői irodaként vagy közös munkatérként is. A tágas előtér kiválóan alkalmas recepció vagy váró kialakítására, így az ingatlan praktikus és reprezentatív elrendezésű. A helyiségek nagy belmagasságúak, világosak, klasszikus polgári hangulatot árasztanak, ami elegáns környezetet biztosít a mindennapi munkához.
Az iroda a harmadik emeleten található, a lift kényelmes megközelítést tesz lehetővé. Két különálló WC szolgálja a mindennapi használat kényelmét.
Elhelyezkedés:
A környék kiválóan megközelíthető – a közelben található több metróvonal (M2, M3), villamos és buszmegálló, valamint éttermek, kávézók, bankok és üzletek.
A belvárosi lokáció előnye, hogy minden fontos szolgáltatás és intézmény pár perc sétára elérhető, ugyanakkor az utca forgalomtól védett, nyugodt környezetet biztosít a munkához.
Ajánljuk:
- Ügyvédi irodáknak
- Tanácsadó és könyvelő cégeknek
- Ingatlanirodának
- Rendelőnek, magánpraxisnak
- Start-up vagy kisebb vállalkozások számára, akik reprezentatív belvárosi címet keresnek
Budapest V. kerületének egyik legkeresettebb részén, frekventált, mégis csendes utcában, kiadó egy igényesen karbantartott, tágas és világos irodahelyiség egy lifttel rendelkező, rendezett polgári társasház 3. emeletén.
Az iroda három külön nyíló, világos szobából áll, amelyek igény szerint használhatók tárgyalóként, vezetői irodaként vagy közös munkatérként is. A tágas előtér kiválóan alkalmas recepció vagy váró kialakítására, így az ingatlan praktikus és reprezentatív elrendezésű. A helyiségek nagy belmagasságúak, világosak, klasszikus polgári hangulatot árasztanak, ami elegáns környezetet biztosít a mindennapi munkához.
Az iroda a harmadik emeleten található, a lift kényelmes megközelítést tesz lehetővé. Két különálló WC szolgálja a mindennapi használat kényelmét.
Elhelyezkedés:
A környék kiválóan megközelíthető – a közelben található több metróvonal (M2, M3), villamos és buszmegálló, valamint éttermek, kávézók, bankok és üzletek.
A belvárosi lokáció előnye, hogy minden fontos szolgáltatás és intézmény pár perc sétára elérhető, ugyanakkor az utca forgalomtól védett, nyugodt környezetet biztosít a munkához.
Ajánljuk:
- Ügyvédi irodáknak
- Tanácsadó és könyvelő cégeknek
- Ingatlanirodának
- Rendelőnek, magánpraxisnak
- Start-up vagy kisebb vállalkozások számára, akik reprezentatív belvárosi címet keresnek