Kiadó Kereskedelmi és ipari ingatlan
Hirdetéskód: 9242373
Gold House Ingatlan- és Hitelcentrum
Felújításhoz személyi kölcsönt keres? Kalkuláljon itt! →276.00 m2
ALAPTERÜLET0
SZOBASZÁMnincs megadva
ÉPÍTÉSHázközponti fűtés egyedi méréssel
FŰTÉS- CSOK igénybe vehető nem
- Belső szintek 4
- Tetőtér beépíthető nem
- Fűtés Házközponti fűtés egyedi méréssel
- Klíma nem
- Szigetelt nem
A+++
A++
A+
A
B
C
D
E
F
G
H
I
Az ingatlan leírása
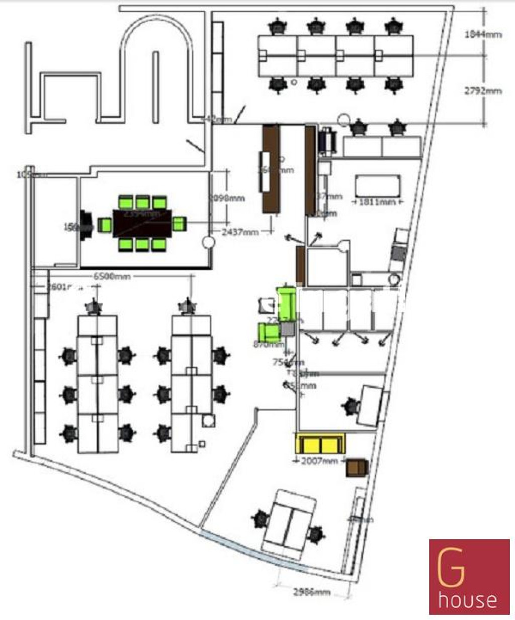
A Rózsadomb Villaparkban kiadó egy kertkapcsolatos, 25–30 fő számára ideális, prémium kategóriás iroda, amely jelenleg is kreatív ügynökségként működik. A 2016-ban épült, AA+ minősítésű ingatlan minden részletében a loft hangulatú design-koncepciót tükrözi.
Az iroda kialakítása korábban az „Év Irodája” versenyen 2. helyezést ért el. A nagy, közös munkatérből két intimebb iroda, egy tárgyaló, valamint egy 8 fő befogadására alkalmas külön irodarész került leválasztásra.
A bérlemény részei:
felszerelt konyha
4 WC és mosdó
külön, légkondicionált szerverszoba
Az iroda bútorozottan is bérelhető.
A teljes területen mennyezetfűtés és mennyezethűtés működik, amely a ház központi rendszeréhez csatlakozik. A folyamatos friss levegőt HELIOS hővisszanyerős szellőztető rendszer biztosítja.
Jelenleg optikai kábeles, bérelt vonalas internetkapcsolat áll rendelkezésre.
A bejárat a Bimbó útról nyílik, a mélygarázsban 2 parkolóhely bérelhető, 45.000 Ft / beálló / hó díjon.
Bérleti díj: 14,50 EUR / m² / hó
Üzemeltetési díj: nincs
Rezsi: egyéni fogyasztás alapján
Számlázás: ÁFA-mentes
Modern, inspiráló környezetet kereső cégek számára ideális választás, ahol a design, a funkcionalitás és a technológia harmonikusan találkozik.
Az iroda kialakítása korábban az „Év Irodája” versenyen 2. helyezést ért el. A nagy, közös munkatérből két intimebb iroda, egy tárgyaló, valamint egy 8 fő befogadására alkalmas külön irodarész került leválasztásra.
A bérlemény részei:
felszerelt konyha
4 WC és mosdó
külön, légkondicionált szerverszoba
Az iroda bútorozottan is bérelhető.
A teljes területen mennyezetfűtés és mennyezethűtés működik, amely a ház központi rendszeréhez csatlakozik. A folyamatos friss levegőt HELIOS hővisszanyerős szellőztető rendszer biztosítja.
Jelenleg optikai kábeles, bérelt vonalas internetkapcsolat áll rendelkezésre.
A bejárat a Bimbó útról nyílik, a mélygarázsban 2 parkolóhely bérelhető, 45.000 Ft / beálló / hó díjon.
Bérleti díj: 14,50 EUR / m² / hó
Üzemeltetési díj: nincs
Rezsi: egyéni fogyasztás alapján
Számlázás: ÁFA-mentes
Modern, inspiráló környezetet kereső cégek számára ideális választás, ahol a design, a funkcionalitás és a technológia harmonikusan találkozik.