Kiadó Iroda, irodaház
Hirdetéskód: 9175551

Született Fészekrakó Ingatlaniroda

Felújításhoz személyi kölcsönt keres? Kalkuláljon itt! →
20.00 m2
ALAPTERÜLET
0
SZOBASZÁM
Tégla
ÉPÍTÉS
Hőszivattyú
FŰTÉS
  • Belső szintek 1
  • Parkolási lehetőség Udvari beálló
  • Építés éve 1950
  • Fűtés Hőszivattyú
  • Építőanyag Tégla
  • Klíma igen
Energetikai besorolás: Nincs meghatározva
A+++
A++
A+
A
B
C
D
E
F
G
H
I

Az MBH Bank személyi kölcsön ajánlata

Fizetett hirdetés
1 millió Ft
6 évre
20 585 Ft/hó
THM: 14.5%
Részletek →
2 millió Ft
6 évre
41 169 Ft/hó
THM: 14.5%
Részletek →
3 millió Ft
6 évre
61 754 Ft/hó
THM: 14.5%
Részletek →

A tájékoztatás nem teljes körű és nem minősül ajánlattételnek.

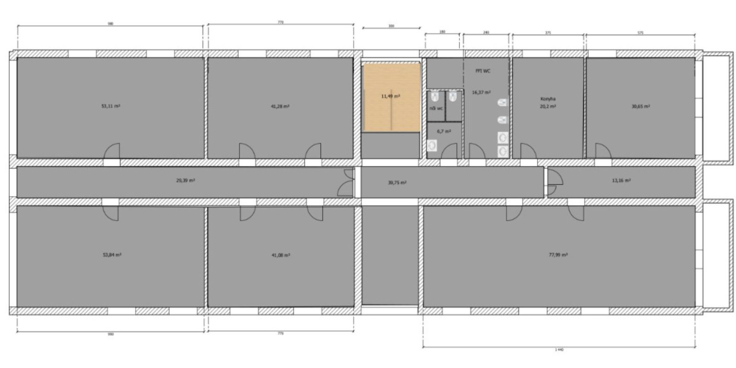
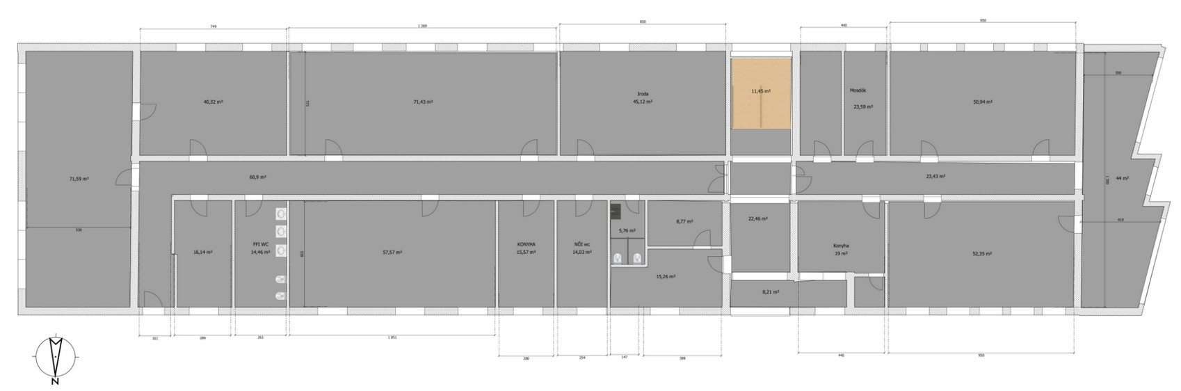
Az ingatlan leírása

Kiadó irodák Szombathely exkluzív irodaházában!
Dolgozzon olyan környezetben, ahol a kényelem, a biztonság és a modern technológia egyszerre van jelen! Frissen felújított, minden igényt kielégítő irodaházban, professzionális munkakörnyezet várja új bérlőit. Az ingatlan földszintjén és első emeletén elhelyezkedő irodák a legmagasabb elvárásoknak is megfelelnek. Igényes belső kialakítás, korszerű műszaki megoldások és kényelmes közösségi terek biztosítják a tökéletes munkakörnyezetet. Az épület minden részlete a funkcionalitást és az esztétikumot ötvözi. A reprezentatív közös helyiségek, az exkluzívan berendezett konyhák és étkezők, valamint a szintenként kialakított mosdók hozzájárulnak ahhoz, hogy a bérlők és munkatársaik a mindennapok során kényelmesen és inspiráló környezetben dolgozhassanak.
Miért válassza ezt az irodaházat?
Exkluzív kialakítás és modern design:
Elegáns, minőségi anyaghasználat és a praktikus elrendezés együttesen teszik az irodaházat egyedülállóvá a környéken.
Kiváló infrastruktúra:
Az épület elhelyezkedése ideális, könnyen megközelíthető autóval és tömegközlekedéssel egyaránt, miközben nyugodt, rendezett környezetet kínál a mindennapi munkavégzéshez. Az épület minden szintjén külön mosdó, teljesen felszerelt közös konyha-étkező.
Biztonság és hozzáférés:
Beléptető rendszer Proximity kártyával, riasztórendszer, kültéri kamera hálózat. Gyors és megbízható internet, szélessávú kapcsolat, akár irodánként külön kiépítve.
Költséghatékony üzemeltetés:
A fűtésről-hűtésről hőszivattyú gondoskodik irodánként önálló mérővel. A közös helyiségekben történő fogyasztás m² szerinti elszámolással történik. A felszerelésre került napelemnek köszönhetően szinte minimális költségre lehet számítani.
Parkolás gond nélkül:
Zárt parkoló telefonos nyitással, számozott parkolóhelyekkel, szerződés szerinti használattal. Az irodák már 15 m²-től kezdődően, akár 72 m²-ig leköthetőek, de van lehetőség több helyiség egybenyitására is. Legyen kisvállalkozó vagy nagyobb cég, itt biztosan megtalálhatja a számára ideális méretet. Október 1-től birtokba vehető, bérleti díj havonta 10 euro +áfa / m²+rezsi, a kaució 2 havi bérleti díj.

Térkép

Ingatlan adásvétel ügyvédi díja
150 000 Ft
a hirdetésben szereplő ár alapján
  • A vételár 0,45%-a
  • Szerződéscsomag teljeskörű képviselettel
  • Ingyenes tulajdoni lap ellenőrzés
  • Az ÁFA-t már tartalmazza
Érdekel az ajánlat →
A tájékoztatás nem teljes körű és nem minősül ajánlattételnek. Minimum díj: 150 000 Ft, maximum díj: 600 000 Ft. A díj kizárólag lakóingatlan adásvételére vonatkozik.

A hirdető elérhetősége

Mészáros Dóra e.v.

Várkonyné Csácsics Andrea
+36 20 979