Kiadó Ház- házrész
Hirdetéskód: 8843679

-

Felújításhoz személyi kölcsönt keres? Kalkuláljon itt! →
105.00 m2
ALAPTERÜLET
2
SZOBASZÁM
Tégla
ÉPÍTÉS
Gáz (cirkó)
FŰTÉS
  • Kilátás Udvari
  • Tájolás Dél
  • Ingatlan komfort Összkomfortos
  • Parkolási lehetőség Udvari beálló
  • Építés éve 2007
  • Fűtés Gáz (cirkó)
  • Építőanyag Tégla
  • Szigetelt igen
  • Bútorozott igen
Energetikai besorolás: Nincs meghatározva
A+++
A++
A+
A
B
C
D
E
F
G
H
I

Az MBH Bank személyi kölcsön ajánlata

Fizetett hirdetés
1 millió Ft
6 évre
20 585 Ft/hó
THM: 14.5%
Részletek →
2 millió Ft
6 évre
41 169 Ft/hó
THM: 14.5%
Részletek →
3 millió Ft
6 évre
61 754 Ft/hó
THM: 14.5%
Részletek →

A tájékoztatás nem teljes körű és nem minősül ajánlattételnek.

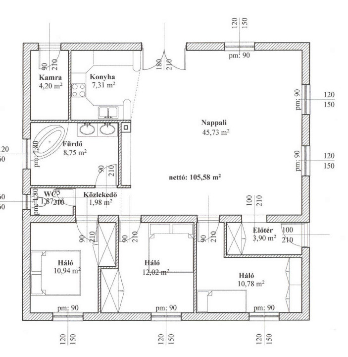
Az ingatlan leírása

Kiadó Tökölön 105 nm-es családi ház.


A házban 3 háló, nappali, konyha, fürdő, külön wc, előtér, kamra található.


A 400 nm-es önálló kertben árnyékos terasz, füves rész és két kocsi beállására alkalmas kavicsos beálló van.


Szobákban radiátoros fűtés, nappaliban radiátoros és padlófűtés van.


Közelben iskola, óvoda, üzletek, buszmegálló is elérhető néhány perc sétával.


Két havi kaució és aktuális bérleti díj megfizetésével 2026. január közepén költözhető.


Bérleti díj: 380 000 Ft.

Térkép

Ingatlan adásvétel ügyvédi díja
150 000 Ft
a hirdetésben szereplő ár alapján
  • A vételár 0,45%-a
  • Szerződéscsomag teljeskörű képviselettel
  • Ingyenes tulajdoni lap ellenőrzés
  • Az ÁFA-t már tartalmazza
Érdekel az ajánlat →
A tájékoztatás nem teljes körű és nem minősül ajánlattételnek. Minimum díj: 150 000 Ft, maximum díj: 600 000 Ft. A díj kizárólag lakóingatlan adásvételére vonatkozik.

A hirdető elérhetősége

Póka László

+36 30 931