Kiadó Ház- házrész
Hirdetéskód: 9283954
Openhouse Miskolc Szentpáli utcai Ingatlaniroda
Felújításhoz személyi kölcsönt keres? Kalkuláljon itt! →115.00 m2
ALAPTERÜLET3
SZOBASZÁMnincs megadva
ÉPÍTÉSnincs megadva
FŰTÉS- CSOK igénybe vehető nem
- Tetőtér beépíthető nem
- Klíma nem
- Szigetelt nem
A+++
A++
A+
A
B
C
D
E
F
G
H
I
Az ingatlan leírása
A kiadó miskolci családi ház jellemzői:
- kiadó családi ház Miskolcon, a Meggyesalja utcában
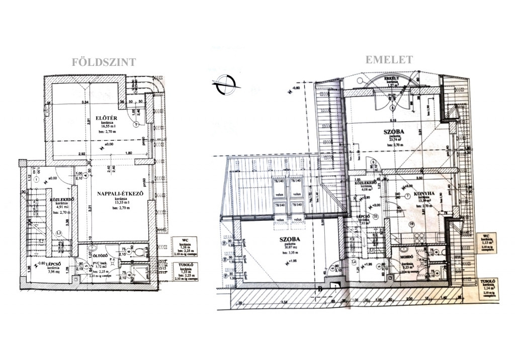
- összesen 2 szoba, plusz a földszinti előszoba+nappali kombó áll rendelkezésre, összesen kb 110 m2-en
- a ház teljesen BÚTOROZATLAN állapotban kiadó, a fotókon még a kiköltöző bérlő bútorai láthatók
- a kiadó ingatlanhoz NEM TARTOZIK UDVAR RÉSZ, vagy GARÁZS, a ház előtt közvetlenül viszont ingyenes a parkolás
- az emeleti szobák laminált parkettásak, az összes többi helyiség járólappal burkolt
- tégla falazatú ház, cserépfedésű, kifogástalan állapotú tetővel, festett glettelt belső falakkal
- fa biztonsági bejárati ajtó és szigetelt fa nyílászárók kerültek beépítésre
- a ház melegét Junkers cirko gázkazán biztosítja radiátorokon keresztül, és a melegvizet is ez állítja elő
- az ingatlan klimatizált, mindkét szobában található klímaberendezés
- mindkét szinten található zuhanyzó és toalett is
- a ház elhelyezkedését, kialakítását figyelembe véve kifejezetten alkalmas lehet telephelynek, irodának és lakóháznak egyaránt
- azonnal költözhető, bérelhető, igény szerint számlaképes is
- az ideális bérlő hosszútávú, legalább 1 éves szerződést köt, 2 havi kaució és közjegyzői nyilatkozat megtétele mellett
- a bérleti díjon felül a rezsi költsége a bérlőt terheli, melyek számláit a bérbeadó kapja, és fizeti be, melyet ezután mutat be a bérlőnek, de igény szerint átírhatóak az órák is
- a közlekedés kiváló, autóbusz megálló, és villamos is elérhető pár percnyi sétával, de a sétálóutca is alig 5 perc gyalog
Megtekinthető rugalmasan, hívjon bármikor bizalommal!
Bérleti díj: 220000 Ft/hó
- kiadó családi ház Miskolcon, a Meggyesalja utcában
- összesen 2 szoba, plusz a földszinti előszoba+nappali kombó áll rendelkezésre, összesen kb 110 m2-en
- a ház teljesen BÚTOROZATLAN állapotban kiadó, a fotókon még a kiköltöző bérlő bútorai láthatók
- a kiadó ingatlanhoz NEM TARTOZIK UDVAR RÉSZ, vagy GARÁZS, a ház előtt közvetlenül viszont ingyenes a parkolás
- az emeleti szobák laminált parkettásak, az összes többi helyiség járólappal burkolt
- tégla falazatú ház, cserépfedésű, kifogástalan állapotú tetővel, festett glettelt belső falakkal
- fa biztonsági bejárati ajtó és szigetelt fa nyílászárók kerültek beépítésre
- a ház melegét Junkers cirko gázkazán biztosítja radiátorokon keresztül, és a melegvizet is ez állítja elő
- az ingatlan klimatizált, mindkét szobában található klímaberendezés
- mindkét szinten található zuhanyzó és toalett is
- a ház elhelyezkedését, kialakítását figyelembe véve kifejezetten alkalmas lehet telephelynek, irodának és lakóháznak egyaránt
- azonnal költözhető, bérelhető, igény szerint számlaképes is
- az ideális bérlő hosszútávú, legalább 1 éves szerződést köt, 2 havi kaució és közjegyzői nyilatkozat megtétele mellett
- a bérleti díjon felül a rezsi költsége a bérlőt terheli, melyek számláit a bérbeadó kapja, és fizeti be, melyet ezután mutat be a bérlőnek, de igény szerint átírhatóak az órák is
- a közlekedés kiváló, autóbusz megálló, és villamos is elérhető pár percnyi sétával, de a sétálóutca is alig 5 perc gyalog
Megtekinthető rugalmasan, hívjon bármikor bizalommal!
Bérleti díj: 220000 Ft/hó