Kiadó Ház- házrész
Hirdetéskód: 9292557

Alberlet.hu Ingatlan Kft.

Felújításhoz személyi kölcsönt keres? Kalkuláljon itt! →
380.00 m2
ALAPTERÜLET
7
SZOBASZÁM
nincs megadva
ÉPÍTÉS
Gáz (cirkó)
FŰTÉS
  • CSOK igénybe vehető nem
  • Belső szintek 3
  • Tetőtér beépíthető nem
  • Fűtés Gáz (cirkó)
  • Klíma nem
  • Szigetelt nem

Energetikai besorolás: B

A+++
A++
A+
A
B
C
D
E
F
G
H
I

Az MBH Bank személyi kölcsön ajánlata

Fizetett hirdetés
1 millió Ft
6 évre
20 585 Ft/hó
THM: 14.5%
Részletek →
2 millió Ft
6 évre
41 169 Ft/hó
THM: 14.5%
Részletek →
3 millió Ft
6 évre
61 754 Ft/hó
THM: 14.5%
Részletek →

A tájékoztatás nem teljes körű és nem minősül ajánlattételnek.

Az ingatlan leírása

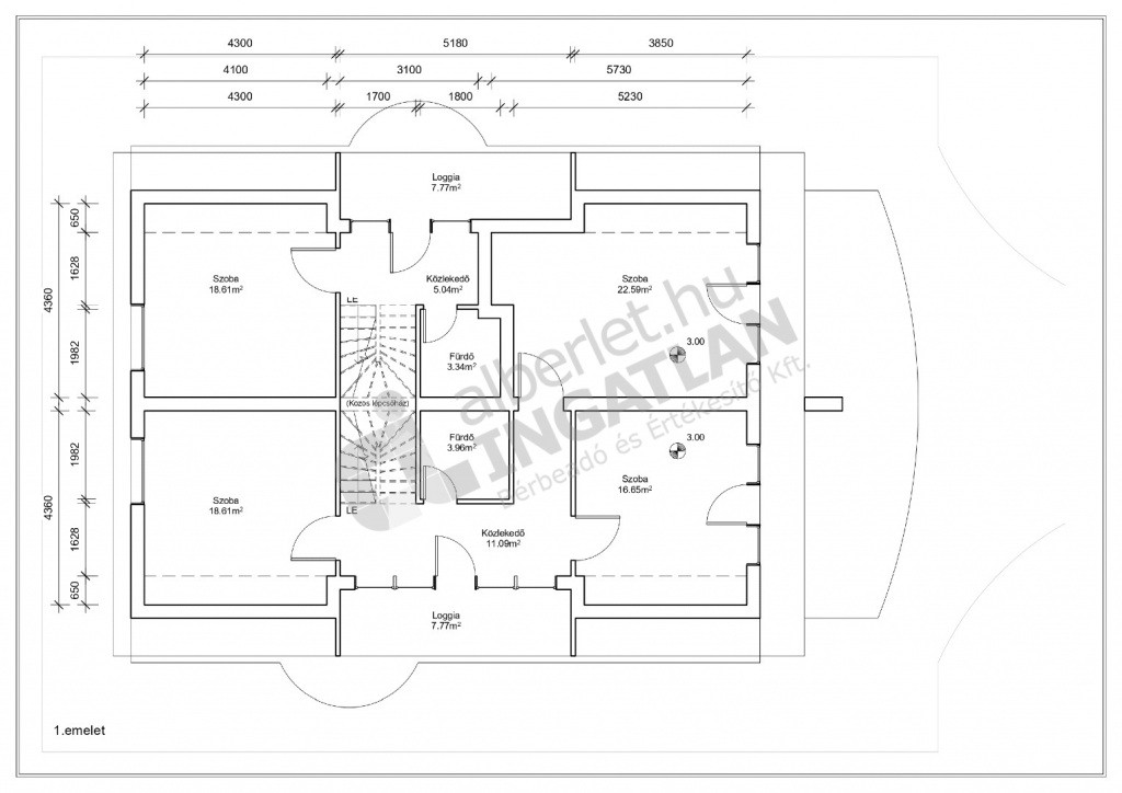
Éden utcában kiadó egy összesen 380m2-es, két különálló lakásként is használható, felújított, panorámás kilátással rendelkező családi ház.

Öt hálószoba plusz nappali, nagy konyha-étkező, három fürdő, 5 wc, két konyha, négy terasz, wellness helyiség.

A kisebb lakás 130m2, két hálószobás, a nagyobb 200m2-es, három hálószobás.

Parkolás:
Két méretes, különválasztható garázs. A kertben több autó is meg tud állni, ezenkívül ingyenes az utcai parkolás.

A garázsok, mosókonyha, wellness helyiség és kazánház található a földszinten.

Minden szoba klimatizált, a lakás részben bútorozott, további bútorok biztosíthatóak.

Az épület hőszigetelt, műanyag ablakok.
Gépesített konyha, motorizált árnyékolók, kondenzációs kazán, automata öntözőrendszer.
Méretéhez képest kifejezetten alacsony rezsi, mindenestül kb 85.000 Ft.

Rendezett díszkert, kerti zuhannyal, fedett nyári konyhával, sütőgetővel, kemencével.

További információk telefonon.

Térkép

Ingatlan adásvétel ügyvédi díja
150 000 Ft
a hirdetésben szereplő ár alapján
  • A vételár 0,45%-a
  • Szerződéscsomag teljeskörű képviselettel
  • Ingyenes tulajdoni lap ellenőrzés
  • Az ÁFA-t már tartalmazza
Érdekel az ajánlat →
A tájékoztatás nem teljes körű és nem minősül ajánlattételnek. Minimum díj: 150 000 Ft, maximum díj: 600 000 Ft. A díj kizárólag lakóingatlan adásvételére vonatkozik.

A hirdető elérhetősége

Alberlet.hu Ingatlan Kft.

Miró András
+36 70 984