Eladó Üdülő, hétvégi ház
Hirdetéskód: 9268216
Balatonfűzfő Munkás tér 3 - OTP Ingatlanpont Iroda
Felújításhoz személyi kölcsönt keres? Kalkuláljon itt! →218.00 m2
ALAPTERÜLET6
SZOBASZÁMnincs megadva
ÉPÍTÉSFan coil
FŰTÉS- CSOK igénybe vehető nem
- Belső szintek 3
- Tetőtér beépíthető nem
- Építés éve 2019
- Fűtés Fan coil
- Klíma nem
- Szigetelt nem
A+++
A++
A+
A
B
C
D
E
F
G
H
I
Az ingatlan leírása
Exkluzív üdülőövezeti otthon Tihanyban, kompromisszummentes minőségben
Tihany egyik legkülönlegesebb, presztízsértékű részén, a Gödrös üdülőövezetben kínálunk megvételre egy valóban egyedi, körpanorámás luxusingatlant. Az otthon egyszerre nyújt mediterrán életérzést, teljes privát szférát és lenyűgöző kilátást a Balatonra, a Külső-tóra és a tihanyi dombokra.
Az ingatlan egy sziklás domboldalon helyezkedik el, ahol az építészeti koncepció tökéletes harmóniában áll a természeti adottságokkal. A természetes anyaghasználat, a földszínek és az átgondolt térkapcsolatok egységes, magas színvonalú életteret teremtenek. A ház kialakítása nemcsak esztétikai, hanem funkcionális szempontból is átgondolt: minden szint önálló hangulattal és kiemelt komforttal rendelkezik.
Az ingatlan részletes bemutatása szintenként
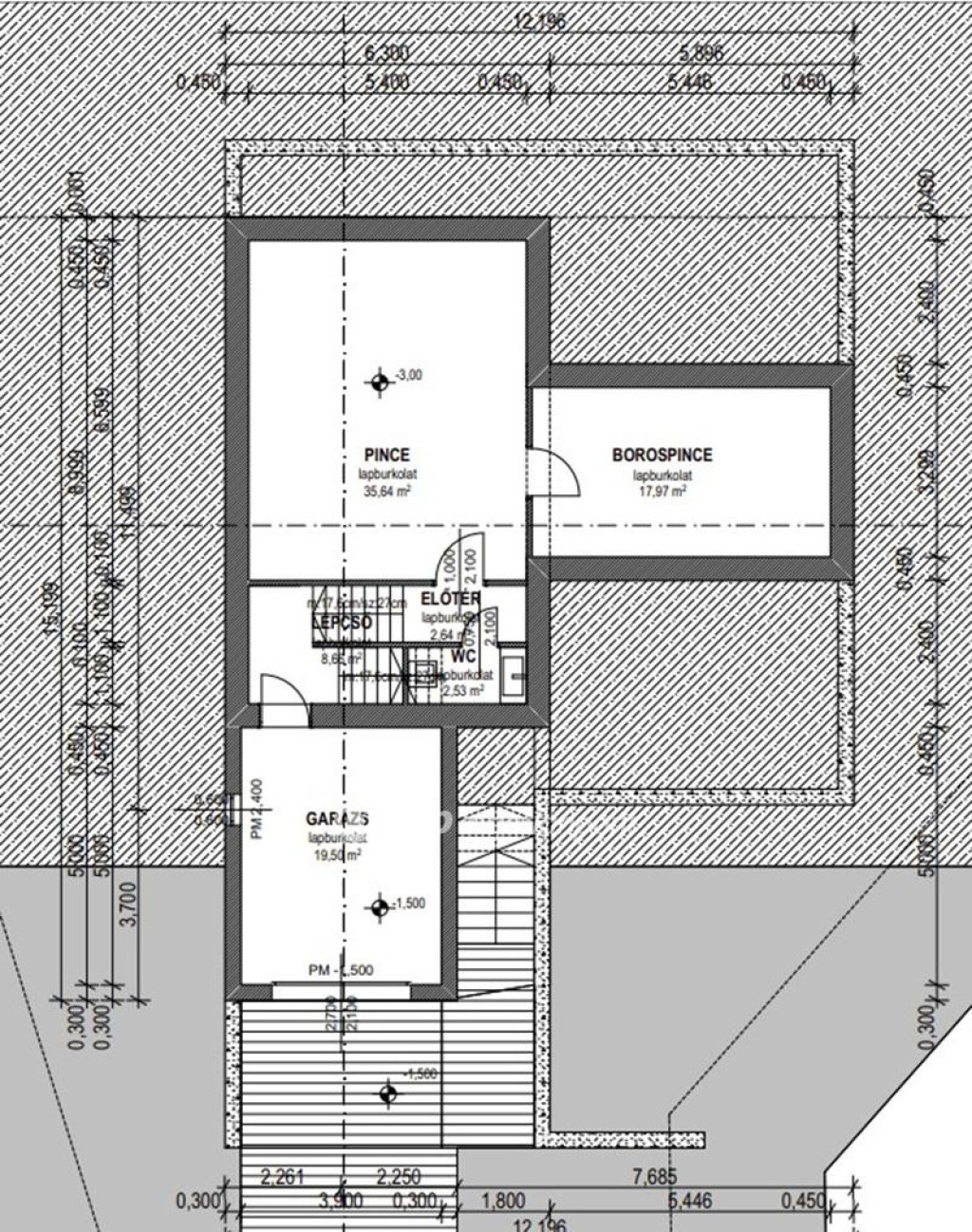
Pince szint
A pince szint kifejezetten sokoldalúan hasznosítható, természetes hűvös klímájának köszönhetően nyáron a ház egyik legkellemesebb része.
-19,5 m2-es szoba saját fürdőszobával
-18 m2-es, hangulatos borospince
-36 m2-es pincehelyiség, amely kiválóan alkalmas fitness teremnek, wellness térnek vagy hobbihelyiségnek
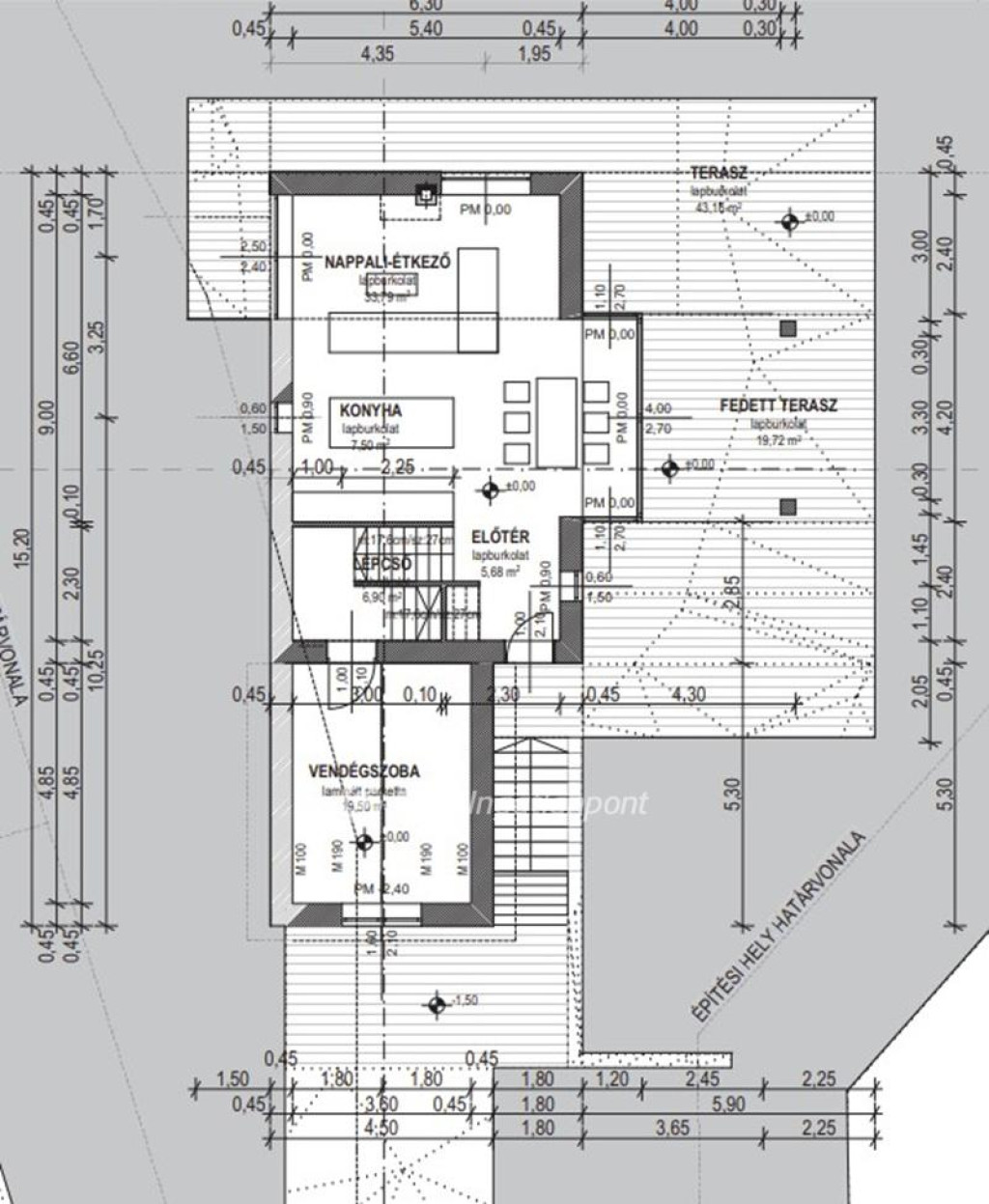
Földszint
A földszint a mindennapi élet központja, közvetlen kert- és teraszkapcsolatokkal.
-19,5 m2-es hálószoba saját fürdőszobával és WC-vel
-5,68 m2-es előtér
-7,5 m2-es konyha
-34 m2-es, világos nappali
-20 m2-es fedett, beépített terasz
-43 m2-es burkolt terasz, panorámás pihenőtérként kialakítva
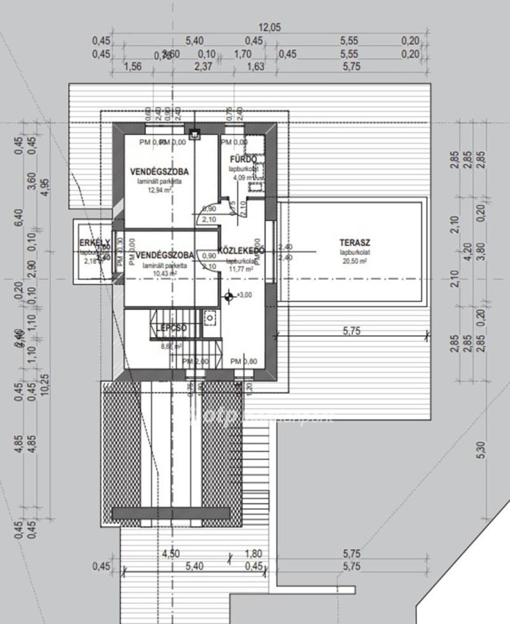
Tetőtér
A tetőtér intimebb lakószint, lenyűgöző kilátással a környező tájra.
-11 m2-es hálószoba
-13 m2-es hálószoba
-4 m2-es fürdőszoba
-12 m2-es közlekedő
-20 m2-es panorámás terasz, ahonnan a Balaton és a tihanyi táj különleges látványa tárul fel
Főbb műszaki tartalom és extrák
-Összesen kb. 218 m2 lakótér
-Több nagyméretű, panorámás terasz
-Parkosított kert automata öntözőrendszerrel
-Korszerű hőszivattyús rendszer, padlófűtés és klíma
-Háromrétegű üvegezésű fa nyílászárók
-Privát szauna és teraszi jakuzzi
-Egész évben használható, prémium komfortszint
Lokáció és környezet
Tihany Gödrös üdülőövezete a félsziget egyik legkeresettebb, limitált kínálatú elhelyezkedése. A Balaton-part körülbelül 500 méterre található, így a vízpart közelsége, a természet és a nyugalom a mindennapok szerves részévé válik. A környék presztízse és a szigorú beépítési szabályozás hosszú távon is értékálló választást jelent.
Ár és vásárlási konstrukció
Az ingatlan bruttó 499 millió Ft vételáron érhető el, amely 27% ÁFA-t tartalmaz.
A nettó vételár: 393 millió Ft.
Céges vásárlás esetén a jogszabályi feltételek teljesülése mellett az ÁFA visszaigényelhető, így az ingatlan kifejezetten kedvező konstrukciót kínál befektetési, üzleti vagy hosszú távú vagyonkezelési célokra is.
Kinek ideális ez az ingatlan?
Ideális választás azok számára, akik nem csupán egy házat keresnek, hanem egy valódi életstílust. Tökéletes prémium nyaralónak, reprezentatív magánrezidenciának, valamint céges, befektetési célú hasznosításra is, ahol a lokáció, a panoráma és az ÁFA-tartalom egyaránt értéket képvisel.
Az ingatlan az OTP Ingatlanpont irodai kínálatában érhető el, OTP bankcsoporti háttérrel, amely biztonságot, átlátható ügyintézést és szakmai támogatást nyújt a teljes adásvételi folyamat során.
Amennyiben egy igazán különleges, körpanorámás tihanyi luxusingatlant keres, várom megkeresését bizalommal a részletekért és a személyes megtekintés egyeztetéséhez.
Tihany egyik legkülönlegesebb, presztízsértékű részén, a Gödrös üdülőövezetben kínálunk megvételre egy valóban egyedi, körpanorámás luxusingatlant. Az otthon egyszerre nyújt mediterrán életérzést, teljes privát szférát és lenyűgöző kilátást a Balatonra, a Külső-tóra és a tihanyi dombokra.
Az ingatlan egy sziklás domboldalon helyezkedik el, ahol az építészeti koncepció tökéletes harmóniában áll a természeti adottságokkal. A természetes anyaghasználat, a földszínek és az átgondolt térkapcsolatok egységes, magas színvonalú életteret teremtenek. A ház kialakítása nemcsak esztétikai, hanem funkcionális szempontból is átgondolt: minden szint önálló hangulattal és kiemelt komforttal rendelkezik.
Az ingatlan részletes bemutatása szintenként
Pince szint
A pince szint kifejezetten sokoldalúan hasznosítható, természetes hűvös klímájának köszönhetően nyáron a ház egyik legkellemesebb része.
-19,5 m2-es szoba saját fürdőszobával
-18 m2-es, hangulatos borospince
-36 m2-es pincehelyiség, amely kiválóan alkalmas fitness teremnek, wellness térnek vagy hobbihelyiségnek
Földszint
A földszint a mindennapi élet központja, közvetlen kert- és teraszkapcsolatokkal.
-19,5 m2-es hálószoba saját fürdőszobával és WC-vel
-5,68 m2-es előtér
-7,5 m2-es konyha
-34 m2-es, világos nappali
-20 m2-es fedett, beépített terasz
-43 m2-es burkolt terasz, panorámás pihenőtérként kialakítva
Tetőtér
A tetőtér intimebb lakószint, lenyűgöző kilátással a környező tájra.
-11 m2-es hálószoba
-13 m2-es hálószoba
-4 m2-es fürdőszoba
-12 m2-es közlekedő
-20 m2-es panorámás terasz, ahonnan a Balaton és a tihanyi táj különleges látványa tárul fel
Főbb műszaki tartalom és extrák
-Összesen kb. 218 m2 lakótér
-Több nagyméretű, panorámás terasz
-Parkosított kert automata öntözőrendszerrel
-Korszerű hőszivattyús rendszer, padlófűtés és klíma
-Háromrétegű üvegezésű fa nyílászárók
-Privát szauna és teraszi jakuzzi
-Egész évben használható, prémium komfortszint
Lokáció és környezet
Tihany Gödrös üdülőövezete a félsziget egyik legkeresettebb, limitált kínálatú elhelyezkedése. A Balaton-part körülbelül 500 méterre található, így a vízpart közelsége, a természet és a nyugalom a mindennapok szerves részévé válik. A környék presztízse és a szigorú beépítési szabályozás hosszú távon is értékálló választást jelent.
Ár és vásárlási konstrukció
Az ingatlan bruttó 499 millió Ft vételáron érhető el, amely 27% ÁFA-t tartalmaz.
A nettó vételár: 393 millió Ft.
Céges vásárlás esetén a jogszabályi feltételek teljesülése mellett az ÁFA visszaigényelhető, így az ingatlan kifejezetten kedvező konstrukciót kínál befektetési, üzleti vagy hosszú távú vagyonkezelési célokra is.
Kinek ideális ez az ingatlan?
Ideális választás azok számára, akik nem csupán egy házat keresnek, hanem egy valódi életstílust. Tökéletes prémium nyaralónak, reprezentatív magánrezidenciának, valamint céges, befektetési célú hasznosításra is, ahol a lokáció, a panoráma és az ÁFA-tartalom egyaránt értéket képvisel.
Az ingatlan az OTP Ingatlanpont irodai kínálatában érhető el, OTP bankcsoporti háttérrel, amely biztonságot, átlátható ügyintézést és szakmai támogatást nyújt a teljes adásvételi folyamat során.
Amennyiben egy igazán különleges, körpanorámás tihanyi luxusingatlant keres, várom megkeresését bizalommal a részletekért és a személyes megtekintés egyeztetéséhez.