Eladó Üdülő, hétvégi ház
Hirdetéskód: 9326369
Nyíregyháza Dózsa György út 32-34 - OTP Ingatlanpont Iroda
Felújításhoz személyi kölcsönt keres? Kalkuláljon itt! →88.00 m2
ALAPTERÜLET3
SZOBASZÁMnincs megadva
ÉPÍTÉSGáz (konvektor)
FŰTÉS- CSOK igénybe vehető nem
- Tetőtér beépíthető nem
- Építés éve 1958
- Fűtés Gáz (konvektor)
- Klíma nem
- Szigetelt nem
A+++
A++
A+
A
B
C
D
E
F
G
H
I
Az ingatlan leírása
Eladó családi ház (tanya jellegű), nagy telekkel Nyírtelek és Nagycserkesz között - csend, természet, lehetőségek!
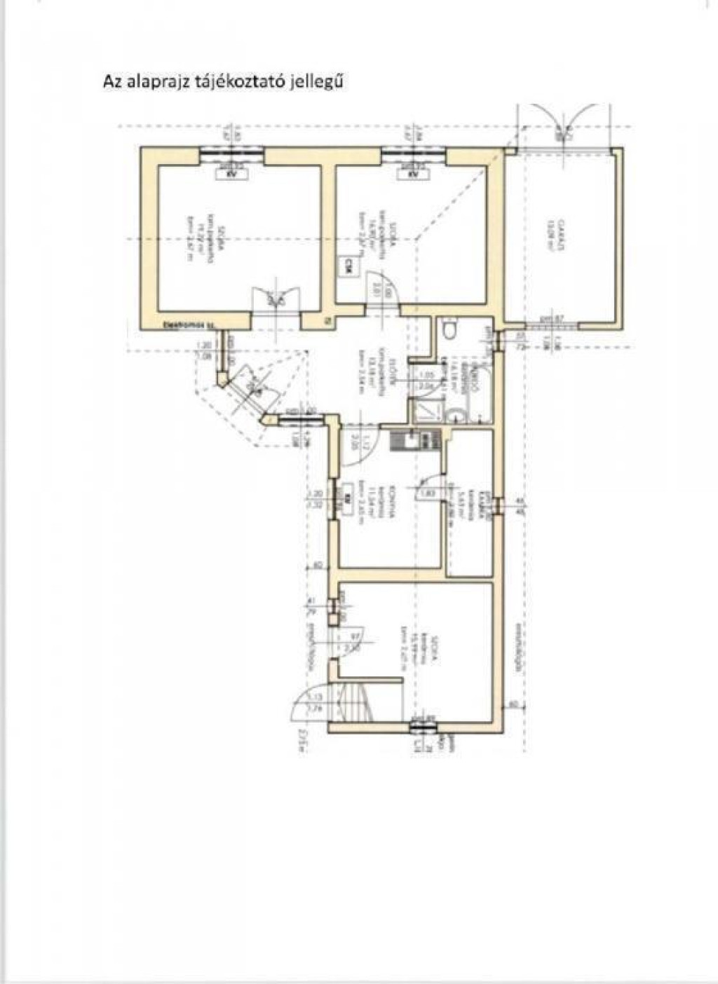
Nyírtelek és Nagycserkesz között, a környék egyik kedvelt bokrában eladásra kínálunk egy 2000 m2-es telken álló, 88 m2-es lakóingatlant, garázzsal és pincével. A terület rendezett, parkosított udvarral, tágas terekkel és kiváló lehetőségekkel várja új tulajdonosát.
A ház vályogfalazatú, terméskő alapra épült, stabil szerkezetű, lakható és költözhető állapotú, ugyanakkor igény szerint korszerűsíthető vagy tovább szépíthető.
Helyiségek:
-3 különnyíló szoba
- konyha
- étkező
- fürdőszoba
-külön WC
- előszoba
-kamra
A belső terek napfényesek, jól elrendezettek, a ház pedig rendkívül barátságos atmoszférát áraszt.
Fűtés: gázkonvektor + cserépkályha - így a rezsi alacsonyan tartható, és a hagyományos fűtés hangulata is megmarad.
Opció -extra lehetőség növénytermesztőknek:
A ház mellett található egy további 2000 m2-es telek, amely +2 millió forintért megvásárolható. Ezzel összesen 4000 m2-es birtok jön létre, amely mezőgazdasági művelésre, állattartásra, növénytermesztésre vagy akár hobbi gazdálkodásra kiváló.
Összegzés:
-csendes, természetközeli elhelyezkedés
- rendezett, parkosított udvar
- lakható, tágas családi ház
-garázs + pince
- kiegészíthető extra szántóval
- kiváló ár-érték arány
- ideális családoknak, gazdálkodóknak, természetkedvelőknek
Hitelben vagy támogatásokban gondolkodik?
Irodánkban sorban állás nélkül, személyre szabottan intézheti az OTP teljes hitel- és támogatási kínálatát, legyen szó CSOK-ról, Babaváróról vagy lakáshitelről.
Az adásvétel teljes folyamatát megbízható ügyvédünkkel együtt végigkísérjük, így Önnek csak a költözésre kell koncentrálnia.
Nyírtelek és Nagycserkesz között, a környék egyik kedvelt bokrában eladásra kínálunk egy 2000 m2-es telken álló, 88 m2-es lakóingatlant, garázzsal és pincével. A terület rendezett, parkosított udvarral, tágas terekkel és kiváló lehetőségekkel várja új tulajdonosát.
A ház vályogfalazatú, terméskő alapra épült, stabil szerkezetű, lakható és költözhető állapotú, ugyanakkor igény szerint korszerűsíthető vagy tovább szépíthető.
Helyiségek:
-3 különnyíló szoba
- konyha
- étkező
- fürdőszoba
-külön WC
- előszoba
-kamra
A belső terek napfényesek, jól elrendezettek, a ház pedig rendkívül barátságos atmoszférát áraszt.
Fűtés: gázkonvektor + cserépkályha - így a rezsi alacsonyan tartható, és a hagyományos fűtés hangulata is megmarad.
Opció -extra lehetőség növénytermesztőknek:
A ház mellett található egy további 2000 m2-es telek, amely +2 millió forintért megvásárolható. Ezzel összesen 4000 m2-es birtok jön létre, amely mezőgazdasági művelésre, állattartásra, növénytermesztésre vagy akár hobbi gazdálkodásra kiváló.
Összegzés:
-csendes, természetközeli elhelyezkedés
- rendezett, parkosított udvar
- lakható, tágas családi ház
-garázs + pince
- kiegészíthető extra szántóval
- kiváló ár-érték arány
- ideális családoknak, gazdálkodóknak, természetkedvelőknek
Hitelben vagy támogatásokban gondolkodik?
Irodánkban sorban állás nélkül, személyre szabottan intézheti az OTP teljes hitel- és támogatási kínálatát, legyen szó CSOK-ról, Babaváróról vagy lakáshitelről.
Az adásvétel teljes folyamatát megbízható ügyvédünkkel együtt végigkísérjük, így Önnek csak a költözésre kell koncentrálnia.