Eladó Üdülő, hétvégi ház
Hirdetéskód: 9324689

CasettIngatlan

Felújításhoz személyi kölcsönt keres? Kalkuláljon itt! →
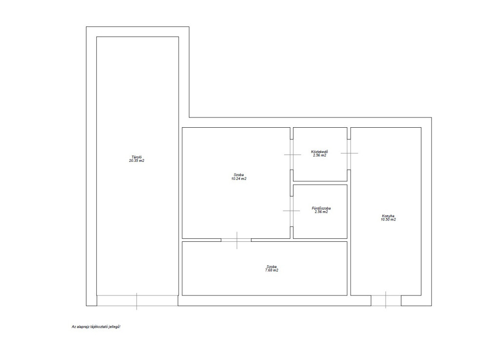
44.00 m2
ALAPTERÜLET
2
SZOBASZÁM
nincs megadva
ÉPÍTÉS
Gáz (konvektor)
FŰTÉS
  • CSOK igénybe vehető nem
  • Tetőtér beépíthető nem
  • Építés éve 1987
  • Fűtés Gáz (konvektor)
  • Klíma nem
  • Szigetelt nem
Energetikai besorolás: Nincs meghatározva
A+++
A++
A+
A
B
C
D
E
F
G
H
I

Az MBH Bank személyi kölcsön ajánlata

Fizetett hirdetés
1 millió Ft
6 évre
20 585 Ft/hó
THM: 14.5%
Részletek →
2 millió Ft
6 évre
41 169 Ft/hó
THM: 14.5%
Részletek →
3 millió Ft
6 évre
61 754 Ft/hó
THM: 14.5%
Részletek →

A tájékoztatás nem teljes körű és nem minősül ajánlattételnek.

Az ingatlan leírása

Dömsöd zártkerti részén zártkerti művelés alól kivett, 1126 m2-es telken elhelyezkedő, nagyon gondozott állapotban, 44 m2-es, két szobás faház eladó. Annak ellenére, hogy a ház nem kapott még szigetelést, lakótere mondhatni téliesített, ugyanis a fűtés konvektorral és fűtő panelekkel megoldott. A vizet házi vízmű fúrt kútról biztosítja. Villanyhálózatra csatlakoztatva van az ingatlan, és emésztővel rendelkezik. Kedves szomszédság, csendes környezet, ami ebbe a kedves házba vonzhatja új tulajdonosát.
Teljes körű ügyintézéssel állok az eladók és a vevők rendelkezésére! Lehetőség van EGYEDI HITEL ELBÍRÁLÁSRA is! Az adásvételi szerződés megkötéséhez igény szerint megbízható ügyvédi közreműködést biztosítok, és segítséget nyújtok az adásvételhez kapcsolódó ügyek intézéséhez. Amennyiben kérdése van, forduljon hozzám bizalommal!
HÍVJON, NÉZZÜK MEG EGYÜTT!

Térkép

Ingatlan adásvétel ügyvédi díja
150 000 Ft
a hirdetésben szereplő ár alapján
  • A vételár 0,45%-a
  • Szerződéscsomag teljeskörű képviselettel
  • Ingyenes tulajdoni lap ellenőrzés
  • Az ÁFA-t már tartalmazza
Érdekel az ajánlat →
A tájékoztatás nem teljes körű és nem minősül ajánlattételnek. Minimum díj: 150 000 Ft, maximum díj: 600 000 Ft. A díj kizárólag lakóingatlan adásvételére vonatkozik.

A hirdető elérhetősége

CasettIngatlan

Kátai-Riszter Ágnes
+36 70 363