Eladó Üdülő, hétvégi ház
Hirdetéskód: 9219668

Székesfehérvár Palotai út 8 - OTP Ingatlanpont Iroda

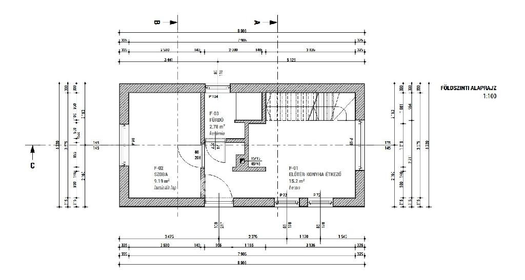
41 m2
ALAPTERÜLET
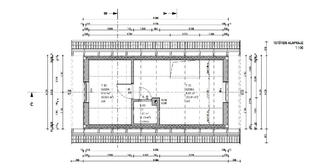
1
SZOBASZÁM
nincs megadva
ÉPÍTÉS
Egyéb fűtés
FŰTÉS
  • CSOK igénybe vehető nem
  • Belső szintek 2
  • Tetőtér beépíthető nem
  • Építés éve 2022
  • Fűtés Egyéb fűtés
  • Klíma nem
  • Szigetelt nem
Energetikai besorolás: Nincs meghatározva
A+++
A++
A+
A
B
C
D
E
F
G
H
I

Az ingatlan leírása

Fejér megye, Baracska 41 nm-es ház eladó. A zártkerti, művelés alól kivett ingatlan -NINCS KIFÜGGESZTÉS- egy 961 nm-es telken helyezkedik el, közel a vasútállomáshoz. A 2022-ben épült ingatlan földszintje tégla falazatú, a tetőtér könnyűszerkezetes. A nyílászárók 2 rétegű műanyagok. A házban nappali konyha étkező egyben, 3 félszoba, fürdőszoba, külön mosdó található. A közművek közül a villany (1x32A) a házba bevezetve, a vizet az 51 méter mély fúrt kút adja, a szennyvízelvezetés emésztővel megoldott. Jelenleg a fűtést egy kályha biztosítja, az ingatlanba hűtő fűtő klíma lett tervezve. Megvásárlása tökéletes lehetőség álmai otthona megteremtéséhez csendes, barátságos környezetben, közel Budapesthez és a Velencei tóhoz. Amennyiben felkeltette az érdeklődését, további kérdések esetén várom hívását. Teljes körű ügyintézésben segítjük ügyfeleinket díjtalanul: Kedvezményes kamatú hitellel mobil bankári szolgáltatással, adásvétel teljes lebonyolításával.

Térkép

A hirdető elérhetősége

Székesfehérvár Palotai út 8 - OTP Ingatlanpont Iroda

Darnai Henrietta
+36 20 487