Eladó Üdülő, hétvégi ház
Hirdetéskód: 9306465

Pécs Király utca 75/5 - OTP Ingatlanpont Iroda

Felújításhoz személyi kölcsönt keres? Kalkuláljon itt! →
31.00 m2
ALAPTERÜLET
1
SZOBASZÁM
nincs megadva
ÉPÍTÉS
Egyéb fűtés
FŰTÉS
  • CSOK igénybe vehető nem
  • Tetőtér beépíthető nem
  • Építés éve 2023
  • Fűtés Egyéb fűtés
  • Klíma nem
  • Szigetelt nem
Energetikai besorolás: Nincs meghatározva
A+++
A++
A+
A
B
C
D
E
F
G
H
I

Az MBH Bank személyi kölcsön ajánlata

Fizetett hirdetés
1 millió Ft
6 évre
20 585 Ft/hó
THM: 14.5%
Részletek →
2 millió Ft
6 évre
41 169 Ft/hó
THM: 14.5%
Részletek →
3 millió Ft
6 évre
61 754 Ft/hó
THM: 14.5%
Részletek →

A tájékoztatás nem teljes körű és nem minősül ajánlattételnek.

Az ingatlan leírása

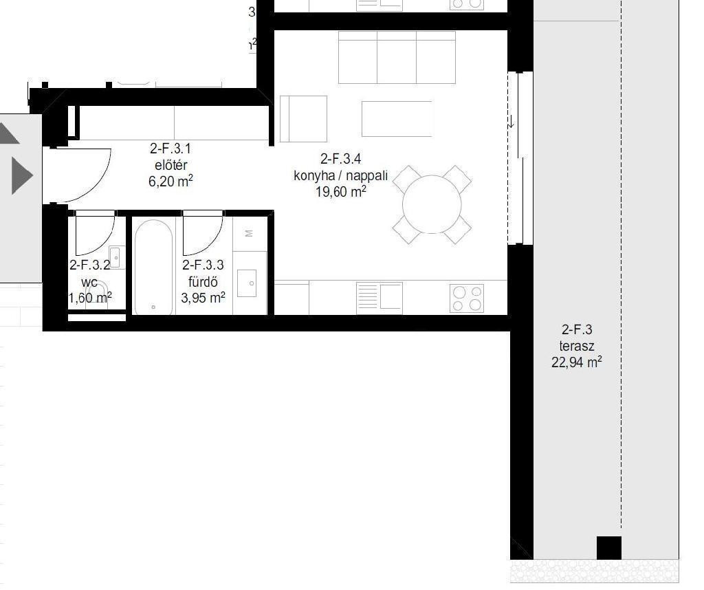
Balatonfenyvesen üdülőegység eladó. Fenyves felső, üdülőparkban, ősfás, ligetes környezetben, 3 épületben összesen 21 üdülőegység épül, földszint + 2 emeleten. Korszerű energetikai mutatókkal, megújuló energiával üzemelő társasüdülő. Az egész évben használható, lakófunkcióra is alkalmas egységek hűtését fűtését levegő hőszivattyú biztosítja. A tégla teherhordó szerkezetű épületek külső oldalon hőszigetelő vakolattal ellátottak, korszerű homlokzati nyílászárók készülnek, nagy üvegfelületekkel. Az épületek földszintjén tárolók kerültek kialakításra, melyek vásárlása opcionális. Az egységek változatos alaprajzi kialakítással tervezettek, 1-2-3 hálószobával. Az épületek legfelső szintjén egyedi kialakítású penthouse üdülők épülnek nagy teraszokkal. Erről a szintről korlátozottan balatoni panoráma látható. A gépkocsik elhelyezése telken belül felszíni parkolókban megoldott, egységenként 1 db vásárlása szükséges. Az igen kedvező környezeti adottságok mellett a Balaton gyalogosan 2 perc alatt elérhető. M7 autópálya csomópont 3,5 km-re. Bővebb információért keressen telefonon! (M285866)

54900000 Ft

Térkép

Ingatlan adásvétel ügyvédi díja
247 050 Ft
a hirdetésben szereplő ár alapján
  • A vételár 0,45%-a
  • Szerződéscsomag teljeskörű képviselettel
  • Ingyenes tulajdoni lap ellenőrzés
  • Az ÁFA-t már tartalmazza
Érdekel az ajánlat →
A tájékoztatás nem teljes körű és nem minősül ajánlattételnek. Minimum díj: 150 000 Ft, maximum díj: 600 000 Ft. A díj kizárólag lakóingatlan adásvételére vonatkozik.

A hirdető elérhetősége

Pécs Király utca 75/5 - OTP Ingatlanpont Iroda

Borvári Mária
+36 70 393