Eladó Üdülő, hétvégi ház
Hirdetéskód: 9041266

-

550 m2
ALAPTERÜLET
3
SZOBASZÁM
Tégla
ÉPÍTÉS
Elektromos
FŰTÉS
  • Belső szintek 1
  • Tetőtér beépíthető nem
  • Kilátás Udvari
  • Tájolás Délnyugat
  • Ingatlan komfort Összkomfortos
  • Parkolási lehetőség Udvari beálló
  • Építés éve 2025
  • Fűtés Elektromos
  • Építőanyag Tégla
  • Klíma igen
  • Szigetelt igen
  • Bútorozott nem
  • Akadálymentesített igen
Energetikai besorolás: Nincs meghatározva
A+++
A++
A+
A
B
C
D
E
F
G
H
I

Az ingatlan leírása

Új építésű nyaraló eladó Abádszalókon!
Az Összkomfort Ingatlanügynökség megvételre kínál egy ÚJ télen is lakható nyaralót Abádszalókon az Attila öböl melletti összközműves üdülőterületen.  
Közelben-új strand, kikötő, vendéglátó üzletsor, 65 km kiépített kerékpárút a Tisza-tó körül, horgászparadicsom, "csend és nyugalom"
A közelben a tiszaőrsi gyógyfürdő. Jó közlekedési viszonyok.
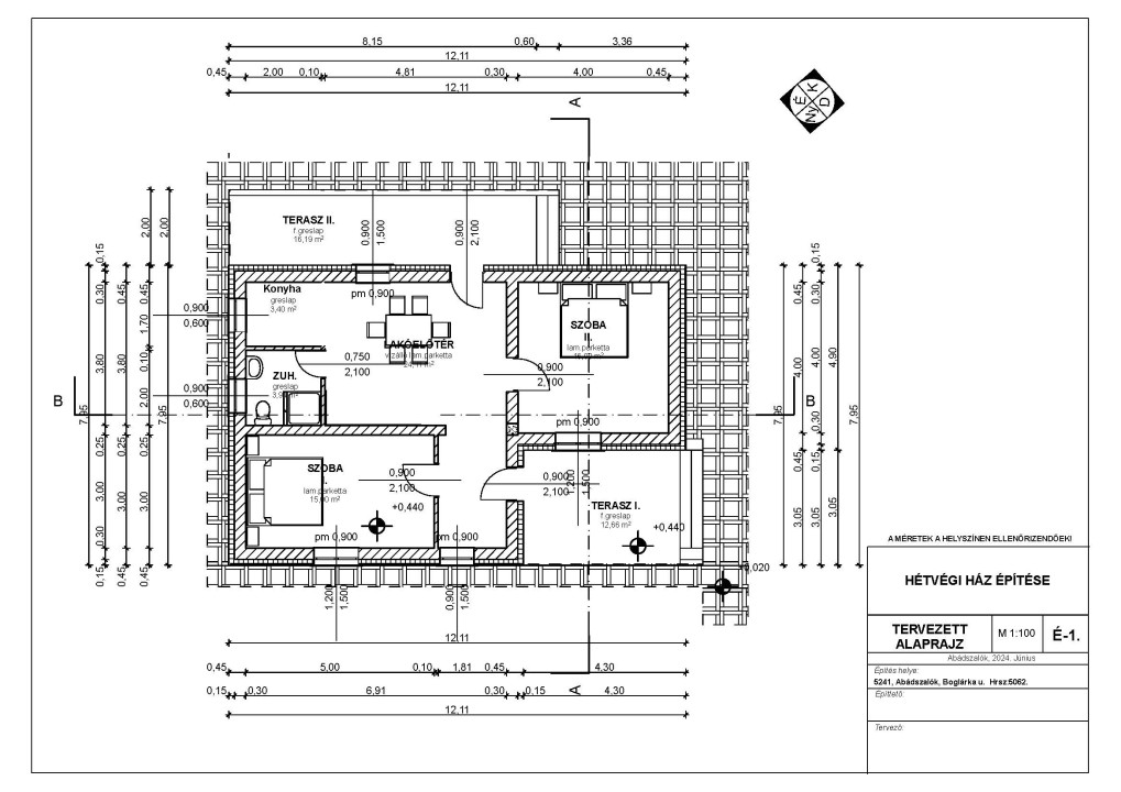
Az ingatlan 63m2 hasznos alapterülettel rendelkezik, 550 m2 területen fekszik, kettő szoba, nappali-konyha, fürdőszoba, előtér, helyiségekből áll, kettő  16m2+13m2 terasz is tartozik az épülethez.
Alapja-vasbeton sávalap. Falazat Leiertherm 30 N+F főfalak szigeteléssel, Leiertherm 10 N+F válaszfalak.
Tetejét cserép fedi. 
Kömmerling műanyag külső-belső nyílászárók lettek beépítve.
Padlózata laminált padlóburkolatot, konyha és fürdőszoba kerámia borítást kap.
A nyaraló fűtéséről és hűtéséről inverteres klímaberendezés gondoskodik, télen - nyáron lakható.  
Ára: 40 Mft


A hirdetésben szereplő információk a megbízótól kapott adatok alapján készültek. 


Az Összkomfort Ingatlanügynökség további szolgáltatásai: hitelügyintézés, ügyvédi-közjegyzői szolgáltatás, energetikai tanúsítvány, villamos biztonsági felülvizsgálat, készítése. Statikus, földmérő, építész, biztosítása. 
Összkomfort Ingatlanügynökség!


 

Térkép

A hirdető elérhetősége

Összkomfort Ingatlanügynökség

+36 70 541