Eladó Telek
Hirdetéskód: 9213062
Balatonfűzfő Munkás tér 3 - OTP Ingatlanpont Iroda
Felújításhoz személyi kölcsönt keres? Kalkuláljon itt! →0 m2
TERÜLETnincs megadva
ÉPÍTÉSEgyéb fűtés
FŰTÉS- CSOK igénybe vehető nem
- Tetőtér beépíthető nem
- Fűtés Egyéb fűtés
- Klíma nem
- Szigetelt nem
A+++
A++
A+
A
B
C
D
E
F
G
H
I
Az ingatlan leírása
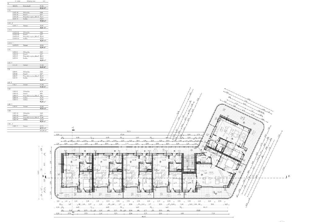
Tihany Rév Kapuja II. ütem | Fejlesztési terület engedéllyel és teljes tervdokumentációval
Eladó Tihany frekventált részén, a rév közvetlen közelében található 1201 m2-es belterületi fejlesztési telek, amely a Tihany Rév Kapuja projekt második ütemének területe. Az I. ütem már megvalósult, használatbavételi engedéllyel rendelkezik, ezáltal a koncepció és a lokáció már bizonyított a piacon.
-Projektparaméterek:
-Telekméret: 1201 m2
-Övezeti besorolás: Vt5
-Beépíthetőség: 50%
-Zöldfelület minimum: 30%
Megengedett épületmagasság: 8 m
Építési engedély: érvényes 12 db lakásra és 7 db földszinti üzlethelyiségre
E-napló nyitva tartás: 2029-ig
Lakásméretek: 46 m2- 71 m2
Teraszméretek: 12 m2-70 m2
Minden lakás Balatonra néző panorámás terasszal rendelkezik az épület íves geometriájának köszönhetően.
Fejlesztési előnyök:
-Az engedélyezési folyamat lezárult, azonnal indítható fejlesztés.
-Külön helyrajzi számon szereplő ingatlan, tiszta jogi háttérrel. (Céggel együtt is megvásárolható)
-Teljes tervdokumentáció rendelkezésre áll, beleértve az engedélyezett terveket és műszaki dokumentumokat.
-A tulajdonos minden engedélyt, tervanyagot és jogi támogatást biztosít komoly érdeklődők részére.
Keresett lokáció: a Tihanyi-rév térsége a Balaton egyik legnagyobb forgalmú csomópontja, stabil értéknövekedéssel és prémium fejlesztési potenciállal.
Piaci pozíció:
Az I. ütem sikeres megvalósítása és értékesítése megalapozza a II. ütem piaci hitelességét.
A projekt a vegyes funkciójú fejlesztések kategóriájába tartozik (lakó + kereskedelmi), amely stabil hozamot biztosíthat bérbeadás és értékesítés esetén is.
Tihany kiemelt turisztikai és infrastrukturális fejlesztési övezet, így a környék kiemelt befektetési célpont mind hazai, mind külföldi befektetők számára.
A Tihany Rév Kapuja II. ütem egy azonnal fejleszthető, engedélyes beruházási lehetőség Tihany legnagyobb forgalmú pontján, fantasztikus panorámával és biztos piaci háttérrel.
A projekt minden műszaki és jogi előfeltétele rendelkezésre áll , gyors indíthatóság, kiszámítható megtérülés, prémium lokáció!!!!!!
Eladó Tihany frekventált részén, a rév közvetlen közelében található 1201 m2-es belterületi fejlesztési telek, amely a Tihany Rév Kapuja projekt második ütemének területe. Az I. ütem már megvalósult, használatbavételi engedéllyel rendelkezik, ezáltal a koncepció és a lokáció már bizonyított a piacon.
-Projektparaméterek:
-Telekméret: 1201 m2
-Övezeti besorolás: Vt5
-Beépíthetőség: 50%
-Zöldfelület minimum: 30%
Megengedett épületmagasság: 8 m
Építési engedély: érvényes 12 db lakásra és 7 db földszinti üzlethelyiségre
E-napló nyitva tartás: 2029-ig
Lakásméretek: 46 m2- 71 m2
Teraszméretek: 12 m2-70 m2
Minden lakás Balatonra néző panorámás terasszal rendelkezik az épület íves geometriájának köszönhetően.
Fejlesztési előnyök:
-Az engedélyezési folyamat lezárult, azonnal indítható fejlesztés.
-Külön helyrajzi számon szereplő ingatlan, tiszta jogi háttérrel. (Céggel együtt is megvásárolható)
-Teljes tervdokumentáció rendelkezésre áll, beleértve az engedélyezett terveket és műszaki dokumentumokat.
-A tulajdonos minden engedélyt, tervanyagot és jogi támogatást biztosít komoly érdeklődők részére.
Keresett lokáció: a Tihanyi-rév térsége a Balaton egyik legnagyobb forgalmú csomópontja, stabil értéknövekedéssel és prémium fejlesztési potenciállal.
Piaci pozíció:
Az I. ütem sikeres megvalósítása és értékesítése megalapozza a II. ütem piaci hitelességét.
A projekt a vegyes funkciójú fejlesztések kategóriájába tartozik (lakó + kereskedelmi), amely stabil hozamot biztosíthat bérbeadás és értékesítés esetén is.
Tihany kiemelt turisztikai és infrastrukturális fejlesztési övezet, így a környék kiemelt befektetési célpont mind hazai, mind külföldi befektetők számára.
A Tihany Rév Kapuja II. ütem egy azonnal fejleszthető, engedélyes beruházási lehetőség Tihany legnagyobb forgalmú pontján, fantasztikus panorámával és biztos piaci háttérrel.
A projekt minden műszaki és jogi előfeltétele rendelkezésre áll , gyors indíthatóság, kiszámítható megtérülés, prémium lokáció!!!!!!