Eladó Telek
Hirdetéskód: 9309849

Duna House Óbuda

Felújításhoz személyi kölcsönt keres? Kalkuláljon itt! →
760 m2
TERÜLET
nincs megadva
ÉPÍTÉS
nincs megadva
FŰTÉS
  • CSOK igénybe vehető nem
  • Tetőtér beépíthető nem
  • Klíma nem
  • Szigetelt nem
Energetikai besorolás: Nincs meghatározva
A+++
A++
A+
A
B
C
D
E
F
G
H
I

Az MBH Bank személyi kölcsön ajánlata

Fizetett hirdetés
1 millió Ft
6 évre
20 585 Ft/hó
THM: 14.5%
Részletek →
2 millió Ft
6 évre
41 169 Ft/hó
THM: 14.5%
Részletek →
3 millió Ft
6 évre
61 754 Ft/hó
THM: 14.5%
Részletek →

A tájékoztatás nem teljes körű és nem minősül ajánlattételnek.

Az ingatlan leírása

Szigetmonostor újépítésű részén eladó egy építési engedéllyel rendelkező lakóövezeti, összközműves telek! Az építési engedély és a tervek az ár részét képezik!
Az Ófalu és Horány közt létrejött újépítésű részen helyezkedik el, 500méterre óvodától, bölcsödétől. Szentendre és Dunakeszi irányába is egyelő távolságra az autós révektől. A telek lakóövezeti, összközműves, 760nm-es, sík és aszfaltozott utca mellett helyezkedik el.
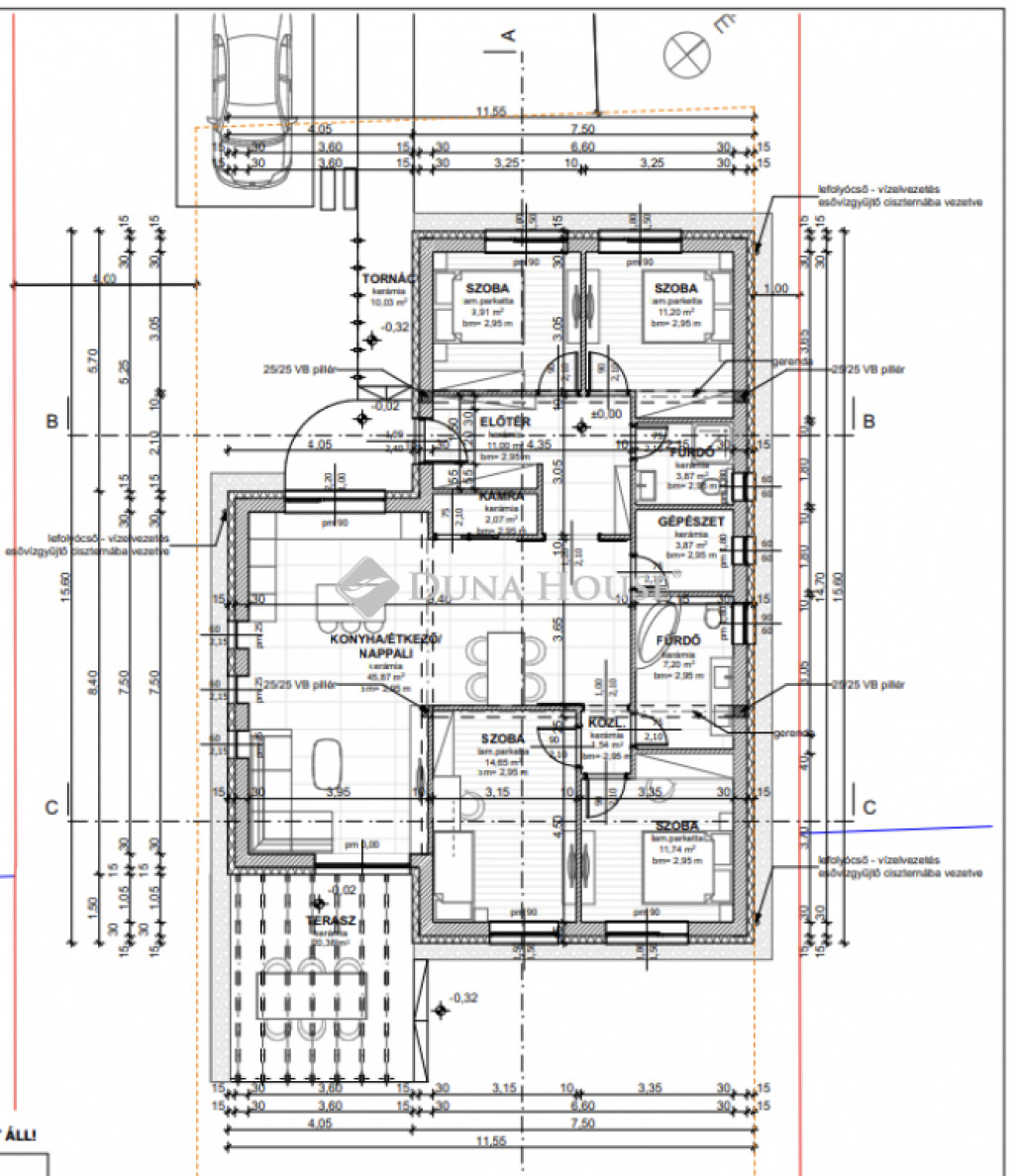
Egy 122nm-es egy szintes családi ház építési terveivel rendelkezik. Ezekkel együtt eladó. A családi ház megépítése opcionálisan megoldható.
További kérdés és a megtekintéssel kapcsolatban hívjon bizalommal a hét minden napján!

Térkép

Ingatlan adásvétel ügyvédi díja
150 000 Ft
a hirdetésben szereplő ár alapján
  • A vételár 0,45%-a
  • Szerződéscsomag teljeskörű képviselettel
  • Ingyenes tulajdoni lap ellenőrzés
  • Az ÁFA-t már tartalmazza
Érdekel az ajánlat →
A tájékoztatás nem teljes körű és nem minősül ajánlattételnek. Minimum díj: 150 000 Ft, maximum díj: 600 000 Ft. A díj kizárólag lakóingatlan adásvételére vonatkozik.

A hirdető elérhetősége

Duna House Óbuda

Cozma Krisztina
+36 30 962