Eladó Telek
Hirdetéskód: 9311822
OTP Ingatlanpont - Takács Zsuzsanna
Felújításhoz személyi kölcsönt keres? Kalkuláljon itt! →1847 m2
TERÜLETnincs megadva
ÉPÍTÉSnincs megadva
FŰTÉS- CSOK igénybe vehető nem
- Tetőtér beépíthető nem
- Klíma nem
- Szigetelt nem
A+++
A++
A+
A
B
C
D
E
F
G
H
I
Az ingatlan leírása
Sokoldalúan beépíthető telek eladó Szigethalmon!
Eladásra kínálunk egy telket, amely rugalmas beépítési lehetőségeivel számos beruházás számára ideális választás.
A terület többféle funkció számára is kiválóan alkalmas: társasház építésére, családi ház kialakítására, vállalkozói szolgáltatások létesítésére, üzlethelyiség vagy vegyes funkciójú épület megvalósítására is.
Akár 4 lakásos társasház is építhető rá, de 1 szolgáltatóegységnek is kell lennie, csak így adnak építési engedélyt.
A telek környezete rendezett, megközelíthetősége kiváló, infrastruktúrája teljes, így akár azonnal megkezdhető a tervezés és a fejlesztés.
Ha olyan ingatlanlehetőséget keres, amelyet saját igényeire formálhat, és biztos alapot ad bármilyen fejlesztési elképzeléshez, akkor ez a telek tökéletes választás.
Referenciaszám : M318787
Övezeti besorolás Lakóövezet
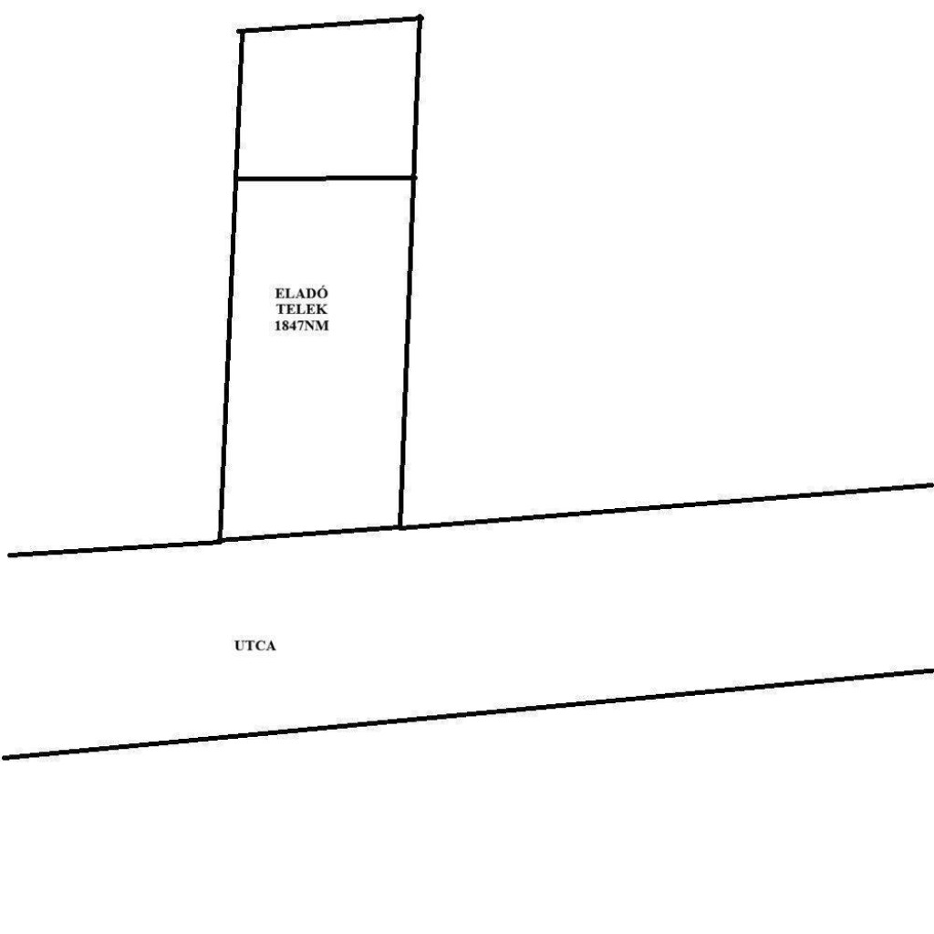
Hivatalos alapterület (m2) - (ház esetén felépítmény területe) 1 847 m2
Víz Telken belül
Telek területi besorolása (osztálya) Belterület
Villany Telken belül
Telek szélessége (m) 23.5
Csatorna Telken belül
Telek hosszúsága (m) 76.0
Gáz Telken belül
Telek lejtése Enyhe
Osztatlan közös tulajdon igen
Utcai igen
Használati szerződés igen
Nyeles nem
Elkerített igen
Az OTP Ingatlanpont, mint egyetlen közvetlen banki hátterű ingatlanközvetítő társaság teljes körű ügyintézéssel áll az eladók és a vevők rendelkezésére! A kínálatunkból választott ingatlan finanszírozásához minősített fogyasztóbarát, piaci és kedvezményes hitel- és lízingkonstrukciókat kínálunk (lakásvásárlási hitel, CSOK plusz, szabad felhasználású hitel, babaváró hitel, céges hitelek, pályázatok, amennyiben az ügyfél és az ingatlan megfelel a feltételeknek). Az adásvételi szerződés megkötéséhez igény szerint megbízható ügyvédi közreműködést biztosítunk, és segítséget nyújtunk az adásvételhez kapcsolódó egyéb ügyek intézéséhez.
Ha az új ingatlana megvásárlásához a jelenlegi ingatlanát el kell adnia, abban is szívesen segítünk.
Eladásra kínálunk egy telket, amely rugalmas beépítési lehetőségeivel számos beruházás számára ideális választás.
A terület többféle funkció számára is kiválóan alkalmas: társasház építésére, családi ház kialakítására, vállalkozói szolgáltatások létesítésére, üzlethelyiség vagy vegyes funkciójú épület megvalósítására is.
Akár 4 lakásos társasház is építhető rá, de 1 szolgáltatóegységnek is kell lennie, csak így adnak építési engedélyt.
A telek környezete rendezett, megközelíthetősége kiváló, infrastruktúrája teljes, így akár azonnal megkezdhető a tervezés és a fejlesztés.
Ha olyan ingatlanlehetőséget keres, amelyet saját igényeire formálhat, és biztos alapot ad bármilyen fejlesztési elképzeléshez, akkor ez a telek tökéletes választás.
Referenciaszám : M318787
Övezeti besorolás Lakóövezet
Hivatalos alapterület (m2) - (ház esetén felépítmény területe) 1 847 m2
Víz Telken belül
Telek területi besorolása (osztálya) Belterület
Villany Telken belül
Telek szélessége (m) 23.5
Csatorna Telken belül
Telek hosszúsága (m) 76.0
Gáz Telken belül
Telek lejtése Enyhe
Osztatlan közös tulajdon igen
Utcai igen
Használati szerződés igen
Nyeles nem
Elkerített igen
Az OTP Ingatlanpont, mint egyetlen közvetlen banki hátterű ingatlanközvetítő társaság teljes körű ügyintézéssel áll az eladók és a vevők rendelkezésére! A kínálatunkból választott ingatlan finanszírozásához minősített fogyasztóbarát, piaci és kedvezményes hitel- és lízingkonstrukciókat kínálunk (lakásvásárlási hitel, CSOK plusz, szabad felhasználású hitel, babaváró hitel, céges hitelek, pályázatok, amennyiben az ügyfél és az ingatlan megfelel a feltételeknek). Az adásvételi szerződés megkötéséhez igény szerint megbízható ügyvédi közreműködést biztosítunk, és segítséget nyújtunk az adásvételhez kapcsolódó egyéb ügyek intézéséhez.
Ha az új ingatlana megvásárlásához a jelenlegi ingatlanát el kell adnia, abban is szívesen segítünk.