Eladó Telek
Hirdetéskód: 9293037
Dunaharaszti Bocskai utca 10 - OTP Ingatlanpont Iroda
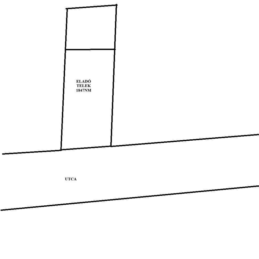
Felújításhoz személyi kölcsönt keres? Kalkuláljon itt! →1847 m2
TERÜLETnincs megadva
ÉPÍTÉSnincs megadva
FŰTÉS- CSOK igénybe vehető nem
- Tetőtér beépíthető nem
- Klíma nem
- Szigetelt nem
A+++
A++
A+
A
B
C
D
E
F
G
H
I
Az ingatlan leírása
Sokoldalúan beépíthető telek eladó Szigethalmon!
Eladásra kínálunk egy telket, amely rugalmas beépítési lehetőségeivel számos beruházás számára ideális választás.
A terület többféle funkció számára is kiválóan alkalmas: társasház építésére, családi ház kialakítására, vállalkozói szolgáltatások létesítésére, üzlethelyiség vagy vegyes funkciójú épület megvalósítására is.
A telek környezete rendezett, megközelíthetősége kiváló, infrastruktúrája teljes, így akár azonnal megkezdhető a tervezés és a fejlesztés.
Ha olyan ingatlanlehetőséget keres, amelyet saját igényeire formálhat, és biztos alapot ad bármilyen fejlesztési elképzeléshez, akkor ez a telek tökéletes választás.
Amennyiben felkeltettem érdeklődését, várom megtisztelő hívását a hét bármely napján. Az OTP Bankcsoport teljes körű ügyintézéssel áll az eladók és a vevők rendelkezésére! Az adásvételi szerződés megkötéséhez igény szerint megbízható ügyvédi közreműködést és sorban állás nélküli hitel tanácsadást biztosítunk ügyfeleink részére! Referenciaszám : M318787
Eladásra kínálunk egy telket, amely rugalmas beépítési lehetőségeivel számos beruházás számára ideális választás.
A terület többféle funkció számára is kiválóan alkalmas: társasház építésére, családi ház kialakítására, vállalkozói szolgáltatások létesítésére, üzlethelyiség vagy vegyes funkciójú épület megvalósítására is.
A telek környezete rendezett, megközelíthetősége kiváló, infrastruktúrája teljes, így akár azonnal megkezdhető a tervezés és a fejlesztés.
Ha olyan ingatlanlehetőséget keres, amelyet saját igényeire formálhat, és biztos alapot ad bármilyen fejlesztési elképzeléshez, akkor ez a telek tökéletes választás.
Amennyiben felkeltettem érdeklődését, várom megtisztelő hívását a hét bármely napján. Az OTP Bankcsoport teljes körű ügyintézéssel áll az eladók és a vevők rendelkezésére! Az adásvételi szerződés megkötéséhez igény szerint megbízható ügyvédi közreműködést és sorban állás nélküli hitel tanácsadást biztosítunk ügyfeleink részére! Referenciaszám : M318787