Eladó Telek
Hirdetéskód: 9199207
DUX Nekretnine d.o.o. - Horváth Lajos
2860 m2
ALAPTERÜLET0
SZOBASZÁMnincs megadva
ÉPÍTÉSnincs megadva
FŰTÉS- CSOK igénybe vehető nem
- Tetőtér beépíthető nem
- Klíma nem
- Szigetelt nem
A+++
A++
A+
A
B
C
D
E
F
G
H
I
Az ingatlan leírása
BEFEKTETÉSI LEHETŐSÉG HORVÁTORSZÁG ZÖLD SZÍVÉBEN!
GORSKI KOTAR - STARI LAZ: érvényes építési engedéllyel rendelkező telek 4 luxus hegyi villa számára
Magával ragadó HELYSZÍN: Gorski Kotar, a "Horvátország zöld oázisa", egyedülálló természeti kincsekkel rendelkező régió, tökéletes helyen fekszik - összeköti a kontinentális és a mediterrán Horvátországot! A nagyvárosok és repülőterek (Zágráb, Ljubljana, Rijeka) közelsége és a kiváló közlekedési kapcsolatok ideális úti céllá teszik Stari Lazt a turizmus, az aktív pihenés és a nyugalom kedvelőinek.
AZONNAL ÉPÍTÉSRE KÉSZ! Eladó telek a T2 zónában (vendéglátóipari és turisztikai célú), amelyre:
• érvényes építési engedély van!
• a közüzemi számlák kifizetve!
• az előkészítő munkálatok befejeződtek
4 VILLÁBÓL ÁLLÓ KOMPLEXUM PROJEKTJE: Négy exkluzív hegyi villából álló komplexum építése tervezett, háromszintes egységként (alagsor, földszint és első emelet), ideális turisztikai bérbeadásra vagy személyes élvezetre.
Villa részletei:
• Három villa (A, B, C) összesen 227 m2-es alapterülettel rendelkezik, egy villa (D) pedig 178 m2-es.
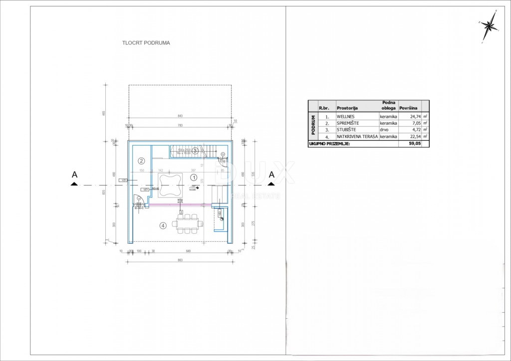
• Alagsor (Wellness Zóna): Wellness, tárolóhelyiség, lépcsőház és fedett terasz - pihenőzóna.
• Földszint (Lakótér): Tágas nappali/étkező/konyha, 1. hálószoba, 1. fürdőszoba, WC, kazánház/mosókonyha és fedett terasz.
• Emelet (Hálószoba): Előszoba, 2. hálószoba 2. fürdőszobával, 3. hálószoba 3. fürdőszobával és fedett erkéllyel.
MIÉRT ÉRDEMES BEFEKTETNI? Ez egy egyedülálló lehetőség arra, hogy minimális bürokratikus akadályokkal fektessen be. Ön egy kész projekttel rendelkezik, érvényes engedéllyel a kívánt típusú ingatlan - luxus hegyi villák wellness létesítményekkel - építésére. Biztosítsa be részesedését a Gorski kotar növekvő turizmusából!
Ne várjon! Kezdje el az építkezést most, és használja ki ennek az egyedülálló befektetésnek a teljes potenciálját!
További információkért és a projekt dokumentációjának megtekintéséhez vegye fel velünk a kapcsolatot.
GORSKI KOTAR - STARI LAZ: érvényes építési engedéllyel rendelkező telek 4 luxus hegyi villa számára
Magával ragadó HELYSZÍN: Gorski Kotar, a "Horvátország zöld oázisa", egyedülálló természeti kincsekkel rendelkező régió, tökéletes helyen fekszik - összeköti a kontinentális és a mediterrán Horvátországot! A nagyvárosok és repülőterek (Zágráb, Ljubljana, Rijeka) közelsége és a kiváló közlekedési kapcsolatok ideális úti céllá teszik Stari Lazt a turizmus, az aktív pihenés és a nyugalom kedvelőinek.
AZONNAL ÉPÍTÉSRE KÉSZ! Eladó telek a T2 zónában (vendéglátóipari és turisztikai célú), amelyre:
• érvényes építési engedély van!
• a közüzemi számlák kifizetve!
• az előkészítő munkálatok befejeződtek
4 VILLÁBÓL ÁLLÓ KOMPLEXUM PROJEKTJE: Négy exkluzív hegyi villából álló komplexum építése tervezett, háromszintes egységként (alagsor, földszint és első emelet), ideális turisztikai bérbeadásra vagy személyes élvezetre.
Villa részletei:
• Három villa (A, B, C) összesen 227 m2-es alapterülettel rendelkezik, egy villa (D) pedig 178 m2-es.
• Alagsor (Wellness Zóna): Wellness, tárolóhelyiség, lépcsőház és fedett terasz - pihenőzóna.
• Földszint (Lakótér): Tágas nappali/étkező/konyha, 1. hálószoba, 1. fürdőszoba, WC, kazánház/mosókonyha és fedett terasz.
• Emelet (Hálószoba): Előszoba, 2. hálószoba 2. fürdőszobával, 3. hálószoba 3. fürdőszobával és fedett erkéllyel.
MIÉRT ÉRDEMES BEFEKTETNI? Ez egy egyedülálló lehetőség arra, hogy minimális bürokratikus akadályokkal fektessen be. Ön egy kész projekttel rendelkezik, érvényes engedéllyel a kívánt típusú ingatlan - luxus hegyi villák wellness létesítményekkel - építésére. Biztosítsa be részesedését a Gorski kotar növekvő turizmusából!
Ne várjon! Kezdje el az építkezést most, és használja ki ennek az egyedülálló befektetésnek a teljes potenciálját!
További információkért és a projekt dokumentációjának megtekintéséhez vegye fel velünk a kapcsolatot.