Eladó Telek
Hirdetéskód: 9309850
Duna House Óbuda
Felújításhoz személyi kölcsönt keres? Kalkuláljon itt! →650 m2
TERÜLETnincs megadva
ÉPÍTÉSnincs megadva
FŰTÉS- CSOK igénybe vehető nem
- Tetőtér beépíthető nem
- Klíma nem
- Szigetelt nem
A+++
A++
A+
A
B
C
D
E
F
G
H
I
Az ingatlan leírása
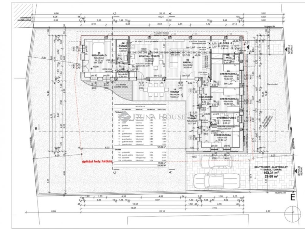
Eladó építési telek Pócsmegyeren a Pázsit-tó közelében érvényes építési engedéllyel!
Pócsmegyer csendes, barátságos részén kínálunk megvételre egy 650 m²-es, falusias lakóövezetben (Lf2) található építési telket, mely ideális választás mindazok számára, akik nyugodt környezetben, de Budapest közelségében szeretnének otthont teremteni.
A telek érvényes építési engedéllyel rendelkezik egy 120 m²-es, modern családi házra, valamint a kivitelezéshez szükséges e-napló már meg van nyitva, így az építkezés akár azonnal megkezdhető!
Övezeti besorolás: Lf2 Falusias lakóövezet
A területre vonatkozó főbb építési előírások:
- Beépíthetőség: max. 30%
- Zöldfelület: min. 40%
- Építménymagasság: max. 4,5 m
- Megengedett beépítési mód: oldalhatáron álló
- Legkisebb kialakítható telekterület: 600 m²
A telek közművesített utcában helyezkedik el, a közművek az utcában vagy a telekhatáron elérhetők. A környék nyugodt, rendezett, a közelben iskola, óvoda, bolt, buszmegálló és a Duna-part is megtalálható tökéletes választás családok számára.
További kérdéssel, illetve a megtekintéssel kapcsolatban keressen bátran a hét bármely napján!
Pócsmegyer csendes, barátságos részén kínálunk megvételre egy 650 m²-es, falusias lakóövezetben (Lf2) található építési telket, mely ideális választás mindazok számára, akik nyugodt környezetben, de Budapest közelségében szeretnének otthont teremteni.
A telek érvényes építési engedéllyel rendelkezik egy 120 m²-es, modern családi házra, valamint a kivitelezéshez szükséges e-napló már meg van nyitva, így az építkezés akár azonnal megkezdhető!
Övezeti besorolás: Lf2 Falusias lakóövezet
A területre vonatkozó főbb építési előírások:
- Beépíthetőség: max. 30%
- Zöldfelület: min. 40%
- Építménymagasság: max. 4,5 m
- Megengedett beépítési mód: oldalhatáron álló
- Legkisebb kialakítható telekterület: 600 m²
A telek közművesített utcában helyezkedik el, a közművek az utcában vagy a telekhatáron elérhetők. A környék nyugodt, rendezett, a közelben iskola, óvoda, bolt, buszmegálló és a Duna-part is megtalálható tökéletes választás családok számára.
További kérdéssel, illetve a megtekintéssel kapcsolatban keressen bátran a hét bármely napján!