Eladó Telek
Hirdetéskód: 9214987

Aranyvillám Kft.

Felújításhoz személyi kölcsönt keres? Kalkuláljon itt! →
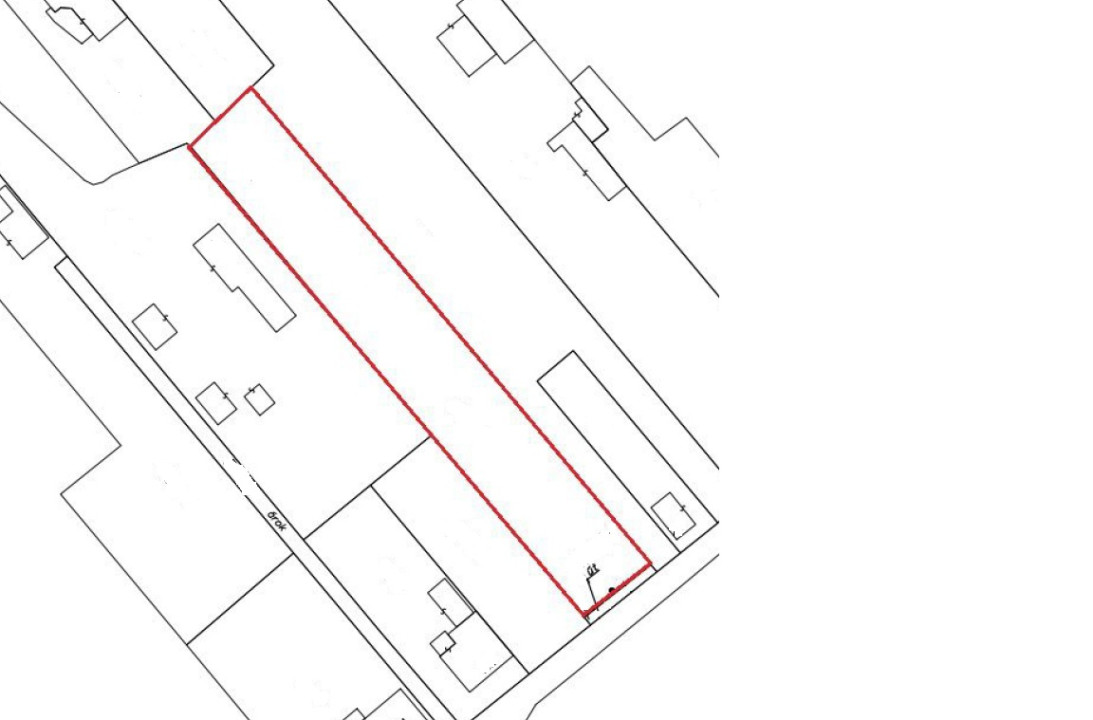
2189 m2
TERÜLET
nincs megadva
ÉPÍTÉS
nincs megadva
FŰTÉS
  • Víz utcában
  • Csatorna utcában
  • Gáz utcában
  • Villany utcában
Energetikai besorolás: Nincs meghatározva
A+++
A++
A+
A
B
C
D
E
F
G
H
I

Az MBH Bank személyi kölcsön ajánlata

Fizetett hirdetés
1 millió Ft
6 évre
20 585 Ft/hó
THM: 14.5%
Részletek →
2 millió Ft
6 évre
41 169 Ft/hó
THM: 14.5%
Részletek →
3 millió Ft
6 évre
61 754 Ft/hó
THM: 14.5%
Részletek →

A tájékoztatás nem teljes körű és nem minősül ajánlattételnek.

Az ingatlan leírása

Csodás természeti környezetben közvetlenül a szlovák határ és a Duna mellett 2 lakás építésére is alkalmas sík, 16m széles telek vált elérhetővé nyugodt környezetben jogtiszta, 1/1-es tulajdonostól. Kérésére a házat / házakat is felépítjük rá! Akár a 3%-os hitellel is.

Térkép

Ingatlan adásvétel ügyvédi díja
150 000 Ft
a hirdetésben szereplő ár alapján
  • A vételár 0,45%-a
  • Szerződéscsomag teljeskörű képviselettel
  • Ingyenes tulajdoni lap ellenőrzés
  • Az ÁFA-t már tartalmazza
Érdekel az ajánlat →
A tájékoztatás nem teljes körű és nem minősül ajánlattételnek. Minimum díj: 150 000 Ft, maximum díj: 600 000 Ft. A díj kizárólag lakóingatlan adásvételére vonatkozik.

A hirdető elérhetősége

Aranyvillám Kft.

Rum Csaba
+36 20 972