Eladó Telek
Hirdetéskód: 9249745
OTP Ingatlanpont Csongrád
Felújításhoz személyi kölcsönt keres? Kalkuláljon itt! →1095 m2
TERÜLETnincs megadva
ÉPÍTÉSnincs megadva
FŰTÉS- CSOK igénybe vehető nem
- Tetőtér beépíthető nem
- Klíma nem
- Szigetelt nem
A+++
A++
A+
A
B
C
D
E
F
G
H
I
Az ingatlan leírása
**Kizárólag az OTP Ingatlanpontnál!!!***
Eladásra kínálunk Gádoros Fő utcáján építésre való telket.
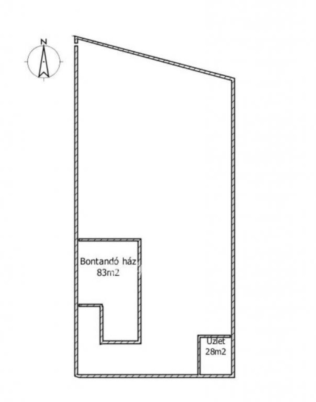
Telek mérete 1095 négyzetméter, melyen van egy kb. 83 négyzetméteres lakóingatlan, amit le kell bontani. Később építettek rá egy üzlethelyiséget, ami jó állapotú. Remek lehetőség építeni kívánó ügyfeleink részére. Víz, gáz, villany bekötve mindenhova. Tehermentes. Buszmegálló néhány háznyira található. Iskola, óvoda, boltok gyorsan elérhető távolságban vannak.
Irodáink Szentes, Petőfi utca 12. A buszmegálló felől, és Csongrád, Fő utca 54. szám alatt várja a személyes érdeklődőket.
Az OTP Bankcsoport teljes körű ügyintézéssel áll az eladók és a vevők rendelkezésére! A kínálatunkból választott ingatlan finanszírozásához kedvezményes hitel konstrukciókat kínálunk. Legújabb szolgáltatásként ajánlom minden kedves ügyfelem részére az OTP Bank által közvetített Babaváró, CSOK PLUSZ, vagy egyéb kölcsönök intézését. Az adásvételi szerződés megkötéséhez igény szerint megbízható ügyvédi közreműködést biztosítunk, és segítséget nyújtunk az adásvételhez kapcsolódó ügyek intézéséhez.
Akár hétvégén is hívható vagyok! Amennyiben igényli, kérem küldjön sms-t és szívesen visszahívom!
Eladásra kínálunk Gádoros Fő utcáján építésre való telket.
Telek mérete 1095 négyzetméter, melyen van egy kb. 83 négyzetméteres lakóingatlan, amit le kell bontani. Később építettek rá egy üzlethelyiséget, ami jó állapotú. Remek lehetőség építeni kívánó ügyfeleink részére. Víz, gáz, villany bekötve mindenhova. Tehermentes. Buszmegálló néhány háznyira található. Iskola, óvoda, boltok gyorsan elérhető távolságban vannak.
Irodáink Szentes, Petőfi utca 12. A buszmegálló felől, és Csongrád, Fő utca 54. szám alatt várja a személyes érdeklődőket.
Az OTP Bankcsoport teljes körű ügyintézéssel áll az eladók és a vevők rendelkezésére! A kínálatunkból választott ingatlan finanszírozásához kedvezményes hitel konstrukciókat kínálunk. Legújabb szolgáltatásként ajánlom minden kedves ügyfelem részére az OTP Bank által közvetített Babaváró, CSOK PLUSZ, vagy egyéb kölcsönök intézését. Az adásvételi szerződés megkötéséhez igény szerint megbízható ügyvédi közreműködést biztosítunk, és segítséget nyújtunk az adásvételhez kapcsolódó ügyek intézéséhez.
Akár hétvégén is hívható vagyok! Amennyiben igényli, kérem küldjön sms-t és szívesen visszahívom!