Eladó Telek
Hirdetéskód: 9274980

-

Felújításhoz személyi kölcsönt keres? Kalkuláljon itt! →
1456 m2
TERÜLET
nincs megadva
ÉPÍTÉS
nincs megadva
FŰTÉS
  • Tájolás Délnyugat
  • Víz telken belül
  • Csatorna telken belül
  • Gáz telken belül
  • Villany telken belül
Energetikai besorolás: Nincs meghatározva
A+++
A++
A+
A
B
C
D
E
F
G
H
I

Az MBH Bank személyi kölcsön ajánlata

Fizetett hirdetés
1 millió Ft
6 évre
20 585 Ft/hó
THM: 14.5%
Részletek →
2 millió Ft
6 évre
41 169 Ft/hó
THM: 14.5%
Részletek →
3 millió Ft
6 évre
61 754 Ft/hó
THM: 14.5%
Részletek →

A tájékoztatás nem teljes körű és nem minősül ajánlattételnek.

Az ingatlan leírása

TAVASZI AKCIÓ! AKÁR IKERHÁZ ÉPÍTÉSÉNEK ENGEDÉLYÉVEL! Érd déli részén, ASZFALTOZOTT UTCÁBAN, ÖSSZKÖZMŰVES, PANORÁMÁS NAGYTELEK eladó.


A telek 1456 m2, Lke-3-as építési övezetben található így 15 %-ig beépíthető akár 4.5m-es magasságig, oldalhatáros módon.


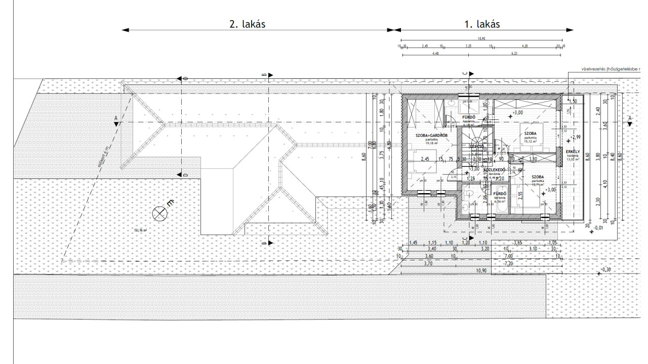
A telek nagyságának köszönhetően akár ikerház építésére is alkalmas. Ehhez már készültek tervek, ami a vételár részét képezi.


Az ikerház 1-es utcafronti épülete egy 1 szintes, 94 m2 hasznos lakóterületű + 16 m2 terasz. 2 szoba (10; 10 m2) + nappali-konyha-étkező (33 m2), garázs (19,6 m2), 3 vizesblokk helyiségekből áll.


A 2-es hátsó épület belső kétszintes 134 m2 + 37 m2 terasz és + 13 m2 erkély. 3 szoba (19; 15; 13 m2) + nappali-konyha-étkező (33 m2), garázs (21,3 m2), 5 vizesblokk helyiségekből áll. A nagyobbik szobához saját fürdőszoba tartozik, a teraszról és az erkélyről kilátás nyílik Érd felett.


A telken belül található kis ház az építkezés megkezdéséig akár felvonulási épületnek is alkalmas.


Közművek közül csatorna, víz, gáz, és villany a telken belül megtalálható. Internet és kábel TV szolgáltatás az utcában rendelkezésre áll és bevezethető.


Az ingatlan elhelyezkedésének köszönhetően remek adottságokkal rendelkezik. Iskola, óvoda, autóbusz megálló (amelynek minden járata Bp. Etele térig közlekedik), háziorvosi rendelő, patika, a mindennapi bevásárláshoz szükséges boltok, az M6-os autópálya 6-os és 7-es főutakkal találkozó csomópontja 5 perc, az M0-ás autóút és M7-es autópálya pedig 8-10 perc autózással elérhető.

Térkép

Ingatlan adásvétel ügyvédi díja
220 050 Ft
a hirdetésben szereplő ár alapján
  • A vételár 0,45%-a
  • Szerződéscsomag teljeskörű képviselettel
  • Ingyenes tulajdoni lap ellenőrzés
  • Az ÁFA-t már tartalmazza
Érdekel az ajánlat →
A tájékoztatás nem teljes körű és nem minősül ajánlattételnek. Minimum díj: 150 000 Ft, maximum díj: 600 000 Ft. A díj kizárólag lakóingatlan adásvételére vonatkozik.

A hirdető elérhetősége

Érdi Ingatlan Iroda

Verő Ákos
+36 70 679