Eladó Telek
Hirdetéskód: 9183998

Duna House - Szeged, Brüsszeli körút

6453 m2
TERÜLET
nincs megadva
ÉPÍTÉS
nincs megadva
FŰTÉS
  • CSOK igénybe vehető nem
  • Tetőtér beépíthető nem
  • Klíma nem
  • Szigetelt nem
Energetikai besorolás: Nincs meghatározva
A+++
A++
A+
A
B
C
D
E
F
G
H
I
Személyi kölcsön 10,6%-23,5%
Tovább az igényléshez ⇒

Az ingatlan leírása

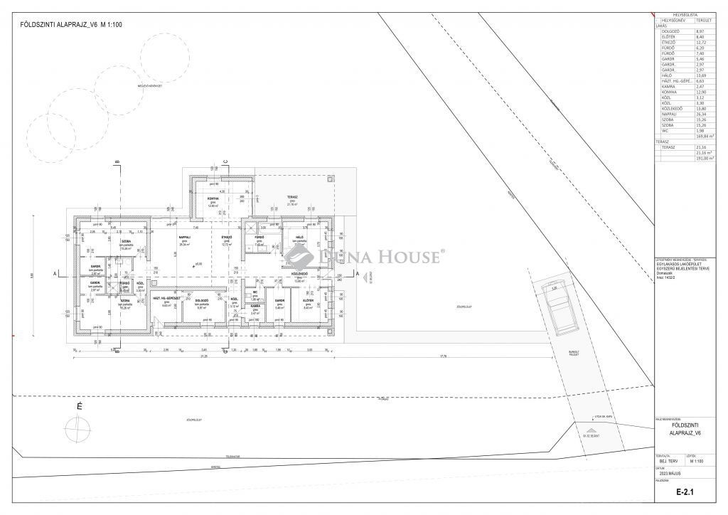
Eladó építési telek kiváló lokációval – Szegedhez közel, az M5-ös autópályától 2 percre!Szeged közvetlen közelében, Domaszék Szegedhez közelebbi végén, az M5-ös autópályától mindössze 2 percre, a BYD autógyártól pedig csupán 5 percre kínálunk eladásra egy közművesített, kiváló adottságú építési telket. Ideális családi otthon vagy befektetés céljára – a telekhez egy modern, átgondolt tervezésű lakóház terve is rendelkezésre áll, így akár azonnal belevághat az építkezésbe! Teljesen körbekerített telek – biztonság és privát tér garantálva! Minden közmű adott: vezetékes víz, 3×32A villamos áram (H-tarifa, éjszakai is), valamint gázbekötés a telken belül. Tovább bővíthető! Igény esetén még 2.200 m² vásárolható hozzá, amely új drótkerítéssel körbekerített és 1×32A árammal ellátott.A remek elhelyezkedés, a fejlődő környezet és a gyors autópálya-elérhetőség miatt kiemelkedő lehetőség akár építkezőknek, akár ingatlanbefektetőknek!

Térkép

A hirdető elérhetősége

Duna House - Szeged, Brüsszeli körút

Boldizsár Blanka
+36 20 214