Eladó Telek
Hirdetéskód: 9202756

GDN Ingatlanhálózat - GARDEN CITY

Felújításhoz személyi kölcsönt keres? Kalkuláljon itt! →
0 m2
TERÜLET
nincs megadva
ÉPÍTÉS
nincs megadva
FŰTÉS
  • CSOK igénybe vehető nem
  • Tetőtér beépíthető nem
  • Klíma nem
  • Szigetelt nem
Energetikai besorolás: Nincs meghatározva
A+++
A++
A+
A
B
C
D
E
F
G
H
I

Az MBH Bank személyi kölcsön ajánlata

Fizetett hirdetés
1 millió Ft
6 évre
20 585 Ft/hó
THM: 14.5%
Részletek →
2 millió Ft
6 évre
41 169 Ft/hó
THM: 14.5%
Részletek →
3 millió Ft
6 évre
61 754 Ft/hó
THM: 14.5%
Részletek →

A tájékoztatás nem teljes körű és nem minősül ajánlattételnek.

Az ingatlan leírása

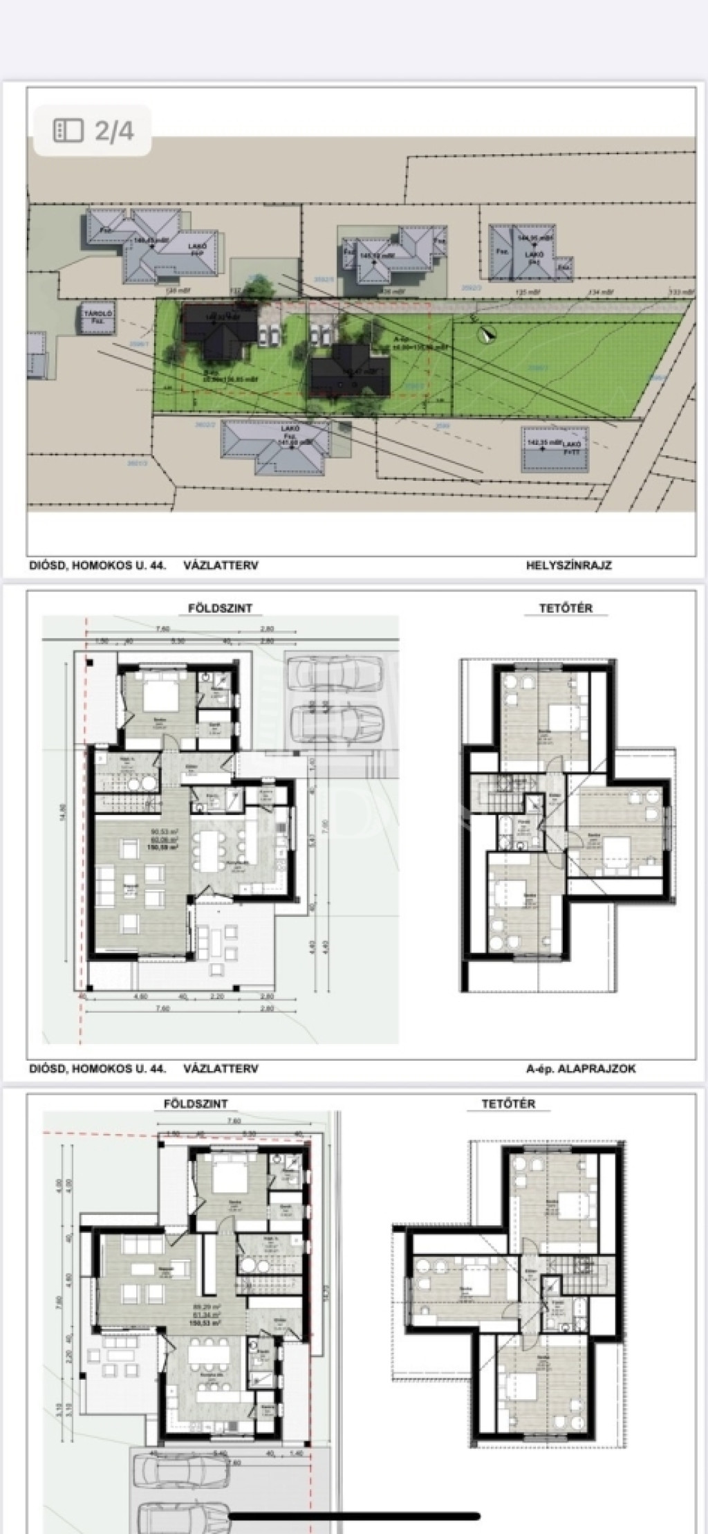
Eladó belterületi telek Diósdon – 2 ház építésére alkalmas!

Eladásra kínálok Diósd belterületén egy nagy méretű, összközműves telket, kiváló ár-érték aránnyal.
Az ingatlan építési engedéllyel és tervekkel rendelkezik 2 családi ház építésére, így azonnal kezdhető az építkezés!

Főbb adatok:

Helyszín: Diósd, belterület

Méret: 1750 m²

Összközműves (víz, villany, csatorna)

Építési engedély és tervdokumentáció rendelkezésre áll

Besorolás: Lke-11 (kertvárosias lakóövezet)
Beépíthetőség: 20%
Megengedett építménymagasság: 5,5 m
Építési mód: szabadon álló

Csendes, rendezett környék, mégis közel mindenhez

Kiváló befektetési lehetőség, akár két generáció részére is

Kitűnő ár-érték arány!
Jöjjön el, nézze meg, nem fog csalódni! ...TOVÁBBI, TÖBBEZRES INGATLAN KÍNÁLAT: - GDN azonosító: 389165

Térkép

Ingatlan adásvétel ügyvédi díja
400 500 Ft
a hirdetésben szereplő ár alapján
  • A vételár 0,45%-a
  • Szerződéscsomag teljeskörű képviselettel
  • Ingyenes tulajdoni lap ellenőrzés
  • Az ÁFA-t már tartalmazza
Érdekel az ajánlat →
A tájékoztatás nem teljes körű és nem minősül ajánlattételnek. Minimum díj: 150 000 Ft, maximum díj: 600 000 Ft. A díj kizárólag lakóingatlan adásvételére vonatkozik.

A hirdető elérhetősége

GDN Ingatlanhálózat - GARDEN CITY

Bognár László
+36 70 455