Eladó Telek
Hirdetéskód: 9180425
Fővállalkozó Balla és Balla Kft
Felújításhoz személyi kölcsönt keres? Kalkuláljon itt! →761 m2
TERÜLETnincs megadva
ÉPÍTÉSnincs megadva
FŰTÉS- CSOK igénybe vehető nem
- Tetőtér beépíthető nem
- Klíma nem
- Szigetelt nem
A+++
A++
A+
A
B
C
D
E
F
G
H
I
Az ingatlan leírása
BEFEKTETÉSI LEHETŐSÉG A II. KERÜLETBEN - ÉPÍTÉSI ENGEDÉLLYEL!!
Budapest II. kerületének egyik legkedveltebb részén, Remetekertvárosban eladó egy 761 m²-es építési telek, engedélyezett társasház-projekttel együtt!
Főbb paraméterek:
Telek mérete: 761 m²
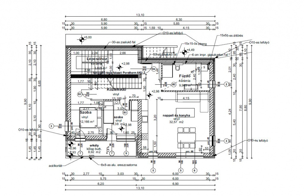
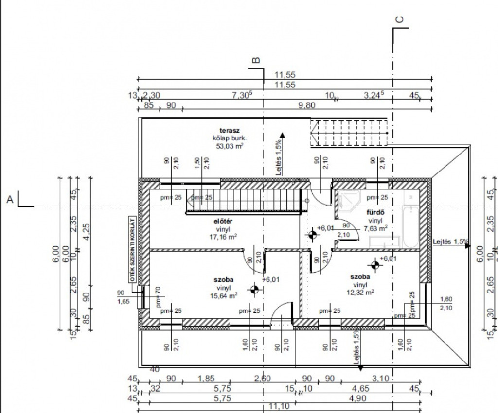
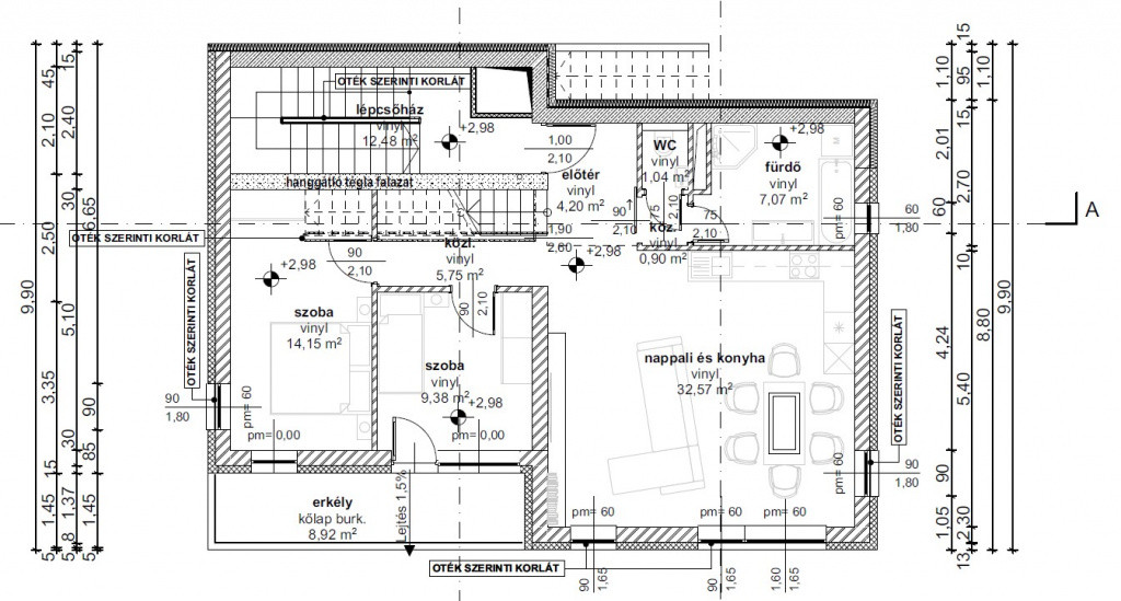
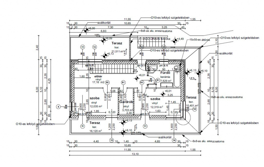
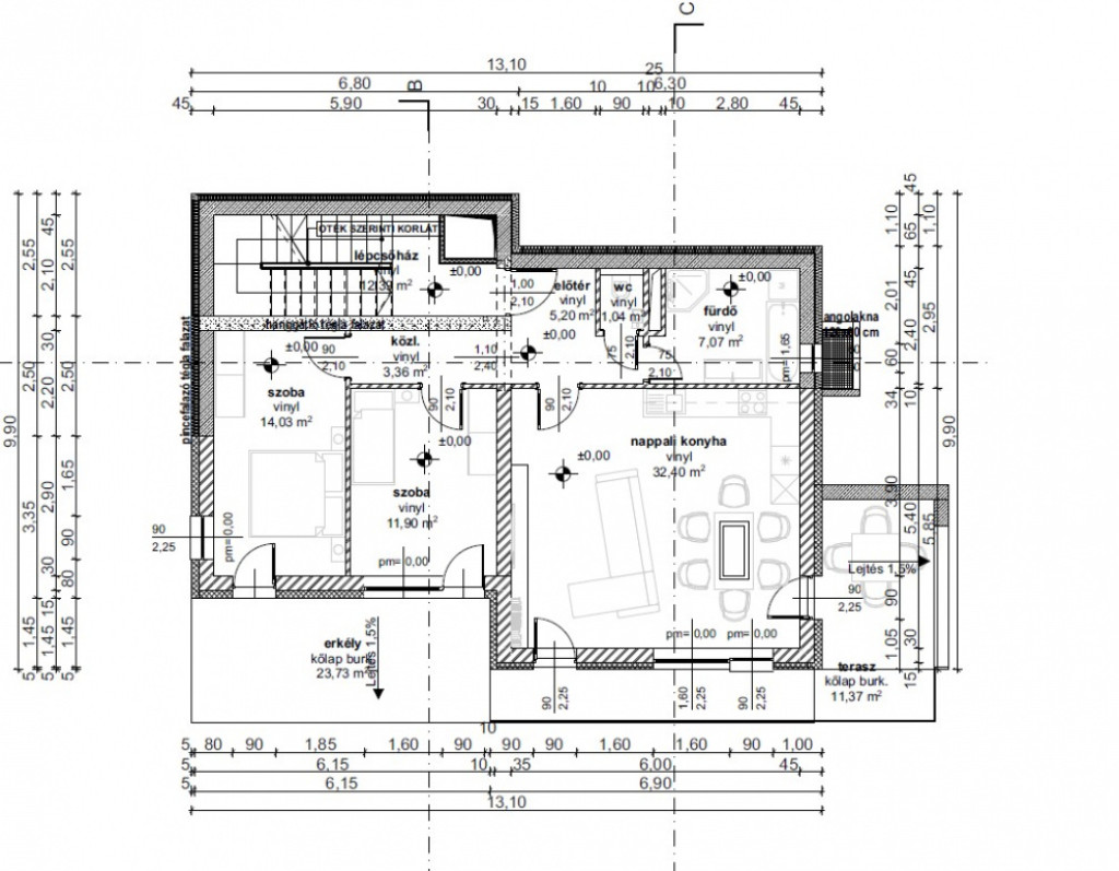
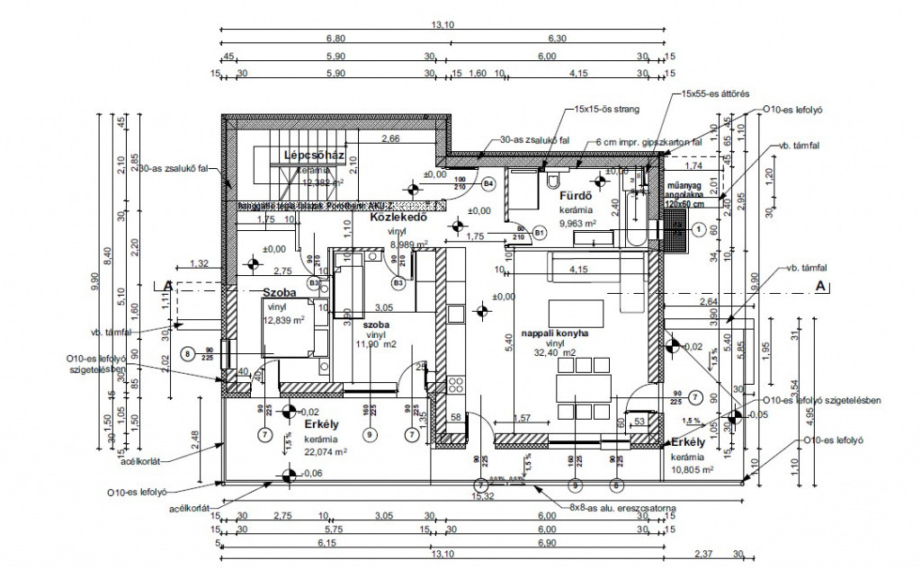
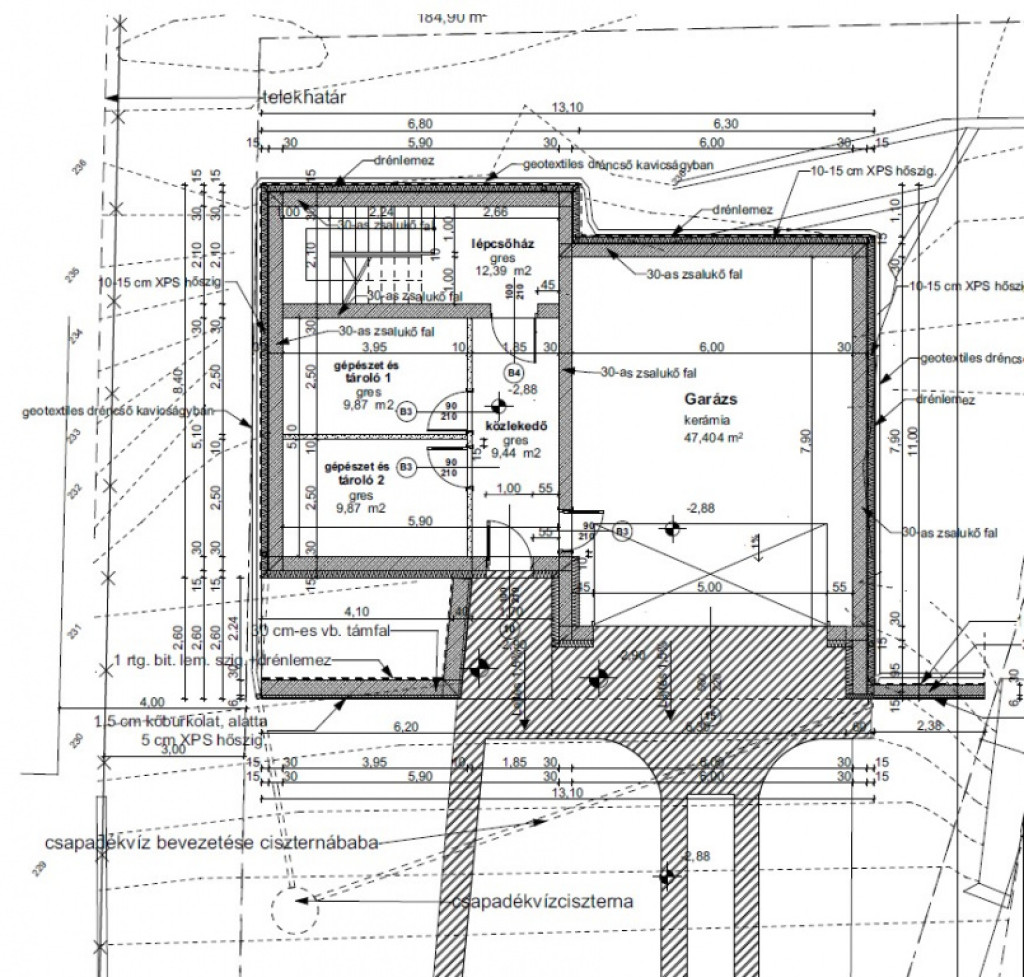
Érvényes építési engedély: 420 m²-es, kétlakásos, több szintes társasházra
Beépíthetőség: 15% föld felett, 25% föld alatt
Lokáció és közlekedés:
Több buszjárat (57, 157, 157A, 257, 956 éjszakai) elérhető 5 perc sétával
Hűvösvölgy villamos-végállomás: busszal 5 perc, gyalog 15 perc
Széll Kálmán tér villamossal kb. 30 perc alatt elérhető
Infrastruktúra és szolgáltatások:
Oktatás: nemzetközi iskolák a közelben (Gustave Eiffel Francia Iskola, SEK Budapest Nemzetközi Iskola)
Bevásárlás: Lidl, Tesco Express, Spar, kisebb üzletek a közelben
Szabadidő: Hűvösvölgy és a Budai-hegység kirándulási és sportolási lehetőségekkel
Rugalmas megtekintés, akár hétvégén és ünnepnapokon is.
Ideális választás fejlesztőknek és befektetőknek, akik prémium lokációban keresnek engedéllyel rendelkező projektet.
Budapest II. kerületének egyik legkedveltebb részén, Remetekertvárosban eladó egy 761 m²-es építési telek, engedélyezett társasház-projekttel együtt!
Főbb paraméterek:
Telek mérete: 761 m²
Érvényes építési engedély: 420 m²-es, kétlakásos, több szintes társasházra
Beépíthetőség: 15% föld felett, 25% föld alatt
Lokáció és közlekedés:
Több buszjárat (57, 157, 157A, 257, 956 éjszakai) elérhető 5 perc sétával
Hűvösvölgy villamos-végállomás: busszal 5 perc, gyalog 15 perc
Széll Kálmán tér villamossal kb. 30 perc alatt elérhető
Infrastruktúra és szolgáltatások:
Oktatás: nemzetközi iskolák a közelben (Gustave Eiffel Francia Iskola, SEK Budapest Nemzetközi Iskola)
Bevásárlás: Lidl, Tesco Express, Spar, kisebb üzletek a közelben
Szabadidő: Hűvösvölgy és a Budai-hegység kirándulási és sportolási lehetőségekkel
Rugalmas megtekintés, akár hétvégén és ünnepnapokon is.
Ideális választás fejlesztőknek és befektetőknek, akik prémium lokációban keresnek engedéllyel rendelkező projektet.