Eladó Telek
Hirdetéskód: 9182934

-

Felújításhoz személyi kölcsönt keres? Kalkuláljon itt! →
1600 m2
TERÜLET
nincs megadva
ÉPÍTÉS
nincs megadva
FŰTÉS
  • Víz telken belül
  • Csatorna telken belül
  • Gáz utcában
  • Villany utcában
Energetikai besorolás: Nincs meghatározva
A+++
A++
A+
A
B
C
D
E
F
G
H
I

Az MBH Bank személyi kölcsön ajánlata

Fizetett hirdetés
1 millió Ft
6 évre
20 585 Ft/hó
THM: 14.5%
Részletek →
2 millió Ft
6 évre
41 169 Ft/hó
THM: 14.5%
Részletek →
3 millió Ft
6 évre
61 754 Ft/hó
THM: 14.5%
Részletek →

A tájékoztatás nem teljes körű és nem minősül ajánlattételnek.

Az ingatlan leírása

Eladásra kínálunk Acsán panorámás közművesített (víz, villany , csatorna) FALUSI CSOK és CSOK PLUSZ ÉS AZ ÚJ OTTHON START 3% HITELKÉPES ÉPÍTÉSI TELKET. Váctól 20 percre, Budapesttől 50 perc.
A telek a falu központban található, jól megközelíthetősége van ,aszfaltozott utca, az utca elején ahol már a főút található: iskola, óvoda, kis bolt, étterem, dohánybolt, házi orvos gyermek és felnőtt, vízmű ,posta, busz és vonat is mindösszesen 5 percre.
A telekhez tartozik egy teljes terv dokumentáció is, amit már csak megkell építeni, mivel már minden engedély megadva!

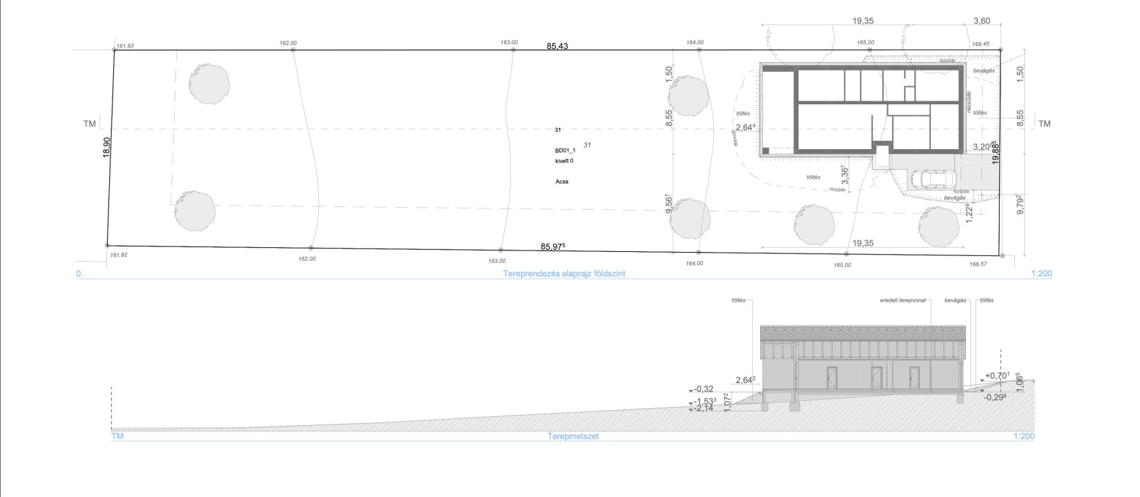
Méretek:
- Szélessége : utca fronti 19,88 m, hátulja 18,90 m
- Hossza: jobb 85,43 m ,bal 85,97m
- 1600nm

Beépíthetőség:
- 30%
- Oldalhatáros

A megtervezett ingatlanról:
- Nettó 109nm
- 4 szoba
- 2 fürdőszoba
- Amerikai konyha nappali
- 20 nm terasz
- 2 wc
- Hőszivattyús padló fűtés

CSOK-ban és az Otthon start hitelben tudok segíteni!
Amennyiben hirdetésünk felkeltette figyelmét keressen bizalommal!

Térkép

Ingatlan adásvétel ügyvédi díja
150 000 Ft
a hirdetésben szereplő ár alapján
  • A vételár 0,45%-a
  • Szerződéscsomag teljeskörű képviselettel
  • Ingyenes tulajdoni lap ellenőrzés
  • Az ÁFA-t már tartalmazza
Érdekel az ajánlat →
A tájékoztatás nem teljes körű és nem minősül ajánlattételnek. Minimum díj: 150 000 Ft, maximum díj: 600 000 Ft. A díj kizárólag lakóingatlan adásvételére vonatkozik.

A hirdető elérhetősége

István Németh

+36 70 326